07_Parts List_N7203A339B00 - 第193页
Ref No. Remark s R 1 Q'ty 34-B マスククリーニング (R):DSP M ask Cl eani ng(R) :DSP イラスト No. Part No. 品 名 品番 数量 R 2 パーツリスト Kit N o . キット品 番 Kit Name キット名称 N610093214AA Part Name 備 考 セクションNo. PARTS LIST Section No. R 3 BRACKET…

34-B
マスククリーニング(R):DSP
Mask Cleaning(R):DSP
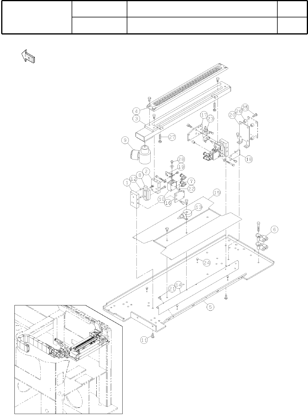
パーツレイアウト
Ki
t
N
o
.
キット
品番
Kit Name
キット名称
N610093214AA
セクションNo.
PARTS LAYOUT
Section No.
--
S179
( KN610093214AA-11-2 )

Ref
No.
Remarks
R
1
Q'ty
34-B
マスククリーニング(R):DSP
Mask Cleaning(R):DSP
イラスト
No.
Part No.
品 名品番 数量
R
2
パーツリスト
Kit N
o
.
キット品
番
Kit Name
キット名称
N610093214AA
Part Name
備 考
セクションNo.
PARTS LIST
Section No.
R
3
BRACKET
1
1 N210132185AA
BLOCK
2
2 N210116875AA
SHAFT
2
3 N210116878AA
BRACKET
1
6 N210118807AC
BRACKET
1
7 N210132189AB
BRACKET
1
8 N210118811AC
BRACKET
1
9 N210132190AA
BRACKET
1
10 N210132191AB
BRACKET
1
11 N210118669AB
SENSOR(300mm)
1
12 N610100229AA
SENSOR(200mm)
1
13 N610100277AA
A
JOINT
1
14 N431KQ2L1600 KQ2L16-00
JOINT
1
15 N510040423AA KQ2U16-99
BUSH
2
17 N510048699AA LFF-1215
SPRING
2
18 N510038010AA 87UF16-25
WASHER
2
19 N510018507AA
Round finish plain washer 12 10H A2J (Trivalent)
BOLT
8
20 N510017514AA
SSS 003 Hexagon socket button head screw M3X8-10.9 A2J (Trivalent)
TUBE
2
21 N510048808AA 20D paper core (276 mm, with 3-mm cut)
BOLT
2
22 N510017534AA
SSS 003 Hexagon socket button head screw M4X6-10.9 A2J (Trivalent)
SWITCH-PARTS
1
23 KXF0E0BBA00 E39-L143
CYLINDER
1
24 N510049392AA SSD-KDL-25-10-FL419646
SENSOR(1000mm)
1
25 N610113905AA
A
JOINT
2
26 KXF0E36FA00 KQ2K04-M5
CABLE-SUPPORT
2
27 N210011523AA
PLATE
1
28 N210132187AA
CABLE-BEAR
1
29 N510048875AA 210.060-063-17-21000.060.1.12
SPEED-CONTROLLER
2
30 KXF0ADXAA00 AS2001F-04
S180
--
( KN610093214AA-11-2 )

34-C
マスククリーニング(R):DSP
Mask Cleaning(R):DSP
パーツレイアウト
Ki
t
N
o
.
キット
品番
Kit Name
キット名称
N610093214AA
セクションNo.
PARTS LAYOUT
Section No.
--
S181
( KN610093214AA-11-3 )