00198719-01_UM_X-Serie-S_PL - 第217页
Instrukcja eksploatacji SIPLACE ser ii X S 4 Ustawienie i uruchomienie Od wersji oprogramowania 713.0 Wydanie 11/2019 4.3 Ustawienie automatu 217 4.3.7 Odleg ł o ś ci ł ap maszyny i sta ł ych kraw ę dzi transportera p ł …

4 Ustawienie i uruchomienie Instrukcja eksploatacji SIPLACE serii X S
4.3 Ustawienie automatu Od wersji oprogramowania 713.0 Wydanie 11/2019
216
Wyjustować śrubę nastawczą M24x2x120 (poz. 3 na rys. 4.3 - 7, strona 214) kluczem płaskim
o RK 36 tak, uzyskać wartości odległości z tabeli u góry dla danej wysokości transportowej.
Teraz ostrożnie opuszczać automat wózkiem widłowym aż łapy maszyny równomiernie ze-
tkną się z podłożem. W każdym przypadku druga osoba powinna kontrolować stabilność po-
łożenia automatu w trakcie opuszczania. W razie potrzeby należy nieco poluzować zacisk
zewnętrznych łap maszyny.
Ostrożnie kontynuować opuszczanie automatu, aż zewnętrzne łapy maszyny dotkną śrub na-
stawczych M24 × 2 × 120 (poz. 3 na il. 4.3 - 7
, strona 214) do regulacji wysokości.
Środkowe łapy maszyny nie mogą dotykać jeszcze podłoża (patrz punkt 2 na rys. 4.3 - 4,
strona 211
). W razie potrzeby wkręcić jeszcze trochę środkowe łapy maszyny w automat lub
element dystansowy.
4
WSKAZÓWKA
Opis ostatecznego wypoziomowania automatu podano w sekcji 4.3.8.1
, strona 219.

Instrukcja eksploatacji SIPLACE serii X S 4 Ustawienie i uruchomienie
Od wersji oprogramowania 713.0 Wydanie 11/2019 4.3 Ustawienie automatu
217
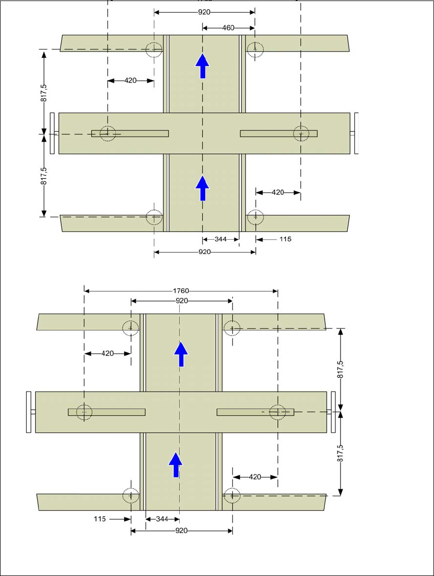
4.3.7 Odległości łap maszyny i stałych krawędzi transportera płytek drukowanych
Odległości nóżek maszyny pojedynczego transportera płytek drukowanych
4
Rys. 4.3 - 8 Odległości łap pojedynczego transportera płytek drukowanych w milimetrach
Zamocowany na stałe transpor-
towy profil boczny na maksymal-
nej pozycji po prawej stronie
a
.
a) Wielkość wymiaru zależy od pozycji profilu zamocowa-
nego na stałe. Wszystkie wymiary podane są w mm.
Zamocowany na stałe transpor-
towy profil boczny na maksymal-
nej pozycji po lewej stronie
a
.

4 Ustawienie i uruchomienie Instrukcja eksploatacji SIPLACE serii X S
4.3 Ustawienie automatu Od wersji oprogramowania 713.0 Wydanie 11/2019
218
4.3.7.1 Odległości łap maszyny podwójnego transportera płytek drukowanych
4
Rys. 4.3 - 9 Odległości łap podwójnego transportera płytek drukowanych w milimetrach
Zamocowany na stałe trans-
portowy profil boczny na mak-
symalnej pozycji po prawej
stronie
a
.
a) Wielkość wymiaru zależy od pozycji profilu zamocowane-
go na stałe. Wszystkie wymiary podane są w mm.
Zamocowany na stałe transpor-
towy profil boczny na maksy-
malnej pozycji po lewej stronie
a
.