N7201A652E - 第484页
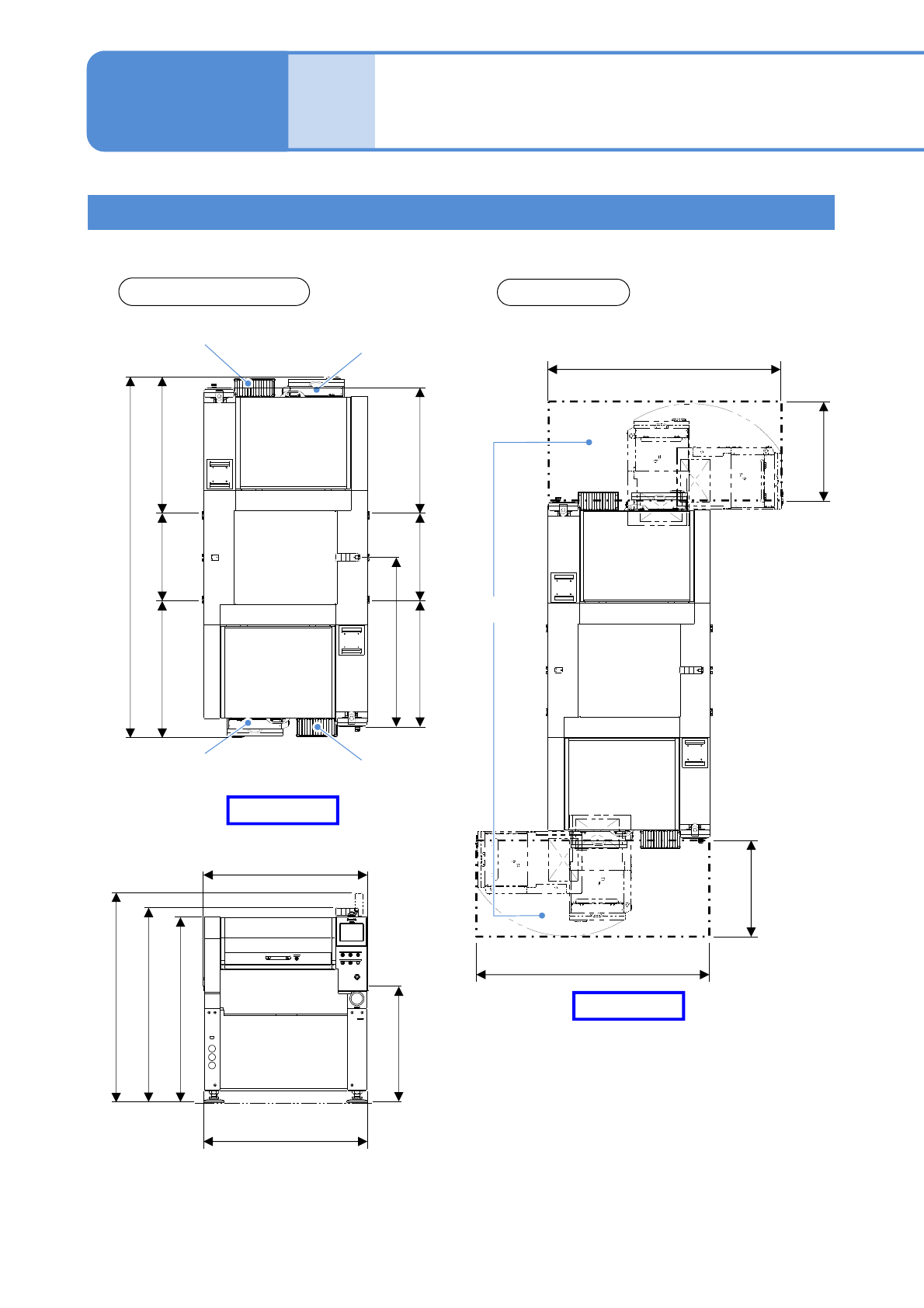
NPM- TT2 EJM1E E-MB-06O-04 Specifi- cation Outside dimensions and w or king ar ea 1 Operating procedure 6-1-3 Single tray specifications (Unit: mm) ■ When the single tray feeder is connected Outside dimensions Working ar…

NPM-TT2 EJM1EE-MB-06O-04
6-1-2
At
a glance
Specifi-
cation
PCB flow direction
Operating procedure
6-1-2
Dual conveyor
Fixed rail
Front
Left-to-right flow, Front reference
Front
Right-to-left flow, Front reference
Left-to-right flow Right-to-left flow
Movable rail
■Single lane mode
■Dual lane mode
1 2
1 2
PCB flow
Fixed rail
PCB flow
Movable rail
Fixed rail
Front Front
Movable rail
PCB flow
Fixed rail
Movable rail
Fixed rail
Movable rail
Fixed rail
PCB flow
Fixed rail
Movable rail
Fixed rail
PCB flow PCB flow

NPM-TT2 EJM1EE-MB-06O-04
Specifi-
cation
Outside dimensions
and working area 1
Operating procedure
6-1-3
Single tray specifications
(Unit: mm)
■When the single tray feeder is connected
Outside dimensions
Working area
13-slot supply
unit
Single tray
feeder
13-slot supply
unit
Single tray
feeder
971686971
1 314
1 0566861 056
2 798
作業
エ
リア
1 831
763
作業
エリ
ア
Working area
763
1 831
900
1 514
1 629
1 265(cover outline)
1 280(conveyor width)
1 444
6-1-3-1
Front side
Front side

NPM-TT2 EJM1EE-MB-06O-04
Feeder cart specifications
13-slot supply
unit
Feeder cart
13-slot supply
unit
971686971
1 314
1 103.56861 103.5
2 893
1 639
781
781
1 639
Outside dimensions
Working area
(Unit: mm)
Working area
Feeder cart
900
1 514
1 629
1 265(cover outline)
1 280(conveyor width)
1 444
At
a glance
6-1-3-2
Front side
Front side