OM-1460-001_w - 第74页
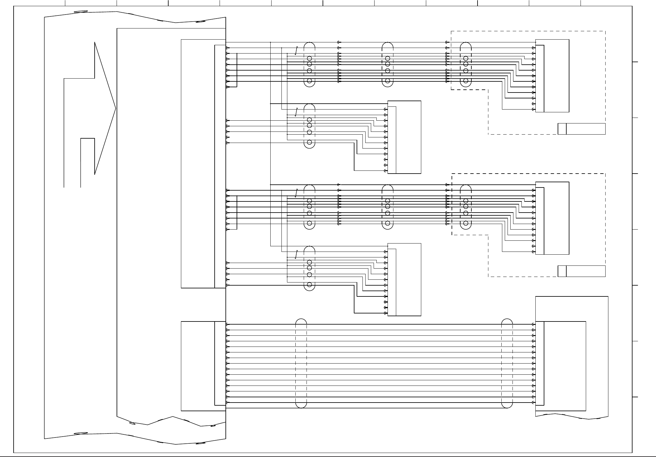
71 0709-001-(M867WR-A1001) 認識接続図2 コネクタケース コネクタケース 取込みトリガー B1 取込みトリガー B2 取込みトリガー A1 2 取込みトリガー A2 3 GND 15 CN2 1 5 6 9 10 8 7 14 13 12 1 1 4 ストロボ発光ミス信号 A ストロボ発光ミス信号 B 予備 B ストロボ信号 A 基板認識照明点灯信号 B ストロボ信号 B 基板認識照明点灯信号 A 予備 …

70
0709-001-(M867WMM-1043)
U171 I/O STLT MF HEAD(4)
RX
/RX
TX
X1701 X1702
CN1A/1B
/TX
FG
7 2 43 5
CN2A/2B
IN OUT
CN10
CN11
CN12
CN13
CN14
CN15
CN16
CN17
CN18
CN19
CN20
CN21
CN22
CN23
CN24
CN25
CN4CN3
24B1R
10B
10F
24F
5 34 2 7
FG
/TX
TX
/RX
RX
-X1717
-X1716
-X1715
-X1712
-X1711
-X1710
-X1723
-X1722
-X1721
-X1720
-X1719
-X1718
978
977
976
973
972
971
979
980
981
982
983
984
X1703 X1704
:1
:2
-Y1719
-Y1718
-Y1719
-Y1718
:2
:1
:1
:2
:2
:1
:2
:1
:1
:2
-B07
-B07
-B07
(+)
(-)
:2
茶
:3
:1
青
黒
OUT
青
黒
赤
赤
黒
OUT
黒
:3
茶
:2
(-)
(+)
青青
:1
:1
青 青
(+)
(-)
:2
茶
:3
黒
OUT
黒
赤
:7
:3
:6
:2
:9
:2
:6
:3
:7:9
:7
:5
:3
DC+
IN
DC-
DC-
IN
DC+
DC+
IN
DC-
DC(-)
OUT1
DC+
-X11710
-X07A
-X07B
-X07C
-B07A
-B07B
-B07C
:3
:4
:1
:3
:4
:1
:3
:4
:1
OUT2
オートシフト
オートシフト
OUT2
OUT2
オートシフト
-Y1718
-Y1719
-Y1719
-Y1718
-Y1718
-Y1718
-Y1719
-Y1719
-A141
-X1416D:3へ
-X1416D:4へ
-A141
-A145
-X1456D:4へ
DC+
OUT1
DC(-)
DC(-)
OUT1
DC+
-X11711
-X11712
-X11710
-X11711
-X11712
M(A)
M(B)
M(C)
HM-G300(4)
U
:9
[MM/42/8C]
[MM/42/8C]
[MM/42/8G]
[MM/42/5D]
[MM/42/5C]
I/O P.C.B
-U17
-U01(F) (STLT PNL)
-X0102(CN2)
GA ch2-2
[F-/07/6A]
STLT_MF_HEAD
真空パルブ 1
真空センサ 3
真空センサ 2
真空センサ 1
真空破壊パルブ 1
真空パルブ 2
真空破壊パルブ 2
<メカトロチューブ>
<メカトロチューブ>
<メカトロチューブ>
PSE-300
<メカトロチューブ>
<メカトロチューブ>
<メカトロチューブ>
<メカトロチューブ>
<メカトロチューブ>
<メカトロチューブ>
-X10306
-X20201
コネクタケース
<RobotCable>
-X2803B1 :1
:2
-X2804B1
:2
:1
OUT1
OUT1
OUT1
真空センサ 3
真空センサ 2
真空センサ 1
OUT2
OUT2
OUT2
灰
白
白
灰
灰
白
PSE-300
終端抵抗
真空パルブ 3
真空破壊パルブ 3
1 2 3 4 5 6 7 8
A
B
C
D
E
F

71
0709-001-(M867WR-A1001)
認識接続図2
コネクタケース コネクタケース
取込みトリガーB1
取込みトリガーB2
取込みトリガーA12
取込みトリガーA23
GND15
CN2
1
5
6
9
10
8
7
14
13
12
11
4
ストロボ発光ミス信号A
ストロボ発光ミス信号B
予備B
ストロボ信号A
基板認識照明点灯信号B
ストロボ信号B
基板認識照明点灯信号A
予備A
+5V
GND
コネクタケース
4
2
7
10
1
5
8
1
1
3
6
9
12 VD-
HD+
Video-
TRGER
GND
HD-
GND
-
VD+
+12V
V
ideo+
P.S
コネクタケース
4
2
7
10
1
5
8
11
3
6
9
12 VD-
HD+
Video-
TRGER
GND
HD-
GND
-
VD+
+12V
Video+
P.S
P.S
Video+
+12V
VD+
-
GND
HD-
GND
TRGER
Video-
HD+
VD-12
9
6
3
11
8
5
1
10
7
2
4
コネクタケース
コネクタケース
VIDEO-Cam3
CTRL2-Cam3
HDrive-Cam3
VDrive-Cam2
VIDEO-Cam1
VDrive-Cam4
HDrive-Cam4
CTRL1-Cam3
VDrive-Cam3
GND
CTRL1-Cam2
CTRL2-Cam2
CTRL1-Cam1
CTRL1-Cam4
CTRL2-Cam4
+12V
VIDEO-Cam4
CTRL2-Cam1 24
22
21
20
19
18
16
15
2
13
12
1
1
10
9
7
4
3
1
25
26VDrive-Cam1
HDrive-Cam1
4
2
7
10
1
5
8
1
1
3
6
9
12 VD-
HD+
Video-
TRGER
GND
HD-
GND
-
VD+
+12V
V
ideo+
P.S
CAMERA
PIO
X9201
20
1
19
8
10
6
18
2
7
9
13
12
17
3
16GND
PIO_2
Strobe_0
PIO_1
PIO_3
Trig_2
Trig_0
PIO_0
PIO_11(Strobe1)
GND
Trig_3
T
rig_1
Strobe_2
PIO_15(Strobe3)
+5V_PIO
X9202
-X3601
-X6101
-X6101
X9502
U95
+12V 23
コネクタケース
GND 6
VIDEO-Cam2 5
HDrive-Cam2 17
シェル
:2
:12
:9
:6
:3
:11
:8
:5
:1
:7
:4
-X13601
シェル
:2
:12
:9
:6
:3
:11
:8
:5
:1
:7
:4
シェル
GND 8
GND 14
-X23601
U92
:2
:12
:9
:6
:3
:11
:8
:5
:1
:7
:4
-X3601
-X13601 -X23601
ROBOT CABLE
ROBOT CABLE
HM-G300(1)
U
HM-G300(2)
U
(Frame Grabber 1)
シェル
:2
:12
:9
:6
:3
:11
:8
:5
:1
:7
:4
bus
認識BOX
部品認識カメラ(1)
D-B61(1)
基板認識カメラ(1)
M-B36(1)
基板認識カメラ(2)
M-B36(2)
部品認識カメラ(2)
D-B61(2)
照明コントロールボード
認識ボード1
1
2 3 4 5 6 7 8 9 10 11 12
A
B
C
D
E
F
G
H

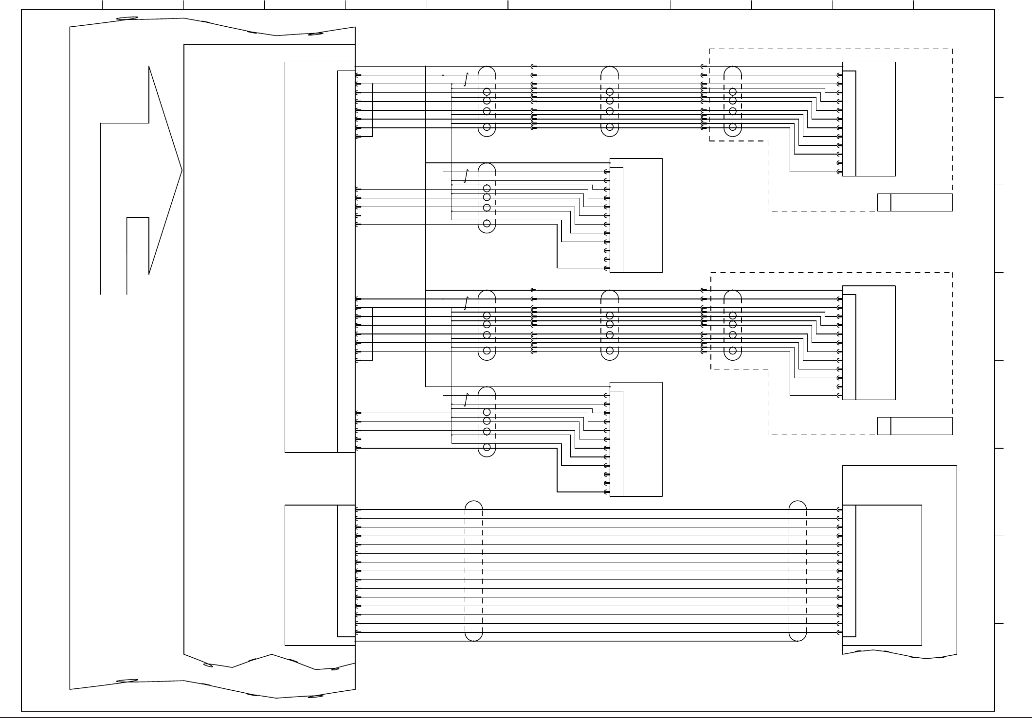
72
0709-001-(M867WR-A1002)
認識接続図 3
コネクタケース コネクタケース
取込みトリガーB1
取込みトリガーB2
取込みトリガーA12
取込みトリガーA23
GND15
CN3
1
5
6
9
10
8
7
14
13
12
11
4
ストロボ発光ミス信号A
ストロボ発光ミス信号B
予備B
ストロボ信号A
基板認識照明点灯信号B
ストロボ信号B
基板認識照明点灯信号A
予備A
+5V
GND
コネクタケース
4
2
7
10
1
5
8
1
1
3
6
9
12 VD-
HD+
Video-
TRGER
GND
HD-
GND
-
VD+
+12V
V
ideo+
P.S
コネクタケース
4
2
7
10
1
5
8
11
3
6
9
12 VD-
HD+
Video-
TRGER
GND
HD-
GND
-
VD+
+12V
Video+
P.S
P.S
Video+
+12V
VD+
-
GND
HD-
GND
TRGER
Video-
HD+
VD-12
9
6
3
11
8
5
1
10
7
2
4
コネクタケース
コネクタケース
VIDEO-Cam3
CTRL2-Cam3
HDrive-Cam3
VDrive-Cam2
VIDEO-Cam1
VDrive-Cam4
HDrive-Cam4
CTRL1-Cam3
VDrive-Cam3
GND
CTRL1-Cam2
CTRL2-Cam2
CTRL1-Cam1
CTRL1-Cam4
CTRL2-Cam4
+12V
VIDEO-Cam4
CTRL2-Cam1 24
22
21
20
19
18
16
15
2
13
12
1
1
10
9
7
4
3
1
25
26VDrive-Cam1
HDrive-Cam1
4
2
7
10
1
5
8
1
1
3
6
9
12 VD-
HD+
Video-
TRGER
GND
HD-
GND
-
VD+
+12V
V
ideo+
P.S
CAMERA
PIO
X9301
20
1
19
8
10
6
18
2
7
9
13
12
17
3
16GND
PIO_2
Strobe_0
PIO_1
PIO_3
Trig_2
Trig_0
PIO_0
PIO_11(Strobe1)
GND
Trig_3
T
rig_1
Strobe_2
PIO_15(Strobe3)
+5V_PIO
X9303
-X3601
-X6101
-X6101
X9503
U95
+12V 23
コネクタケース
GND 6
VIDEO-Cam2 5
HDrive-Cam2 17
シェル
:2
:12
:9
:6
:3
:11
:8
:5
:1
:7
:4
-X13601
シェル
:2
:12
:9
:6
:3
:11
:8
:5
:1
:7
:4
シェル
GND 8
GND 14
-X23601
U93
:2
:12
:9
:6
:3
:11
:8
:5
:1
:7
:4
-X3601
-X13601 -X23601
ROBOT CABLE
ROBOT CABLE
HM-G300(3)
U
HM-G300(4)
U
(Frame Grabber 2)
シェル
:2
:12
:9
:6
:3
:11
:8
:5
:1
:7
:4
bus
認識BOX
部品認識カメラ(3)
D-B61(3)
基板認識カメラ(3)
M-B36(3)
基板認識カメラ(4)
M-B36(4)
部品認識カメラ(4)
D-B61(4)
照明コントロールボード
認識ボード2
1
2 3 4 5 6 7 8 9 10 11 12
A
B
C
D
E
F
G
H