PTS-NADFU-09 - 第23页
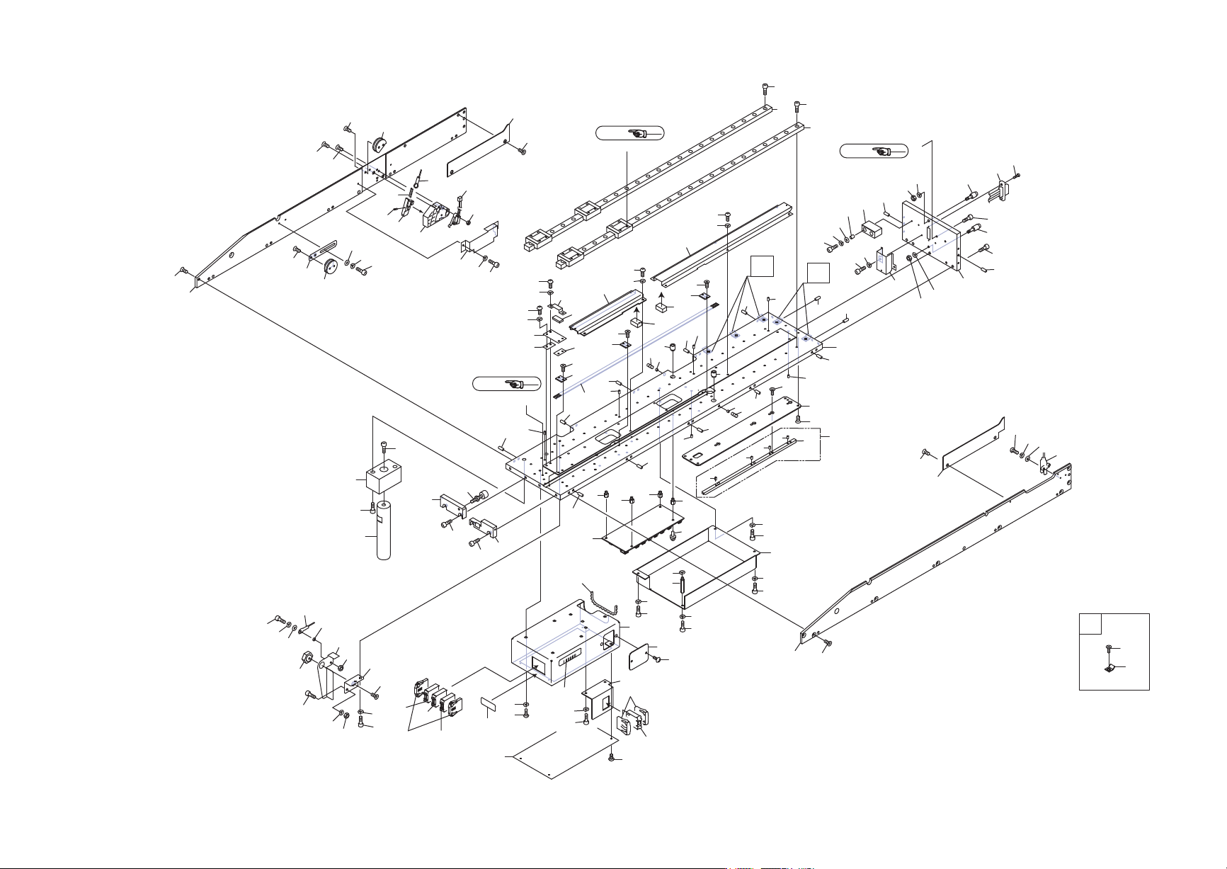
BRIDGE-TYPE DIP FLUX UNIT (DFU-B) 3/ ブリッジ式ディップフラックスユニット (DFU -B) 3 / UK04215 No. Drg.No. & Code No. QTY Description Rating Remarks 番号 図番 & コード番 号 個数 品名 規格 備考 1 Y3123 A 1 UNION, ELBOW ユニオン エルボ KQ2T06 -04 2 H1036 …

ᮏᶵࡼࡾ03D
From Main Device
ࢺࣞ๓ᚋ
75$<):5'%:5'
ࢫ࣮࢟ࢪ
RIGHTLEFTMIDDLE
$%
3
5
ȭ
ȭȭ
ȭ
ȭȭȭȭȭ
PM03TE* (MANIFOLD)
ȭ
ȭȭȭȭ
$
3
%$
555
3
5
࢚࣮㓄⟶ᅗ
PNEUMATIC CIRCUIT DIAGRAM
648((*((
4
1
B
A
2
4
3
FF
4
A
D
44
G
5
5
7
H
A
6
6
E
FF
4
44
T2T1
T15
T8
T7
T6
T5T4
T3
T12
T13
T14
T11
T10
T9
UK04215
ࣈࣜࢵࢪᘧࢹࢵࣉࣇࣛࢵࢡࢫࣘࢽࢵࢺ')8%
BRIDGE-TYPE DIP FLUX UNIT (DFU-B) 3/
22
PTS- NADFU- 09

BRIDGE-TYPE DIP FLUX UNIT (DFU-B) 3/
ブリッジ式ディップフラックスユニット (DFU-B) 3/
UK04215
No. Drg.No. & Code No. QTY Description Rating Remarks
番号 図番 & コード番号 個数 品名 規格 備考
1 Y3123A 1 UNION, ELBOW
ユニオン エルボ
KQ2T06-04
2 H10360 1 VALVE, MANUAL
バルブ 手動
HV4-4
3 Y3077Z 1 UNION, ELBOW
ユニオン エルボ
KQ2L04-M5
4 A4067A 8 ELBOW
エルボ
M-3ALU-4
5 A4067T 2 ELBOW
エルボ
M-5ALHU-4
6 A4068H 2 ELBOW
エルボ
M-5ALU-4
7 K5077A 1 CONNECTOR
コネクタ
M-5J
A A4002R 3 EJECTOR
エジェクタ
RVCM4-M5-C
B H1065K 1 VALVE, SOL
バルブ SOL
041E1-75-DC24V
D H1065L 1 VALVE, SOL
バルブ SOL
040-4E1-DC24V
E H1065M 1 VALVE, SOL
バルブ SOL
040-4E2-PSL-1L-DC24V
F K5335B 4 CONTROLLER, SPEED
コントローラ スピード
JSU4-C
G S2195G 1 CYLINDER
シリンダ
CDU6-10D-A93LS
H PZ19812 1 CYLINDER
シリンダ
T1 PZ36021 1 TUBE
チューブ
T2 PZ31481 1 TUBE
チューブ
T3 PZ37920 1 TUBE
チューブ
T4 PZ40060 1 TUBE
チューブ
T5 PZ21132 1 TUBE
チューブ
T6 PZ40120 1 TUBE
チューブ
T7 PZ40070 1 TUBE
チューブ
T8 PZ40100 1 TUBE
チューブ
T9 PZ40070 1 TUBE
チューブ
T10 PZ40110 1 TUBE
チューブ
T11 PZ38500 1 TUBE
チューブ
T12 PZ40080 1 TUBE
チューブ
T13 PZ37980 1 TUBE
チューブ
T14 PZ40090 1 TUBE
チューブ
T15 PZ07741 1 TUBE
チューブ
23
PTS- NADFU- 09

AA
CC
BB
63(('
6833/<
'(/$<
.7'+$
Ref.2/
Ref.2/
Ref.2/
PP
PP
PP
1
2
2
5
4
2
6
6
2
2
2
2
3
2
2
7
7
10
10
10
11
13
14
15
16
17
18
19
20
20
20
20
22
23
24
24
25
24
25
26
27
30
31
32
34
35
36
37
38
39
40
41
42
43
46
45
50
51
52
53
54
55
56
58
59
60
61
61
62
63
64
65
66
68
71
72
73
75
76
78
79
80
79
80
81
82
83
84
85
86
87
87
88
89
90
91
92
94
2
95
96
97
98
99
100
101
102
103
104
105
106
107
108
109
110
111
113
113
114
116
117
118
119
120
121
122
123
124
125
126
127
128
129
130
132
133
134
135
136
137
139
140
141
142
143
144
145
146
147
148
94
81
57
25
11
11
12
2
3
3
3
5
4
18
18
18
69
114
46
44
44
45
8
9
24
25
2
UF07244
࣮ࣟࢱ࣮ࣜᘧࢹࢵࣉࣇࣛࢵࢡࢫࣘࢽࢵࢺ')85
ROTARY-TYPE DIP FLUX UNIT (DFU-R) 1/
24
PTS- NADFU- 09