PTS-NADFU-09 - 第75页
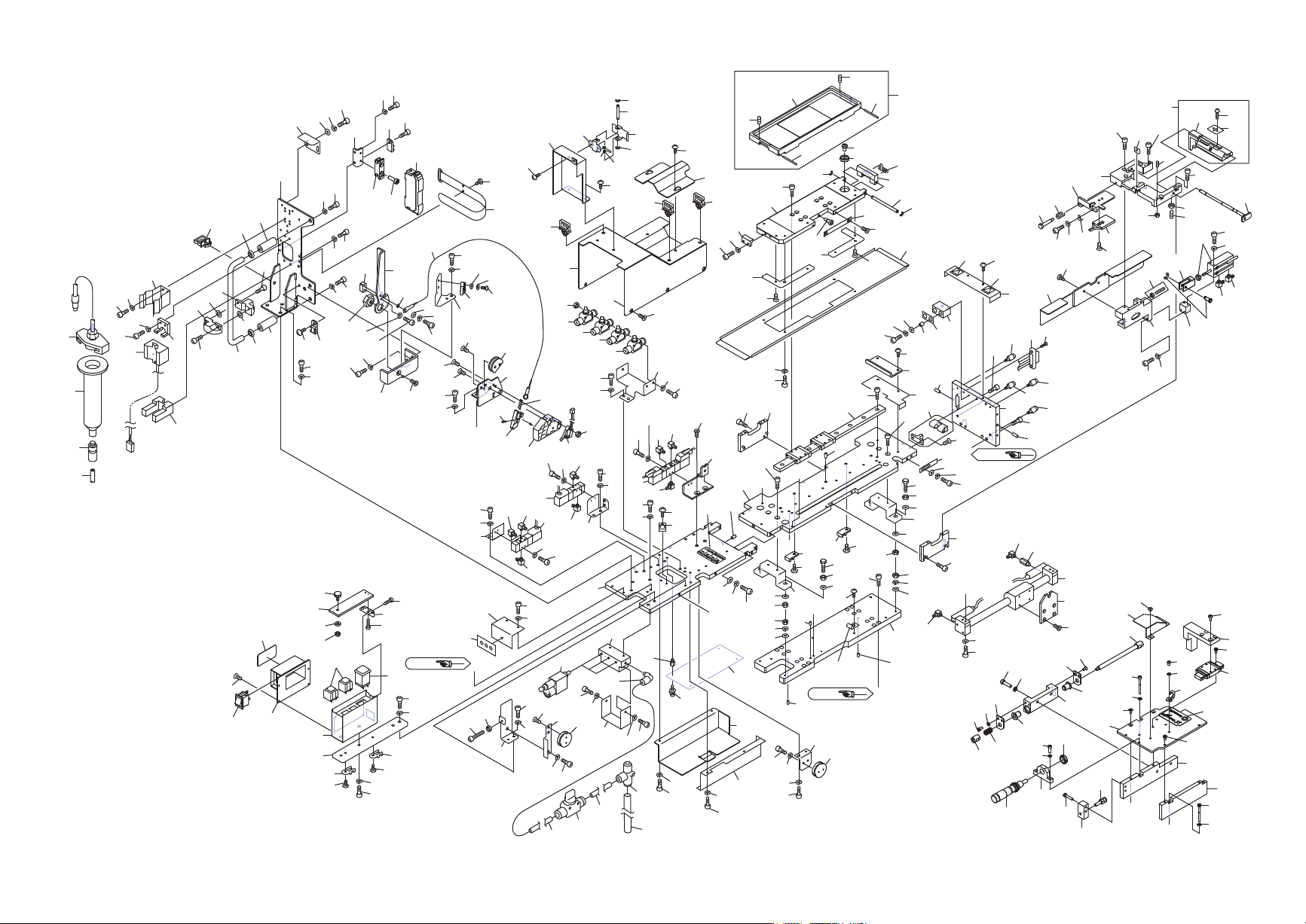
BRIDGE-TYPE DIP FLUX UNIT (DFU-B)(For MW U) 1/ ブリッジ式ディップフラックスユニット (DFU -B)(MW U用) 1/ 2UDLYF000 107 No. Drg.No. & Code No. QTY Description Rating Remarks 番号 図番 & コード番 号 個数 品名 規格 備考 1 PB0AEX 1 1 BKT BKT 1.1 S2025 …

AA
Ref.2/
EE
JJ
Ref.2/
CC
AA
DD
Ref.2/
6833/<
648((*(
6/,'(5
FF
FF
GG
HH
GG
HH
CC
74.1
75
75
76
77
78
80
81
82
83
84
85
86
88
89
90
91
92.1
93
94
95
96
97
99
100
101
102
103
104
106
107
108
109
110
111
112. 1
113
114
115
118
130
131
132
133
135
136
137
138
140
141
142
144
145
145
146
147
148
149
150
150
151
152
154
155
156
157
158
161
162
163
164
165
166
167
168
169
169.1
170
170
172
173
174
177
178
179
180
181
182
183
183
183
185
185
185
186
187
189
189
192
193
288
288
184
183
185
184
178
153
145
145
158.1
144
140
88
76
181
182
183
185
183
185
98
112
74
175
92
117
117.1
92.3
92.3
161.1
308
1
2
3
4
5
6
7
15
16
17
18
19
20
21
22
23
26
27
24
25
26
27
28
29
30
31
32
38
39
40
41
40
41
42
43
44
44
45
45
47
48
49
50
51
52
53
55
56
57
58
59
60
43
39
38
309
310
194
195
196
198
199
201
203
204
205
206
207
208
209
210
213
214
215
216
216
217
217
218
220
221
222
223
224
225
226
227
228
229
230
231
232
233
234
235
236
236
239
240
241
242
243
244
245
246
250
251
252
253
254
255
256
257
258
259
260
261
262
263
264
265
265
266
267
268
269
270
271
272
273
274
275
276
276
276
276
277
278
279
280
281
283
284
285
286
286
290
291
292
293
294
296
297
298
299
300
301
302
303
286
272
265
246
237
237
219
32.1
32.2
32.3
211
212
197
311
312
313
105
105.1
200
1.1
1.2
316
314
315
314
315
314
60.1
35
242.1
242.2
189
317
319
318
320
321
321.1
322
323
324
325
326
327
328
329
330
331
332
333
334
335
336
337
338
339
340
341
342
343
344
345
346
347
348
349
350
328
61
62
63
64
65
66
67
68
70
71
71
35
35
35
36
37
351
116
8
9
10
14
12
9
8.1
11
87
309.1
353
354
355
2UDLYF000107
ࣈࣜࢵࢪᘧࢹࢵࣉࣇࣛࢵࢡࢫࣘࢽࢵࢺ')8%0:8⏝
BRIDGE-TYPE DIP FLUX UNIT (DFU-B)(For MWU) 1/
74
PTS- NADFU- 09

BRIDGE-TYPE DIP FLUX UNIT (DFU-B)(For MWU) 1/
ブリッジ式ディップフラックスユニット (DFU-B)(MWU用) 1/
2UDLYF000107
No. Drg.No. & Code No. QTY Description Rating Remarks
番号 図番 & コード番号 個数 品名 規格 備考
1 PB0AEX1 1 BKT
BKT
1.1 S2025A 1 SHEET
シート
CTAM1
1.2 K5208B 1 SCREW, C/R TRUSS
小ネジ 十穴トラス
M04X006(ステンレス)
2 H5287C 3 BOLT, HEX SOCKET
ボルト 六角穴
M04X008(ステンレス)
3 W1106M 3 WASHER, LOCK
ワッシャ スプリング
4M/M(ステンレス)
4 PB82722 1 GUIDE, CLAMP
ガイド クランプ
5 H5275T 2 BOLT, HEX SOCKET
ボルト 六角穴
M03X008(ステンレス)
6 W1021C 2 WASHER, LOCK
ワッシャ スプリング
3M/M(ステンレス)
7 W1042C 2 WASHER, FLAT
ワッシャ 平
3M/MX8X1.0(ステンレス)
8 PB84091 1 BKT
BKT
8.1 S2025A 1 SHEET
シート
CTAM1
9 H5710N 2 BOLT, HEX SOCKET
ボルト 六角穴
M03X006(ステンレス)
10 W1021C 1 WASHER, LOCK
ワッシャ スプリング
3M/M(ステンレス)
11 H3200M 1 BKT
BKT
OP-73880
12 H5276T 2 BOLT, HEX SOCKET
ボルト 六角穴
M03X010(ステンレス)
14 A10396 1 AMPLIFIER
アンプ
FS-V31M
15 PZ31715 1 TAPE
テープ
16 K5202C 2 SCREW, C/R TRUSS
小ネジ 十穴トラス
M03X003(ステンレス)
17 PB96340 1 BKT, PIVOT
BKT 支点
18 H5288T 2 BOLT, HEX SOCKET
ボルト 六角穴
M04X010(ステンレス)
19 W1106M 2 WASHER, LOCK
ワッシャ スプリング
4M/M(ステンレス)
20 K53583 1 SCREW, HEX SOCKET COUNTERSUNK
小ネジ 六角穴皿
M04X010(ステンレス)
21 PB96332 1 LEVER
レバー
22 PM06MT1 1 BOSS
ボス
23 PM06MY1 1 BLOCK
ブロック
24 PB03542 1 COLLAR
カラー
25 XW00561 1 WIRE
ワイヤ
26 H5276T 2 BOLT, HEX SOCKET
ボルト 六角穴
M03X010(ステンレス)
27 W1021C 2 WASHER, LOCK
ワッシャ スプリング
3M/M(ステンレス)
28 W1038R 1 WASHER, FLAT
ワッシャ 平
3M/MX0.5X7(ステンレス)
29 PB80813 1 BKT
BKT
30 H5275T 2 BOLT, HEX SOCKET
ボルト 六角穴
M03X008(ステンレス)
31 W1021C 2 WASHER, LOCK
ワッシャ スプリング
3M/M(ステンレス)
32 RH36814 1 HARNESS
ハーネス
32.1 K5173A 1 SCREW, C/R PAN
小ネジ 十穴鍋
M03X010(ステンレス)
32.2 W1021C 1 WASHER, LOCK
ワッシャ スプリング
3M/M(ステンレス)
32.3 W1038R 1 WASHER, FLAT
ワッシャ 平
3M/MX0.5X7(ステンレス)
35 S10610 4 SADDLE
サドル
WS-SE-1
36 PB0AFB1 1
COVER
カバー
37 K5202D 2
SCREW, C/R TRUSS
小ネジ 十穴トラス
M03X006(ステンレス)
38 PM02RC1 2 SPACER
スペーサ
39 W1002G 2 WASHER
ワッシャ
THA-268-2(3452)
40 H5711W 2 BOLT, HEX SOCKET
ボルト 六角穴
M05X045(ステンレス)
41 W1023C 2 WASHER, LOCK
ワッシャ スプリング
5M/M(ステンレス)
42 T5012K 1 HANDLE
取手
THA-31-9-タップ
43 PM033L2 1 RING
リング
SET
44 S3244E 2 SPACER
スペーサ
CU-301
45 H5275T 2 BOLT, HEX SOCKET
ボルト 六角穴
M03X008(ステンレス)
47 PB82941 1 HOLDER
ホルダ
48 H5710M 2 BOLT, HEX SOCKET
ボルト 六角穴
M03X005(ステンレス)
49 W1021C 2 WASHER, LOCK
ワッシャ スプリング
3M/M(ステンレス)
75
PTS- NADFU- 09

BRIDGE-TYPE DIP FLUX UNIT (DFU-B)(For MWU) 1/
ブリッジ式ディップフラックスユニット (DFU-B)(MWU用) 1/
2UDLYF000107
No. Drg.No. & Code No. QTY Description Rating Remarks
番号 図番 & コード番号 個数 品名 規格 備考
50 PM75074 1 HOLDER, SENSOR
ホルダ センサ
51 H5275T 2 BOLT, HEX SOCKET
ボルト 六角穴
M03X008(ステンレス)
52 W1021C 2 WASHER, LOCK
ワッシャ スプリング
3M/M(ステンレス)
53 S40263 1 SENSOR
センサ
E2K-L26MC1 2M
55 PM03HE2 1 HOLDER
受け
56 H5275T 2 BOLT, HEX SOCKET
ボルト 六角穴
M03X008(ステンレス)
57 W1021C 2 WASHER, LOCK
ワッシャ スプリング
3M/M(ステンレス)
58 A64483 1 ADAPTER
アダプタ
AT-50E-H-P4C-1.0M
59 S73887 1 SYRINGE
シリンジ
PSY-30F
60 K5005F 1 CONNECTOR
コネクタ
JR-4
60.1 PZ35691 1 TUBE
チューブ
61 PB0AFC2 1 COVER
カバー
62 K53581 6 SCREW, HEX SOCKET COUNTERSUNK
小ネジ 六角穴皿
M03X006(ステンレス)
63 PB0AFD0 1 COVER
カバー
64 K5202D 3 SCREW, C/R TRUSS
小ネジ 十穴トラス
M03X006(ステンレス)
65 PB95490 1 BKT, PIVOT
BKT 支点
66 K5202D 2 SCREW, C/R TRUSS
小ネジ 十穴トラス
M03X006(ステンレス)
67 PB95501 1 RETAINER
押え
68 PM06EG1 1 PIN, PIVOT
ピン 支点
70 PZ36431 1 SPRING, TORSION
スプリング ネジリ
71 S1021A 2 CIR-CLIP
サークリップ
ST-EW- 3(ユニクロメッキシロ)
74 AA6FK01 1 TRAY
トレイ
74.1 PM06AL3 1 TRAY
トレイ
75 N4024D 4 SCREW, HEX SOCKET SET
ネジ 六角穴止め
M02X005 ヒラサキ(ステンレス)
76 S30588 2 SHAFT
シャフト
SRU-2030
77 2MDLYF019600 1 PLATE
プレート
78 H5710N 8 BOLT, HEX SOCKET
ボルト 六角穴
M03X006(ステンレス)
80 PM01SE1 1 BLOCK, LOCATING
ブロック 位置決め
81 H5275T 2 BOLT, HEX SOCKET
ボルト 六角穴
M03X008(ステンレス)
82 W1021C 2 WASHER, LOCK
ワッシャ スプリング
3M/M(ステンレス)
83 PB79701 1 PLATE
プレート
84 K53581 2 SCREW, HEX SOCKET COUNTERSUNK
小ネジ 六角穴皿
M03X006(ステンレス)
85 PM01SM2 1 PIN
ピン
86 2MDLYF018302 1 MAGNET
マグネット
87 K51864 1 SCREW, C/R PAN
小ネジ 十穴鍋
M03X005(ステンレス)
88 S1021A 2 CIR-CLIP
サークリップ
ST-EW- 3(ユニクロメッキシロ)
89 PM05WG1 1 PIN, PIVOT
ピン 支点
90 PM05WH1 1 GUIDE
ガイド
91 PZ36201 1 SPRING, TORSION
スプリング ネジリ
92 PB95161 1 PLATE
プレート
92.1 PB95171 1 PLATE
プレート
92.3 K53581 4 SCREW, HEX SOCKET COUNTERSUNK
小ネジ 六角穴皿
M03X006(ステンレス)
93 PB79125 1 CATCH PAN
受け皿
94 H5710N 4 BOLT, HEX SOCKET
ボルト 六角穴
M03X006(ステンレス)
95 W1021C 4 WASHER, LOCK
ワッシャ スプリング
3M/M(ステンレス)
96 PM06AM3 1 BKT
BKT
97 H5278H 2 BOLT, HEX SOCKET
ボルト 六角穴
M03X015(ステンレス)
98 H5277C 2 BOLT, HEX SOCKET
ボルト 六角穴
M03X012(ステンレス)
99 PJ16701 1 RETAINER
押え
100 N4024C 2 SCREW, HEX SOCKET SET
ネジ 六角穴止め
M03X012 ヒラサキ(ステンレス)
101 N1076C 2 NUT, HEX
ナット 六角
M03 P=0.5 3シュ(ステンレス)
76
PTS- NADFU- 09