5OM-1625-003_w.pdf - 第102页

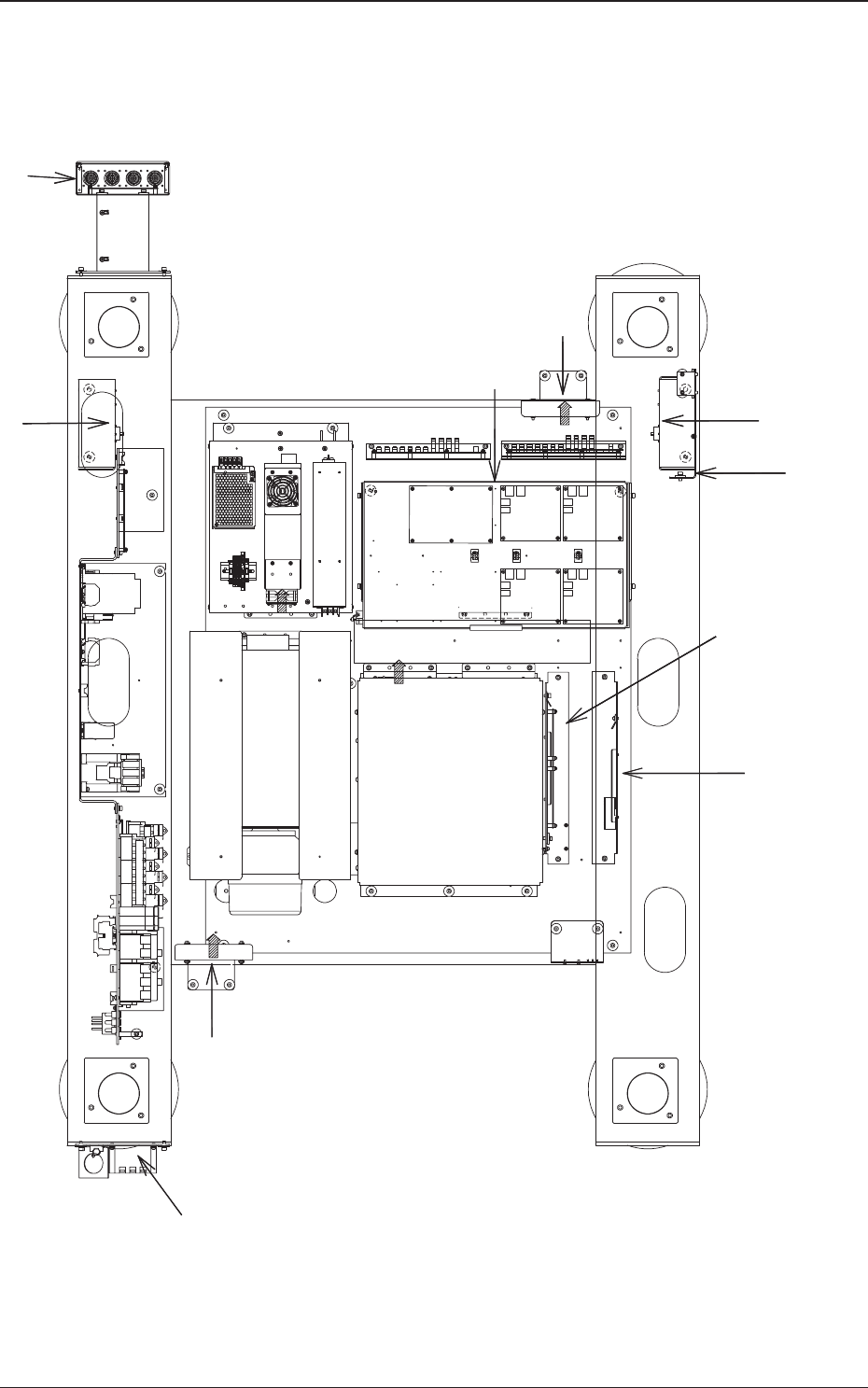
5OM-1603 3-1 Parts Location 1 102-004F(01C00) Layout under the Base (General View) Front/Rear I/F BOX Intermediate Conveyor I/F (L) Side Panel C Side Panel R Side Panel L Noise Filter Air Inlet FAN DC Power Supply CPU-1,…

100%1 / 207
5OM-1603
0908-002 3-B
5OM-1603
3-1
Parts Location
1102-004F(01C00)
Layout under the Base (General View)
Front/Rear I/F BOX
Intermediate Conveyor I/F (L)
Side Panel C Side Panel R
Side Panel L
Noise Filter
Air Inlet FAN
DC Power Supply
CPU-1,-2
LAN I/F
LED Lighting Control PCB
OP Panel RB
Intermediate Conveyor I/F (R)
Exhaust FAN
Servo Amplifier, I/O Board
CPU-Mst1
(option)
5OM-1603
3-2
Parts Location
1102-004D(01700)
Layout under the Base (DC Power Supply)
M174
M173
G4