5OM-1625-003_w.pdf - 第104页

5OM-1603 3-3 Parts Location 1 102-003J(01300) Layout under the Base (Side Panel L) Rear Side F201 F203 F202 Q201 Q206 Q204 K29 K28 K10 Q205 Q221R Q221R Q221R Vacuum Pump Q221F X Axis X Axis Y1 Axis Y2 Axis Q222F Y1 Axis …

100%1 / 207
5OM-1603
3-2
Parts Location
1102-004D(01700)
Layout under the Base (DC Power Supply)
M174
M173
G4
5OM-1603
3-3
Parts Location
1102-003J(01300)
Layout under the Base (Side Panel L)
Rear Side
F201 F203
F202
Q201 Q206
Q204
K29 K28 K10
Q205 Q221R Q221R Q221R
Vacuum
Pump
Q221F
X Axis
X Axis Y1 Axis Y2 Axis
Q222F
Y1 Axis
Q223F
Y2 Axis
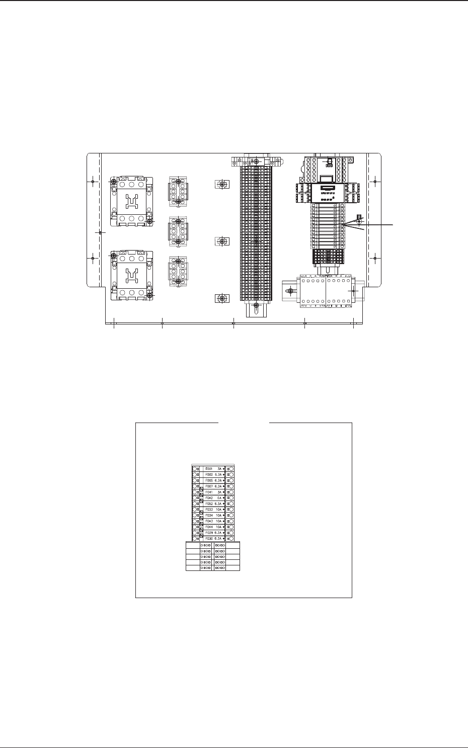
5OM-1603
3-4
Parts Location
1102-004J(01300)
Layout under the Base (Side Panel C)
B
K33A
K33B
K1
K25
K3
K4
K75
K77
K38 K50
Details B
F1
(3A)
F2
(6.3A)
F5
(6.3A)
F7
(6.3A)
F41
(3A)
F42
(5A)
F52
(6.3A)
F33
(10A)
F34
(10A)
F43
(10A)
F44
(10A)
F29
(6.3A)
F30
(6.3A)
24V Cricuit
48V
Cricuit