5OM-1625-003_w.pdf - 第126页
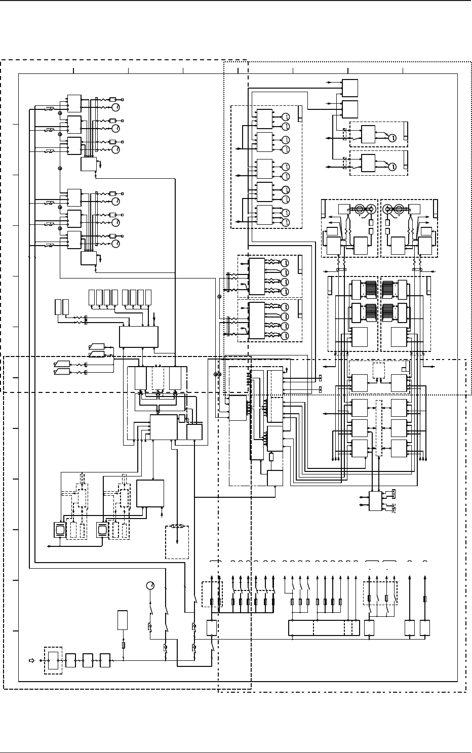
5OM-1603 4-9 1 102-004F(M914W A---0001) Integrated Block Connection Diagram (Details A) 24B3 24B1 External LAN 48D3A 48D3B 48D3E 48D3G 48D3F 3 3 2 2 3 3 3 3 3 3 2 3 3 M F201~203 F200 Q201 Q204 K28 Q205 K29 Q206 +48V(D) G…

5OM-1603
4-81102-004F(M914WA---0001)
Integrated Block Connection Diagram
A
B
C
D
24C
24C
24F
24F
24F
24F
24F
24F
24F
24G5A
24G8A
24G1,2A
24G*
24G*
24G1,2B
24G5B
24G8B
24B1
24B3
24B1
24B1 24B1
24B3
24B4
24B2
24B1
24A2 24A2
Extermal LAN
24B1
24B1
24B1
24B1
24B1 24B1
48D3A
48D3B
48D3E
48D3A 48D3B
48H
48H
48D3G
48D3K
48D3J
48D3K
48D3F
48D3H
48D
48D3J
48D3F 48D3E
48D3G
5J
24A1
24A2
24A0
24A3
24A*
24A1
24A3
24A3
24A1
3
3
22
3
3
2
3
3
3
3
3
2
3
MM
MMMMMMMMMMM
MMMMMMMM
3
M
3
M
3
M
3
M
3
M
3
M
3
M
F201~203
F200
Q201
Q204
K28
Q205
K29
M66
Q206
+48V(D)
G2
+24V(G)
G4
F13
F14
F33
K38
U27
+24V(A)
G1
+24V(B)
+24V(C)
+24V(F)
F1
K1A
F42
CONTROL
U82
MOTION
U85
HLSC
(CN8)
RS485
I/OSSCNET
+3.3V
+5V
U81
CPU
COM1 LAN
AC-IN
+5V
(CN5)
CN1
HLS LINK (HEAD)
HLS LINK
HLS LINK (IF+HEAD)
HLS LINK
SERIAL
SERIAL
I/O
ID:0
AE LINK
D81
M63F
CT(2)-Axis
U
CU-SRS(1)
M33
NLNSDD
M32M31
Servo Motor AMP
A31
CNP1
48V/24V
CN1A
SSC
M34
HL
CN3
24V
M33
NLNSDD
M32M31
A31
M34
HL
Servo Motor AMP
U
HH-SRS(2)
NOISE
FILTER
Z02
NOISE
FILTER
Z01
Q200
3φ AC200V-AC400
TRANSFORMER
T01
K33A
LAN2
CPU
U91
USB(1)
VGA
LAN1
USB(2)
U165
CN1
CN3
DC-IN
CN2
124
124
U92
Frame
Grabber
PIO
CAM
+12V
AC-IN
+5V
+12V
CPCI
PCI
+48V(F)
G7
124
U93
Frame
Grabber
PIO
CAM
124
U94
COUNTER
IN
OUT
Trigger
CN2
CN3
CN1
CN6
CN8
CN5
CN7
E191
E39
E39
(1)
(2)
(2)
CN4
U178
USB HUB
REAR
N74
FRONT
N74
N76
Option
(100W)
Option
CN1B
SSCNET3 (Optic)
CNP1
48V/24V
CN1A
SSC
CN3
24V
CN1B
F2
F5
K25
F7
F52
F41
F43
U
SL-SRS
AE LINK
K75
K71
K77
K72
U178
USB HUB
2CH1CH 2CH1CH
U181F
CN1 CN4 CN2
A63F
Servo Motor
AMP
CN2CN1
CN3 CN5
AE LINK(CH2)
K10
F29
F30
CH1 CH2 CH2CH1
(CN9) (CN10) (CN13)
A_LINK
AE_LINK
U181R
CN1 CN4 CN2
AE LINK
E192
(2)
E193
(2)
E194
(2)
E191
(1)
E192
(1)
E193
(1)
E194
(1)
K1B
COM2
G21
G22
COM1
COM2
+5V
F34
F44
K50
K33B
ILB
U05 U07 U08
U06
U27
CN3
CN4
CN1
CN2
CN1
CN4
CN5
CN3
CN4
CN3
CN4
HLS LINK
HLS LINK
SERIAL
Relay P.C.B
CNVR-L
CUT(2)
PWR
U12
CN3
CN4
U14
CN3
CN4
CNVR-R
U01
CN3
CN4
CN1
CN2
PNL
U09
CN3
CN4
CUT(1)
CN1
CN2
CN1
CN2
CN1
CN2
CN1
CN2
CN1
CN2
D91
A63R
M63R
CT(1)-Axis
Servo Motor
AMP
CN2CN1
CN3 CN5
AE LINK
U
SL-SRS
(F) (R)
NA-BAL
M53
Stepping Mot AMP
A53
CN9
EMG
CN10
PWR
N2
AE
N1
AE
CN5CN1
M54
NA-BAR
CN7CN3
A161
CN9
EMG
CN10
PWR
N2
AE
N1
AE
CN5CN1 CN7CN3
M162
NA-W2
NL-LA1
M41
A41
CN9
EMG
CN10
PWR
N2
AE
N1
AE
CN5CN1
M42
NL-LA2
CN7CN3
NA-LA1
M43 M44
NA-LA2
NR-LA1
M49
A49
CN9
EMG
CN10
PWR
N2
AE
N1
AE
CN5CN1
M50
NR-LA2
CN7CN3
A43
CN9
EMG
CN10
PWR
N2
AE
N1
AE
CN5CN1 CN7CN3
NA-W1
M161
AE LINK(CH1)
K52 K52
(RS232C)
U190
U180
U25
X1
LINE SENSOR
U03
CN6
CN5
X2
Slip
LINE SENSOR
U03
U147
Conn.
CN1
X1
U25
X2
CN1 CN6
CN5
Rings
U37
Slip
J1
Rings
U37
U04
U04
FB
U69
CN9
CN8
CN6
U
FB-SRS(2)
FB
U69
U68a
CN9
X100
Connector PCB
CN8
CN6
U68b
X100
Connector PCB
FEEDER
FEEDER
U68a
X100
Connector PCB
U68b
X100
Connector PCB
FEEDER
FEEDER
F21-24
F25-28
U27
A21R
Servo Motor
A22R A23R
M21R
X-Axis
Linear Scale
I/F
U21R
M22R
U22R
M23R
U23R
AMP
Y1-Axis
Linear Scale
Y2-Axis
Linear Scale
Servo Motor
AMP
Servo Motor
AMP
I/F I/F
CN5
U24R
Connector
PCB ENCD
Q222R Q223R
A21F
Servo Motor
A22F A23F
M21F
X-Axis
Linear Scale
I/F
U21F
M22F
U22F
M23F
U23F
AMP
Y1-Axis
Linear Scale
Y2-Axis
Linear Scale
Servo Motor
AMP
Servo Motor
AMP
I/F I/F
CN5
Connector
PCB ENCD
Q221F Q222F Q223F
CN12 CN12
U24F
B36(1)
B36(2)
B61(1)
B61(2)
(CN15)(CN3)(CN14)
X18514X18512
U
HH-SRS(1)
U
CU-SRS(2)
CPUM-OUT:LAN1
CPU1-LINE:LAN1
CPUM-LINE:LAN2
U
FB-SRS(1)
U
HH-SRS(1)
U
HH-SRS(2)
P.C.B
U147
Conn.
P.C.B
J1
(R) (F) (R) (F)
P2A 2A P2B 2B P2C 2C P2D 2D P2A 2A P2B 2B P2C 2C P2D 2D
2 3 412 3 41
IF
Stepping Mot AMP Stepping Mot AMP Stepping Mot AMP Stepping Mot AMP
Q221R
+5V(J)
G8
F61
LCD
(TP)
LCD
(TP)
DOM
DOM
Image Changer
INPUT
ATX Power Supply
A31:
A31:
U95:
OUTPUT
U71:CPU_M(OP)
U72:HUB
Key Board
SV-NET
ConverterConverter
SV-NET
Extermal LAN Connection Panel
Power Supply for OP
1
2 3 4 5 6 7 8 9 10 11 12
A
B
C
D
E
F
G
H
*
*
*
*
SSCNET3 (Optic)
SSCNET3 (Optic)
U95
N76
N75
(300W)
N76
N75
Option
(1) (2) (1) (2)
A41,A45,A47:
A161,A53:
A43,A49,A51:
OUTPUT
A63R:
A63F:
A162,A55:
15 Lane 15 Lane
15 Lane 15 Lane
Beam Connector
Relay Panel
Beam Connector
Relay Panel
Beam Connector
Relay Panel
Main Power Supply
Control Power Supply
SSCNET3 (Optic)
PEC Recognition Lighting
PEC Recognition Lighting
PEC Recognition Lighting
PEC Recognition Camera
Beam Connector
Relay Panel
LED Lighting
Control PCB
Component
Recognition
Camera
CPU1 (Operation and Recognition PC)
Power
Supply
Track Ball
Key Board
Track Ball
Lighting Surge
Protector
Attached externally to the Machine
Vacuum Pump
Main Power
Supply
Control Power
Supply
Main Power Unit for the Head Unit
Multi-axis Board
Main Power Unit for the Transfer Unit 2-Axis Board
Main Power Unit for the Transfer Unit 2-Axis Board
Power Unit for the Transfer Unit 2-Axis Board
Power Input Circuit
CT Axis SV-NET Power Supply
CT Axis SV-NET Power Supply
Main Power Unit for the Transfer Unit 2-Axis Board
Safety Circuit
N74: Power Unit for the Front and Rear Monitors
External Power Unit for the Input and Output Machines through I/F
Head Unit Multi-Axis Board Control Power Unit
Safety Circuit
Cooling Fan
Main Power Unit for the LED Lighting Control PCB
Power Unit for the External Unit (1)
Power Unit for the External Unit (2)
External Unit
Connecting Bundled
Connector
Beam Connector
Relay Panel
Each Loads and Sensor
Each Loads
and Sensor
External Unit Connecting
Bundled Connector (Front)
External Unit Connecting
Bundled Connector (Rear)
External Conveyor
Connection Panel
(Left) (Right)
Power
Supply
ATX Power Supply
Beam Connector
Relay Panel
Beam Connector
Relay Panel
Beam Connector
Relay Panel
Beam Connector
Relay Panel
External Unit Connecting
Bundled Connector
(Movable-Movable)
Line Sensor
Light
Reception
Line Sensor
Light
Emission
Light
Reception
Light
Emission

5OM-1603
4-91102-004F(M914WA---0001)
Integrated Block Connection Diagram (Details A)
24B3
24B1
External LAN
48D3A
48D3B
48D3E
48D3G
48D3F
3
3
22
3
3
3
3
3
3
2
3
3
M
F201~203
F200
Q201
Q204
K28
Q205
K29
Q206
+48V(D)
G2
F13
F14
F33
K38
U27
CONTROL
U82
MOTION
I/OSSCNET
ID:0
NOISE
FILTER
Z02
NOISE
FILTER
Z01
Q200
3φ AC200V-AC400
T01
K33A
LAN2
CPU
U91
USB(1)
VGA
LAN1
USB(2)
U165
CN1
CN3
DC-IN
CN2
124
124
U92
PIO
CAM
+12V
AC-IN
+5V
+12V
PCI
124
U93
PIO
CAM
124
U94
IN
OUT
Trigger
U178
USB HUB
REAR
N74
FRONT
N74
N76
N75
Option
(300W)
Option
F43
U178
USB HUB
N76
N75
Option
2CH1CH 2CH1CH
K10
G21
COM1
COM2
+5V
F34
F44
K33B
D91
U190
U180
B36(1)
B36(2)
CPUM-OUT:LAN1
(R) (F)
LCD
(TP)
LCD
(TP)
DOM
部品認識カメラ
1
2 3 4 5 6
*
M66
SSCNET3 (Optic)
SSCNET3 (Optic)
TRANSFORMER
Frame
Grabber
Frame
Grabber
COUNTER
CPU1-LINE:LAN1
CPUM-LINE:LAN2
A31:
A41,A45,A47:
A161,A53:
A43,A49,A51:
PEC Recognition Camera
Beam Connector
Relay Panel
CPU1 (Operation and Recognition PC)
ATX Power Supply
Power
Supply
Track Ball
Key Board
Track Ball
Key Board
Lighting Surge
Protector
Attached externally to the Machine
Vacuum Pump
Main Power
Supply
Control Power
Supply
Image Changer
External LAN Connection Panel
Main Power Unit for the Head Unit
Multi-axis Board
Main Power Unit for the Transfer Unit 2-Axis Board
Main Power Unit for the Transfer Unit 2-Axis Board
Power Unit for the Transfer Unit 2-Axis Board

5OM-1603
4-10
Integrated Block Connection Diagram (Details B)
1102-004F(M914WA---0001)
24C
24C
24F
24G5A
24G8A
24G1,2A
24G
24G
24G1,2B
24G5B
24G8B
24B1
24B3
24B1
24B4
24B2
24B1
24B1
48D3E
48H
48D3G
48D3J
48D3K
48D3F
48D3H
48D
5J
24A1
24A2
24A0
24A3
24A*
24A1
24A3
24A3
24A1
+24V(G)
G4
F33
K38
+24V(A)
G1
+24V(B)
+24V(C)
+24V(F)
F1
K1A
F42
CONTROL
U82
MOTION
U85
HLSC
(CN8)
RS485
I/OSSCNET
+3.3V
+5V
U81
CPU
COM1 LAN
AC-IN
+5V
(CN5)
CN1
HLS LINK (HEAD)
HLS LINK
HLS LINK (IF+HEAD)
HLS LINK
SERIAL
SERIAL
I/O
ID:0
AE LINK
D81
CPCI
+48V(F)
G7
(100W)
F2
F5
K25
F7
F52
F41
F43
AE LINK
K75
K71
K77
K72
2CH1CH 2CH1CH
F29
F30
CH1 CH2 CH2CH1
(CN9) (CN10) (CN13)
A_LINK
AE_LINK
K1B
COM2
G22
F34
F44
K50
ILB
U05 U07 U08
U06
U27
(1) (2)
CN3
CN4
CN1
CN2
CN1
CN4
CN5
CN3
CN4
CN3
CN4
HLS LINK
HLS LINK
SERIAL
Relay P.C.B
(1) (2)
CNVR-L
CUT(2)
PWR
U12
CN3
CN4
U14
CN3
CN4
CNVR-R
U01
CN3
CN4
CN1
CN2
PNL
U09
CN3
CN4
CUT(1)
CN1
CN2
CN1
CN2
CN1
CN2
CN1
CN2
CN1
CN2
U
SL-SRS
(RS232C)
U180
F21-24
F25-28
U27
(CN15)(CN3)(CN14)
X18514X18512
2 3 412 3 41
IF
+5V(J)
G8
F61
DOM
INPUT
A41,A45,A47:
A31:
U95:
OUTPUT
U71:CPU_M(OP)
U72:HUB
A161,A53:
A43,A49,A51:
OUTPUT
A63R:
A63F:
A162,A55:
Main Power Unit for the Transfer Unit 2-Axis Board
Main Power Unit for the Transfer Unit 2-Axis Board
Power Unit for the Transfer Unit 2-Axis Board
Power Input Circuit
CT Axis SV-NET Power Supply
CT Axis SV-NET Power Supply
Main Power Unit for the Transfer Unit 2-Axis Board
Safety Circuit
N74: Power Unit for the Front and Rear Monitors
External Power Unit for the Input and Output Machines through I/F
Head Unit Multi-Axis Board Control Power Unit
Safety Circuit
Cooling Fan
Main Power Unit for the LED Lighting Control PCB
Power Supply for OP
Power Unit for the External Unit (1)
Power Unit for the External Unit (2)
External Unit
Connecting Bundled
Connector
Beam Connector
Relay Panel
Each Loads and Sensor
Each Loads
and Sensor
External Unit Connecting
Bundled Connector (Front)
External Unit Connecting
Bundled Connector (Rear)
External Conveyor
Connection Panel
(Left) (Right)
Power
Supply
ATX Power Supply