5OM-1625-003_w.pdf - 第144页
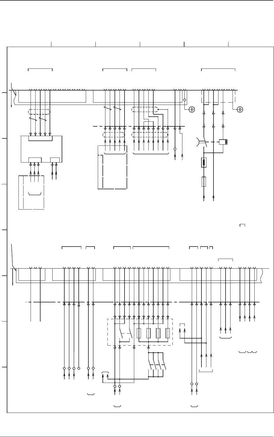
5OM-1603 4-27 1 102-003D(M914WD---0012) External Unit Connecting Bundled Connector (Rear) 1 2 3 4 5 6 7 8 A B C D E F 10G 24G5A 24G6A 24G7A 24G8A :1 1ch-1 :1 :2 F21(5A) F22(5A) F23(5A) F24(5A) 10G 10G 10G :4 :3 :2 X271 1…

5OM-1603
4-261102-004J(M914WD---0011)
U09 I/O PCB STLT OUT (1)
649
X0917
X0901 X0902
CN1A/1B
CN2A/2B
IN OUT
CN10
1 2
3
CN4CN3
21
24B1
10B
10A
24A3
CN11
CN12
CN13
CN14
CN15
CN16
CN17
CN18
CN19
CN20
CN21
CN22
CN23
CN25
-
OUT
+
+
OUT
-
+
OUT
-
+
OUT
-
1
2
3
3
2
1
3
2
1
3
2
1
3
2
1
3
2
1
1
2
3
1
2
3
1
2
3
1
2
3
1
2
3
3
2
1
3
2
1
3
2
1
3
2
1
3
2
1
2
1
CN45
CN43
CN42
CN41
CN40
CN39
CN38
CN37
CN36
CN35
CN34
CN33
CN32
CN31
CN30
CN24
1
2
1
2
1
2
1
2
1
2
1
2
1
2
1
2
1
2
1
2
1
2
1
2
1
2
1
2
1
2
CN44
4
BR
BK
BL
X0923
X0922
X0921
X0920
X0919
X0918
X0916
X0915
X0914
X0911
X0910
B0914
B0915
X0944
X0930
X0931
X0932
X0933
X0935
X0936
X0937
X0938
X0903 X0904
X:1-NST18,20,22
XB0915
XB0914
XB0911
XB0910
:1
:2
:3
:3
:2
:1
:3
:2
:1
:3
:2
:1
:3
:2
:1
:7
:6
:5
Y0932
Y0933
:1
:2
:1
:2
XY0932
XY0933
655
654
653
652
651
650
648
647
646
643
642
658
659
660
661
663
664
665
666
673
672
:9
:3
:5
:7
:4
X:1-NST18,20,22
:11
:8
:9
:10
X:1-NST18,20,22
X:1-NST35,36
X:1-NST35,36
:4
:3
:2
:1
:A2
:A1
X:2-NST18,20,22
X:2-NST18,20,22
X:2-NST18,20,22
X:2-NST35,36
:4
:3
X0924
656
X0942
670
669
X0941
X0940
668
RX
/RX
TX
/TX
7 39 5 5 93 7
/TX
TX
/RX
RX
:7
:5
:3
:9
-X1300D3
Y0938
XY0938
:2
:1
[F-/02/6A] [D-/21/3A]
[D-/12/3F]
[B-/02/5C]
[B-/02/5B]
I/O P.C.B
U09
X0939
667
Y0939
XY0939
:2
:1
X0934
662
X:2-NST35,36
:2
:1
:A3
X2761
K11
16 15
:B3
X2761
K15
1 8
U27
:B4
X2761
K21
16 15
24A1
U27
24A1
:A5
X2761
:1
X27163
K29
A1 A2
X0945
671
644
645
X0925
657
X195-1
X195-2
:3
:2
:1
:7
:6
:5
:4
:11
:8
:9
:10
X0943
X0912
X0913
X195-10
X195-11
X0943A-1
X0943A-2
Y0942
XY0942
:2
:1
B0912
XB0912
B0913
XB0913
:3
:2
:1
BR
BK
BL
W
BK
BL
BR
BK
BL
BR
BK
BL
BK
R
BK
R
BK
R
BK
R
X1195
:1
X1195
:2
X1195
:8
X1195
:9
OUT1
-
BK
R
:4
BR
+
OUT2
W
BK
BL
OUT1
BR
+
OUT2
:3
:2
:1
:4
-
B0911
B0910
X10924
:1
:2
STLT_CUT(1)
D.ON
L.ON
-
+
OUT
-
BL
BK
W
BL
BK
BR
BR
+
+
BR
W
BK
BL
-
L.ON
D.ON
BK
R
BK
R
D.ON
L.ON
-
BL
BK
W
BR
+
+
OUT
-
BL
BK
BR
+
BR
W
BK
BL
-
L.ON
D.ON
BK
R
ch2-1
X0102(CN2)
U01(STLT PNL)
注1 注1
U06(STLT CUT(2))
X0601(CN1)
ch2-1
X : Power Supply for 1-B1611 and 2-B1611
1 2 3 4 5 6 7 8
A
B
C
D
E
F
Connector Case
FG
(Connector Case)
Connector Case
FG
(Connector Case)
Y-Direction Positioning Check 1
Y-Direction Positioning Check 2
Cylinder Upper Limit Detection
Cylinder Lower Limit Detection
Feeder Base/Main Body
Connection Check
External Unit Connecting
Bundled Connector (Rear)
Feeder Base 1
Feeder Base 1
Positioning Unit Drop
Prevention Lock Check 1 (L)
Positioning Unit Drop
Prevention Lock Check 1 (R)
Unit Lower Limit Detection 1
Unit Lower Limit Detection 2
Shutter Closing Check 1
Shutter Closing Check 2
Clamping Check 1
Clamping Check 2
Emergency Stop Confirmation (R)
External Conveyor Unit
Emergency Stop Confirmation (L)
External Conveyor Unit
Nozzle Stocker 1
Nozzle Stocker 1
Nozzle Stocker 1
Nozzle Stocker 1
Nozzle Stocker 1
Nozzle Stocker 1
OP
OP
OP
Feeder Base 1 Ascending
Feeder Base 1 Descending
Vacuum/Collective
Disposal Change-Over
Ascending 2
Ascending 1
Shutter Open/Close 1
Shutter Open/Close 2
OP
OP
High-Speed/Multi-Functional
Head Change Over
Beam Main Power Control
Head Main Power Control
Conveyor and Cutter Main
Power Control
Vacuum Pump Power Control
Nozzle Stocker 1
Nozzle Stocker 1
Nozzle Stocker 1
Nozzle Stocker 1
Module Conveyor
Lane A CV Rotation (L)
Module Conveyor
Lane B CV Rotation (L)
OP
Dust Air Blowing (Rear)
PCB Positioning Unit
Drop Prevention Stopper 1

5OM-1603
4-271102-003D(M914WD---0012)
External Unit Connecting Bundled Connector (Rear)
1 2 3 4 5 6 7 8
A
B
C
D
E
F
10G
24G5A
24G6A
24G7A
24G8A
:1
1ch-1
:1
:2
F21(5A)
F22(5A)
F23(5A)
F24(5A)
10G
10G
10G
:4
:3
:2
X27111:1
:4
:3
:2
4443
3433
2423
1413
K75
:2
X2715
:1
43
56
K71
U27
:4
:3
:2
X27121:1
X2717
:1
:2
L110
L210
E
L310
:B2
:B1
:A6
:A5
:B6
:B5
:B4
:B2
:B1
:2
:1
10B
24B1
10D
48D3J
24A2
10A
U181R
:2
:3
:4
:5
:6
:7
:8
:9
:10
:9
:10
:11
:12
TX
-TX
-RX
RxD
GND
RX
SD
TxD
:5
:6
:7
:8
:9
:10
:11
:12
:1
:2
:1
:2
:3
:4
:5
:6
:3
:4
:5
:1
:2
:3
:4
RTS
CTS
:9
:7
:5
:3
:5
:3
:8
:7
[B-/02/11F]
RS232C
:2
:1
:2
:3
:4
:5
:6
:7
:8
:7
:8
:9
:10
:11
:12
CPU2(U81)-COM1
U08(STLT_CNVR:L)
N.C
N.C
N.C
N.C
N.C
N.C
GND
CAN H
24V
SV-NET
A63A
A63A
[B-/02/12E]
SD
CAN L
SG
:A2
:A1
U09(CT)-X0916:1
U09(CT)-X0916:2
10B
648
:B1
:B2
U12(PWR)-X1224:2
U12(PWR)-X1225:2
[B-/03/6F]
GND
DC24
CAN H
CAN L
SD
Q201-L1
Q201-L2
Q201-L3
[B-/01/4F]
:1
:4
:3
:2
COM A
1
5
4
2
3
X1811R
A1
B1
A3
CN4
TR+
TR-
GND
1
2
CN2
GND
24V
CN1
COM B
10B
:2
:3
:4
10A
24A2
10D
48D3J
24A2
10A
10G
24G1A
24G2A
10G
[D-/12/5B]
U181R-X1812
:B3
425
X27153
[B-/02/6E]
10B
24B1
10G
24G
421
1CH
:A1
:A4
:A3
:A2
:A1
:A2
:B3
:A2
:A1
:9
:7
:5
:3
:2
:3
:5
:7
:8
X1814
X1812
[D-/12/3E]
[D-/11/3C]
[BL/03/6D]
[BL/03/6E]
[F-/11/8B]
X27112:1
:1
:2
:3
U27(RLY)
-X1300B1
-X1300C
-X1300D1
-X1300F1
-X1300F2
-X1300D3
-X1300D2
[FB/01/1A]
[FB/01/1F]
[FB/01/1F]
[CU/01/1B]
-X300B
-X300C
-X300D
-X300F
-X300E-X300A
U69(FB) (1)
X6909
U69(FB) (1)
X6906
24G3A
540
541
*
-X1300B2
:3
:6N.C
:11U27-X2723:3
:1
[BL/01/2B]
-X1300F3
500
:12
:2
X8104
X0802
:6
:4
:4
:6
-X1140
:3
:1
:2
914A
913A911A 912A
14 13
K90A
8 12
R03A
(1sec)
F050A(5A)
:3
-X2140
:1
:2
24G
10G
X140R
:E
:F
:G
:B
:C
:D
:A
[D-/12/5E]
[D-/12/1C]
913A
913A
10G
10G
FG
914A
U05-X0522:2
[BL/01/7E]
512
:B1
HLS-LINK
AE-LINK
1 2 3 4 5 6 7 8
A
B
C
D
E
F
(6 Pin)
B Module
Main Machine
(12 Pin)
C Module
(5 Pin)
D Module
(12 Pin)
F Module
(12 Pin)
E Module
(2 Pin)
A Module
Air Pressure
(Bundled Connector Relay)
TV.EV12 Power Supply (OP)
EMI Case
Multi-Layer Tray (OP)
AC200V Power Line
DC Power Line
for the Feeder Base
DC48V Power Line
CT-Axis AMP
CT-Axis AMP
Multi-Layer Tray <ACV> (OP)
DC Power Line for
the Multi-Layer Tray (OP)
Feeder Connection Confirmation
Multi-Layer Tray Connection Confirmation (OP)
Wafer Connection Confirmation (OP)
EMI Case
Multi-Layer Tray (OP)
(Bundled Connector Relay)
EMI Case
Connector Case
[CU/01/1B]
Safety Circuit
Multi-Layer Tray (OP)
DC Load Power Line
DC Power Line
for the Feeder Base
[FB/01/1G]
Multi-Layer Tray <ACV> (OP)
Air Pressure
Multi-Layer Tray : Emergency Stop
*OPTION
Multi-Layer Tray :
[FB/01/1C]
Main Machine
X30R : External Unit Connecting Bundled Connector
X30R
External Unit Connecting
Bundled Connector
SL-SRS or DL-SRS
SL-SRS or DL-SRS
Tape Feeder
Single Connection
Connector
(Drawer Connector)
[FB/01/1F]
To Ethernet Convertor To ID Controller
Interlock
Feeder Base

5OM-1603
4-28
1102-004K(M914WD---0021)
U06 I/O STLT CUT (2)
X0601 X0602
CN1A/1B
CN2A/2B
IN OUT
CN10
1 2
3
CN4CN3
21
24B1
10B
10A
24A3
CN11
CN12
CN13
CN14
CN15
CN16
CN17
CN18
CN19
CN20
CN21
CN22
CN23
CN25
-
OUT
+
+
OUT
-
+
OUT
-
+
OUT
-
1
2
3
3
2
1
3
2
1
3
2
1
3
2
1
3
2
1
1
2
3
1
2
3
1
2
3
1
2
3
1
2
3
3
2
1
3
2
1
3
2
1
3
2
1
3
2
1
2
1
CN45
CN43
CN42
CN41
CN40
CN39
CN38
CN37
CN36
CN35
CN34
CN33
CN32
CN31
CN30
CN24
1
2
1
2
1
2
1
2
1
2
1
2
1
2
1
2
1
2
1
2
1
2
1
2
1
2
1
2
1
2
CN44
4
X0623
X0622
X0621
X0620
X0619
X0618
X0616
X0615
X0614
X0613
X0612
X0611
X0610 X0630
X0631
X0632
X0633
X0935
X0636
X0937
X0638
X0643
-X0603 -X0604
XB0615
XB0614
XB0611
XB0610
:1
:2
:3
:3
:2
:1
:3
:2
:1
:3
:2
:1
Y0632
Y0633
:1
:2
:1
:2
XY0632
XY0633
687
686
685
684
683
682
680
679
678
677
676
675
674
690
692
693
695
696
697
698
703
705
704
:9
:3
:5
:7
:A2
:A1
688
X0642
702
701
X0641
X0640
700
689
X0625
RX
/RX
TX
/TX
7 39 5 5 93 7
/TX
TX
/RX
RX
:7
:5
:3
:9
Y0638
XY0638
:2
:1
[D-/11/6A]
[B-/02/5C]
[B-/02/5B]
I/O P.C.B
U06
X0639
699
Y0639
XY0639
:2
:1
X0634
694
X10701
:1
:2
[D-/02/2E]
X0624
-X1300D3
[D-/22/3F]
X196-1
X196-2
X:1-NST18,20,22
:3
:2
:1
:7
:6
:5
:4
X:1-NST18,20,22
:11
:8
:9
:10
X:1-NST18,20,22
X:1-NST35,36
X:1-NST35,36
:4
:3
:2
:1
X:2-NST18,20,22
X:2-NST18,20,22
X:2-NST18,20,22
X:2-NST35,36
:4
:3
X:2-NST35,36
:2
:1
:3
:2
:1
:7
:6
:5
:4
:11
:8
:9
:10
X196-10
X196-11
X0643A-1
X0643A-2
Y0642
XY0642
:2
:1
X1196
:1
X1196
:2
X1196
:8
X1196
:9
BR
BK
BL
BR
BK
BL
BR
BK
BL
BK
R
BR
BK
BL
X0644
X0645
B0612
XB0612
B0613
XB0613
:3
:2
:1
W
BK
BL
OUT1
-
:4
BR
+
OUT2
W
BK
BL
OUT1
BR
+
OUT2
:3
:2
:1
:4
-
B0614
B0615
B0610
B0611
BK
R
BK
R
BK
R
BK
R
X10624
:1
:2
705
704
[BL/01/2E]
B5014
[BL/01/2E]
B5015
STLT_CUT(2)
D.ON
L.ON
-
+
OUT
-
BL
BK
W
BL
BK
BR
BR
+
+
-
L.ON
D.ON
BL
BK
W
BR
BK
R
BK
R
D.ON
L.ON
-
+
OUT
-
BL
BK
W
BL
BK
BR
BR
+
+
-
L.ON
D.ON
BL
BK
W
BR
BK
R
ch2-1
X0902(CN2)
U09(STLT CUT(1))
U14(STLT CNVR(R))
X1401(CN1)
ch2-1
X0701:3へ
X0701:4へ
U07(STLT_IF)
X : Power Supply for 1-B1611 and 2-B1611
1 2 3 4 5 6 7 8
A
B
C
D
E
F
SL-SRS or DL-SRS
Feeder Base 2 Ascending
Feeder Base 2 Descending
Ascending 2
Ascending 1
Shutter Open/Close 1
Shutter Open/Close 2
OP
OP
High-Speed/Multi-Functional
Head Change Over
F/R Prcs. Communication
Permitted
Nozzle Stocker 2
Nozzle Stocker 2
Nozzle Stocker 2
Nozzle Stocker 2
Module Conveyor
Lane A CV Rotation (R)
Module Conveyor
Lane B CV Rotation (R)
OP
Dust Air Blowing (Rear)
Vacuum/Collective Disposal
Change-Over
PCB Positioning Unit
Drop Prevention Stopper 2
Pick-up Error Detection
Sensor (Rear)
Remote
Pick-up Error Detection
Sensor (Front)
Remote
Y-Direction Positioning Check 1
Y-Direction Positioning Check 2
Cylinder Upper Limit Detection
Cylinder Lower Limit Detection
Unit Lower Limit Detection 1
Unit Lower Limit Detection 2
Shutter Closing Check 1
Shutter Closing Check 2
Clamping Check 1
Clamping Check 2
Feeder Base/Main Body
Connection Check
OP
OP
OP
External Conveyor Unit
Emergency Stop Confirmation (R)
External Conveyor Unit
Safety Cover Check (R)
Nozzle Stocker 2
Nozzle Stocker 2
Nozzle Stocker 2
Nozzle Stocker 2
Nozzle Stocker 2
Nozzle Stocker 2
Feeder Base 2
Positioning Unit Drop
Prevention Lock Check 2 (L)
Positioning Unit Drop
Prevention Lock Check 2 (R)
External Unit Connecting
Bundled Connector (Front)
Connector Case Connector Case
FG
(Connector Case)
FG
(Connector Case)