5OM-1625-003_w.pdf - 第198页
5OM-1603 5-17 1 102-004J(01300-13) SSCNET , SERIAL Cable Connection Diagram 2 X8201 X8202 <RobotCable> X8203 T o U05,K4 1CH 2CH 1CH X8204 T o U05 <RobotCable> -X131 1B U81 X8102 X8104 X8109 -X1300F2 -X1300F2 …

5OM-1603
5-161102-004J(01300-13)
SSCNET, SERIAL Cable Connection Diagram 1
HLS1
HLS2
CH1
CH2
HLS4
HLS3
-X22501
D-sub9P
-X12501
<ROBOT CABLE>
SCR
CN9
-X6909
-X1300F1
-X30
-X6909
UB76(FB)
CN9
SCR
U85 HLS
X0101 X0102
UB32(PNL)
CN2BCN1B
SCR
LINE SENSOR
CN6
Slip
UB78(HD)
-X0306
CN6-CN9
-X3701
-X23701
-X12501
<ROBOT CABLE>
D-sub9P
-X22501
-U69
X1401 X1402
UB86(CNVR)R
CN2BCN1B
SCR
U14
U01
UB76(FB)
-U69
-U03
-U37
Rings
UB79
CN1
-X2501
-U25
-U04
CN20
CN21
LINE SENSOR
CN6
Slip
UB78(HD)
-X0306
CN6-CN9
-X3701
-X23701
-U03
-U37
Rings
UB79
CN1
-X2501
-U25 -U04
CN20
CN21
X8501
X8502
X8503
X8504
X0902
CN2BCN1B
SCR
X0901
UB32(CT)(1)
U09
XCN1
X0501
X0502
XCN2
SCR
UB54(ILB)
U05
(A-LINK)
CN1
X1201
X1202
CN2
SCR
UB32(PWR)
U12
X0801 X0802
UB86(CNVR)L
CN2BCN1B
SCR
U08
X0704 X0705
UB82(Input/Output Machine)
CN5CN4
U07
X0602
CN2BCN1B
SCR
X0601
UB32(CT)(2)
U06
-X1300F1
-X30
SCR
-X10422
-X10422
(CN8)
(CN9)
(CN13)
(CN10)
RS485
(AE-LINK)
AELINK1
CH1
RJ45
X8511
X8512
(CN14)
(CN3)
RJ45
AELINK2
X18512
AELINK3
CH2
RJ45
X8513
X8514
(CN15)
(CN5)
RJ45
AELINK4
X18514
X8515
CN3
X18104
To A45:N2
X1811R
U181R
(AE-LINK)
X18104
To A51:N2
X1811F
U181F
(AE-LINK)
SV-NET Converter
SV-NET Converter
DC24V
DC24V
X18102
X18102
FB-SRS(1)
FB-SRS(2)
HH-SRS(1)
HH-SRS(2)
SL-SRS
SL-SRS
SL-SRS
SL-SRS
To A53:N1(SL-SRS)
To A51:N1(SR-SRS)
External Conveyor
External Conveyor
To TB(24B1)
To External Unit Connecting Bundled Connector (1)
To External Unit Connecting Bundled Connector (2)

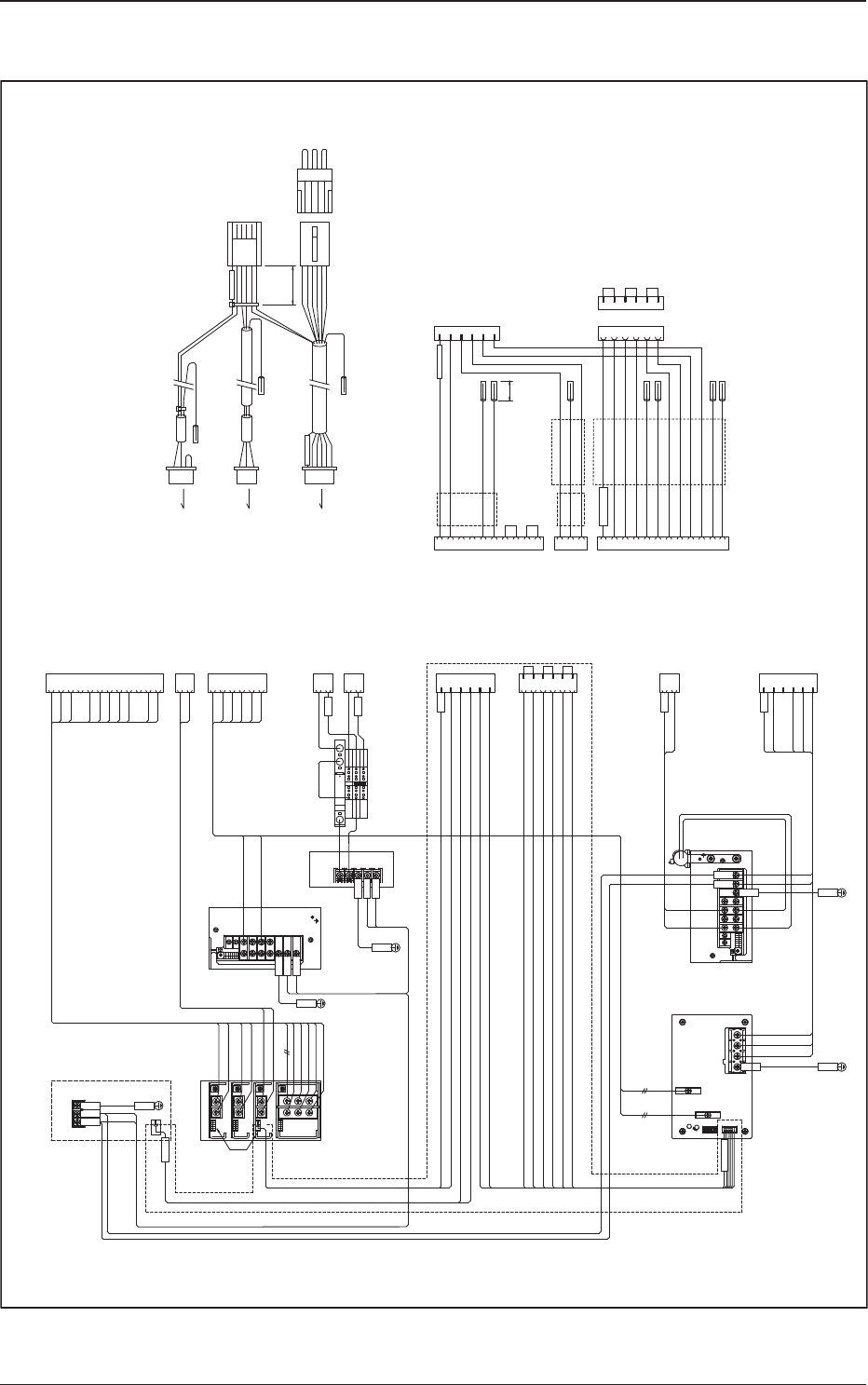
5OM-1603
5-171102-004J(01300-13)
SSCNET, SERIAL Cable Connection Diagram 2
X8201
X8202
<RobotCable>
X8203
To U05,K4
1CH
2CH
1CH
X8204
To U05
<RobotCable>
-X1311B
U81
X8102
X8104
X8109
-X1300F2
-X1300F2
-X1311A
-X1311B
-X1311A
XG221
G22
+5V
SERIAL
COM1
COM2
+5V
D81 DOM
CPU2
BASE-T
10/100
SSC
NET3
2CH
I/O(DI)
U82
-X311A
-X311B
-A31(1)
DD
[3]
[4]
[2]
[1]
NS HL NL
CN1B
CN1A
-X311A
-X311B
-A31(2)
DD
[4]
[2]
[1]
NS NL
CN1B
CN1A
Beam X
A21F
[3]
CN1A
CN1B
-X221A
-X211B-X211A
[4]
Beam Y1
A22F
CN1A
CN1B
CN1A
CN1B
[5]
Beam Y2
A23F
[0]
Beam X
A21R
CN1A
CN1B
[1]
Beam Y1
A22R
CN1A
CN1B
CN1A CN1B
[2]
Beam Y2
A23R
-X231B
-X221B
-X231A
-X231B
-X211A
-X211B
-X221A
-X221B
-X231A
[3]
HL
HH-SRS(2)
HH-SRS(1)
t20;CPCI BUS
To External Unit Connecting Bundled Connector (2)
To External Unit Connecting Bundled Connector (1)
To U91:CPU1(LAN2)
MR-MC121-S12
(U82 16 Axis X2ch)
Nozzle
Selection
Head U/D
Nozzle U/D
Head
Rotation
Nozzle
Selection
Head U/D
Nozzle U/D
Head
Rotation

5OM-1603
5-18
Power Cable Wiring Diagram
1102-004D(01700-3)
5J
10J
5J1
10J
10J
10J
10J
5J1
5VOP1
5J1
10J
5J1
5J1
10J
5J1
5VOP1
L120
L220
FG
N
L
-V
+V
(5V)
G8
F61
3.15A
2
1
2
1
FGNL
-V
+V
-V
+V
-V
+V
-V
+V
(24V)
CN2
CN1
24F
10F
24C
10C
24B
10B
24A
10A
24A
10A
24A
10A
G01A
G01B
(24V)
L
N
FG
-V
+V
-V
+V
CB
VB
24G
10G
L220
L120
L120
L120
FG L3 L2 L1
CN01
CN02
+
-
48D
10D
(48V)
L
N
FG
-V
+V
-V
+V
CB
VB
(48V)
L220
L120
L220
L120
XG01
G07
X12702
1
2
3
4
5
6
X12702
G02,04
48H
10H
L140
L240
L340
G2
G7
G1
G4
H-SN-14
HWS-HA-02
A1
A2
A3
B1
B2
B3
1
2
A1
A2
A3
B1
B2
B3
A4
A5
A6
B4
B5
B6
10A
10A
10A
10C
10F
24A
24A
24A
24C
24F
10B
24B
1
2
A1
A2
A3
B1
B2
B3
10D
10D
10G
48D
48D
24G
10H
48H
L120
L220
L140
L240
L340
1
2
3
4
5
6
H-SN-17
H-SN-14
HWS-HA-02
X12702
1
2
3
4
5
6
7
8
9
赤
黒
10
1
2
3
1
2
3
4
5
6
7
8
9
10
11
12
HWS-HA-02
1
2
3
4
5
6
1
2
3
4
5
6
1
2
3
4
5
6
X12702
1
6
1
6
To G1:CN2
To G1:CN1
To G2:CN02
A
B
C
D
E
A
B
C
D
E
CN2
〈Connection Diagram〉
40
10H
48H
20.0
G07
XG01