5OM-1625-003_w.pdf - 第87页

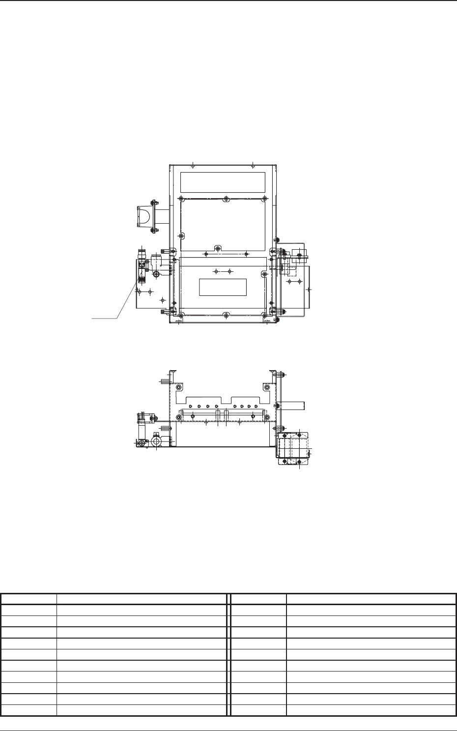
5OM-1603 2-8 Sensor and Load Layout 1 102-003 Head Section Layout (Electric Box Section) Y0902 Symbol Name Symbol Name Y0902 Air Blow

100%1 / 207
5OM-1603
2-7
Sensor and Load Layout
1102-004
Head Section Layout (General View)
Symbol Name Symbol Name
Electric Box Inside
Head Rotation Section
Head U/D Section
Nozzle U/D Section
Nozzle Selection Section
5OM-1603
2-8
Sensor and Load Layout
1102-003
Head Section Layout (Electric Box Section)
Y0902
Symbol Name Symbol Name
Y0902 Air Blow
5OM-1603
2-9
Sensor and Load Layout
1102-003
Head Section Layout (Head Rotation Section)
U37
Y0401-Y0415
B0413R
M31
B0413T
Symbol Name Symbol Name
U37 Slip Ring
M31 Head Rotation (DD) Motor
B0413T Linear Measure Sensor (Light Emission)
B0413R Linear Measure Sensor (Light Reception)
Y0401-Y0415 Vacuum Changeover Valve 1 to 15