NPM-GH_z_中文规格书 - 第107页
NPM- GH 20 23 .0 710 - 101 - 7. 印刷基板设计基准 7.1 印刷基 板 规 格 概 要 ( ) 内的数值 : 单轨模式时 项 目 规 格 基板尺寸 双轨模式 : 50 × 50 mm ~ 51 0 × 300 mm 单轨模式 : 50 × 50 mm ~ 510 × 590 mm 贴装 / 检查可能范围 双轨模式 : 50 × 44 mm ~ 51 0 × 294 mm 单轨模式 : 50 × 44 mm …

NPM-GH 2023.0710
- 100 -
6.
其他标准规格
6.1
程序功能
数据编制都是在数据编制系统 NPM-DGS 进行。在 NPM-DGS 作成的生产数据,通过 LNB (FA 电脑)下载于设备。
但是,部分数据修正也可在机器主体上进行。
在设备主体修正的数据以及校正内容被保存,可以再利用。
※ NPM-DGS 用的硬件,请客户准备。(NPM-DGS 是其他产品。)
NPM-DGS 和 NPM-DGS 标配选项的牌照是设定为 1 台设备 1 张牌照。因此复数台机器需要购买同样数量的牌照。
有关 NPM-DGS 的详细情况,请参照别册的「NPM-DGS 规格说明书」。
6.2
信号塔
信号灯的颜色和亮灯标准
信号灯
颜色
分 类
亮灯标准
红色
紧急停止错误
・ 马达等的轴异常
・ 空气压力下降
・ 基板支撑部异常
・ 贴装头故障
・ 编带故障 等
黄色
中途停止错误
・ 吸附错误
・ 贴装错误
・ 基板传送错误
・ 元件用完
・ 吸嘴更换错误 等
绿色
运转中
自动运转等动力为 ON 时
(但是,红色和黄色闪烁时熄灯)
蓝色或者
红色
连接的设备中,成为瓶颈的设备(循环时间最长的设备)蓝色灯亮。
另外,按紧急停止开关,红色灯亮。
※ 亮灯规格,可以变更设定。
设备设定
PCB 数据
元件数据
最佳化
生产数据
标准
:
横置
距离地面
1 514 mm
红
黄
绿
(
蓝色或者红色
)
红
黄
绿
距离地面
1 629 mm
也可以纵置。
高度从地面起是
1 629 mm
。
(
蓝色或者红色
)
数据编制系统 NPM-DGS
网板 Gerber 数据
(锡膏检查时)

NPM-GH 2023.0710
- 101 -
7.
印刷基板设计基准
7.1
印刷基板规格概要
( ) 内的数值
: 单轨模式时
项
目
规
格
基板尺寸
双轨模式
: 50 × 50 mm ~ 510 × 300 mm
单轨模式
: 50 × 50 mm ~ 510 × 590 mm
贴装
/
检查可能范围
双轨模式
: 50 × 44 mm ~ 510 × 294 mm
单轨模式
: 50 × 44 mm ~ 510 × 584 mm
※
L 350 mm
以上时,需要滑动传送标配选项。
基板厚度
0.3 mm ~ 8.0 mm
基板重量
3.0 kg
以下
(
含载体贴装后的重量
)
※
1
基板弯曲容许
基板断面
贴装前基板状态
※1 基板重量(包括载体重量)超过 3.0 kg 的情况时,请另行联络。
※2 使用「支撑销自动更换」功能的情况时,支撑销形状、销的配置条件等有异。
详细请参阅「9. 标配选项: 支撑销的自动更换」。
※ 有关陶瓷基板的对应请另行联络。
50 mm ~ 300 mm
(50 mm ~ 590 mm)
44 mm ~ 294 mm
(44 mm ~ 584 mm)
Y
X
固定侧
3 mm
50 mm ~ 510 mm
3 mm
流向
禁止有元件・锡膏等的范围
禁止有元件的范围
支撑销
※
2
(
请设置与背面元件的距离在
2 mm
以上。
)
28 mm
3 mm
3 mm
3 mm
φ
3
FC16
贴装头
: 3 mm
FC08
贴装头
: 12 mm
FC03
贴装头
: 30 mm
3 mm
Max. 0.5 mm
Max. 0.5 mm

NPM-GH 2023.0710
- 102 -
项 目
规 格
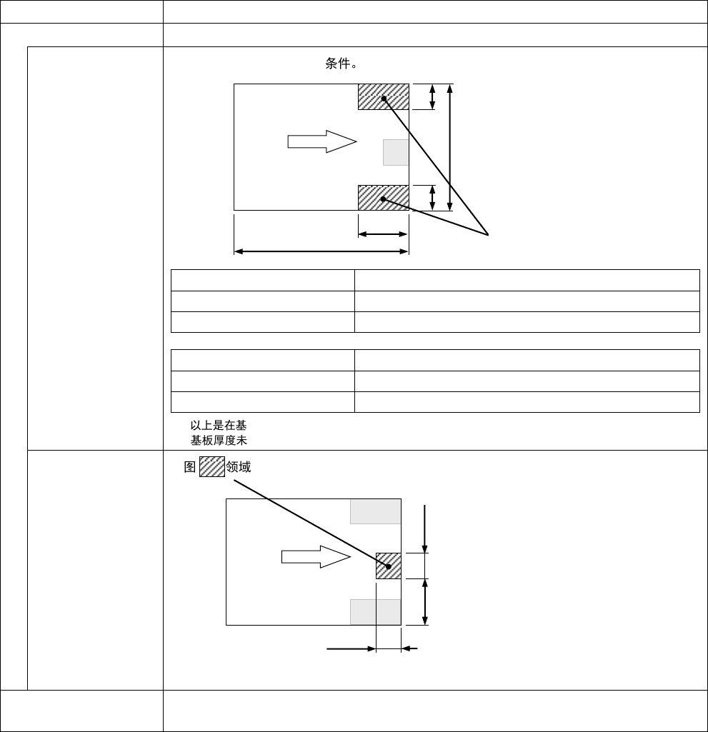
基板缺口条件
基板缺口尺寸必需满足以下 2 个条件。
条件 A
基板缺口尺寸必需满足以下条件。
L
L1
50 mm ≦ L ≦ 350 mm
不超过 L/4
350 mm < L ≦ 510 mm
L/4 或者 100 mm 的较小的一个
W
W1
50 mm ≦ W ≦ 300 mm
W/3 或者 30 mm 的较小的一个
300 mm < W ≦590 mm
请另行商洽。
※ 以上是在基板厚度为 1.6 mm 以上时的情况。
基板厚度未满 1.6 mm 时,请另行商洽。
条件 B
下图 领域内必须保证没有缺口(包括缝隙)。
※ 以上是前基准时的情况。后基准时,基准轨道在后侧。
基板端面的元件伸出条
件
请另行商洽。
L1
L
W1
W1
W
只限任意一处
流向
A
A
10 mm
30 mm
10 mm
基准轨道侧
流向
B