SJSE717600-00_M10_v1000.pdf - 第17页
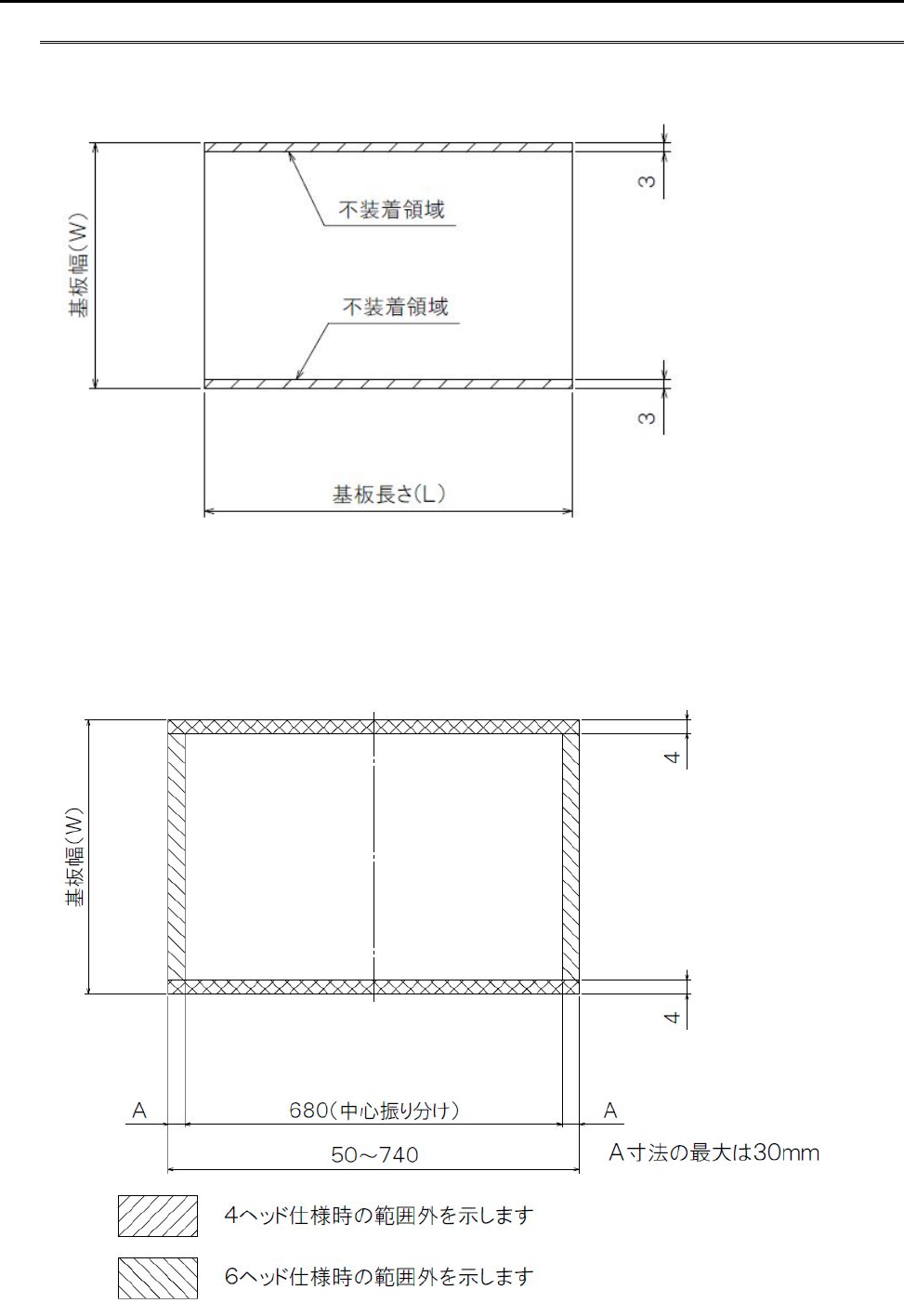
950241.R17 17 7.6 対象基板 1) 部品装着不可エリア(㎜) 2) フィデューシャルマーク認識可能範囲(㎜) ○1⼯程実装の場合

950241.R17
16
基板⻑さ仕様(L ⼨法)
種別
1⼯程実装(基板停⽌ 1 回)
バッファ
機能なし
⼊⼝バッファ
機能
出⼝バッファ
機能
出⼊⼝バッファ
機能
対応基板⻑さ
420<L≦ 740mm
※1
330<L≦ 420mm
(⼊⼝、出⼝バッファの選択は
お客様にて可能)※2
50≦ L≦ 330mm
基板データに⼊⼒された基板⻑さによって、⾃動的に切り分けられます
※1 基板⻑さによってヘッドに制約条件があります。詳細は付属書 1 をご確認ください
※2 プログラム毎には変更出来ません
※3 コンベア延⻑の有無に関係なく、上表が適⽤されます
2) <標準>⻑尺基板対応基板⻑さ(L ⼨法)
2⼯程実装(基板停⽌ 2 回)
ヘッド仕様 バッファ機能なし
4x1 ヘッド
4x4 ヘッド
740<L≦ 980mm
6x2 ヘッド 740<L≦ 950mm
3) <オプション>⻑尺基板対応基板⻑さ(L ⼨法)
2⼯程実装(基板停⽌ 2 回)
ヘッド仕様
コンベア仕様
両側 250mm 延⻑ 両側 375mm 延⻑
4x1 ヘッド
4x4 ヘッド
740<L≦ 1230mm 740<L≦ 1355mm
6x2 ヘッド 740<L≦ 1200mm 740<L≦ 1325mm
※ ⽚側延⻑では上表対応になりませんので、ご注意ください
L L L

950241.R17
17
7.6 対象基板
1) 部品装着不可エリア(㎜)
2) フィデューシャルマーク認識可能範囲(㎜)
○1⼯程実装の場合

950241.R17
18
○2⼯程実装の場合
コンベア仕様
ヘッド仕様 箇所 コンベア延⻑なし 両側 250mm 延⻑ 両側 375mm 延⻑
4x1 ヘッド
4x4 ヘッド
B 740mm
C 740<C≦ 980mm 740<C≦ 1230mm 740<C≦ 1355mm
6x2 ヘッド
B 680mm
C 740<C≦ 950mm 740<C≦ 1200mm 740<C≦ 1325mm
標準 オプション