D_YTF_KJN_e.pdf - 第16页
Wiring par ts list KJN1001 PA G E 14 Con fi dential & Proprietary No P ar t No . Part Name Q'ty Remar ks No P ar t No. P ar t Name Q'ty Remarks 77 KJN-M666J-000 HNS,L WM 1 J0707 115 78 KGW -M66M1-001 HNS,PL …

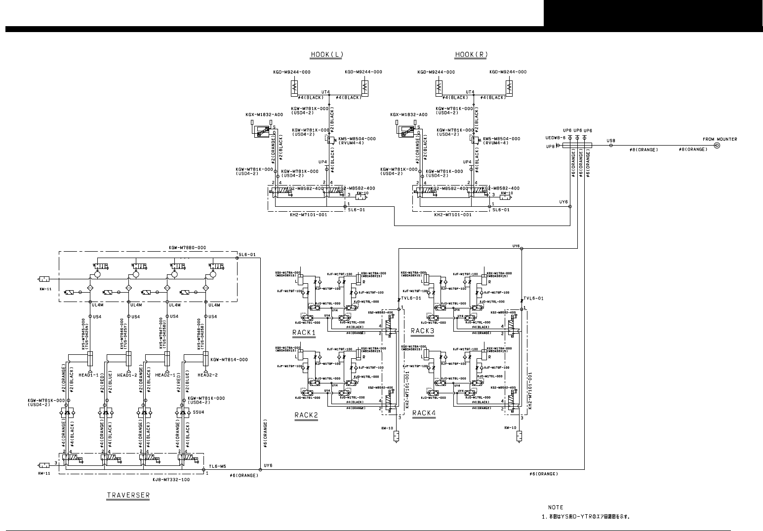
PAG E
12
Confi dential & Proprietary
d-YTF(YS)
d-YTF(YS)
Air circuit
H013063

Wiring parts list
KJN1001
PAG E
13
Confi dential & Proprietary
No Part No. Part Name Q'ty Remarks No Part No. Part Name Q'ty Remarks
1 KJF-M663J-000 HNS,CONV.MOTOR 1 J0601 39 KGA-M667J-002 HNS,EMG SW 1 J0648
2 KJN-M662A-000 HNS,TF-PW DZ-BK 1 J0602 40 KGA-M667A-011 HNS,COVER LIMIT 1 J0649
3 KGW-M664A-010 HNS,TF I/O CMN 1 J0603 41 90K30-444025 HNS,EARTH 2 J0650,J0651
4 KGW-M662E-001 HNS,YTF EMG1 1 J0604 42 KJM-M66F4-000 HNS,COVER SW 4 J0652-J0655
5 KJN-M666A-000 HNS,MO3 1 J0605 43 KJM-M66E4-010 HNS,DB 2 J0656,J0657
6 KJN-M666G-000 HNS,MO4 1 J0606 44 90K30-544130 HNS,PE 1300 2 J0662,J0663
7 KGW-M665A-010 HNS,YTF PI2.3 1 J0607 45 90K30-544070 HNS,PE 700 2 J0664,J0665
8 KGW-M665E-010 HNS,YTF PI4 1 J0608 46 90K30-544080 HNS,EARTH 2 J0666,J0667
9 KJF-M668M-000 HNS,HEAD VAC 1 J0609 47 90K30-444008 HNS,EARTH 4 J0668-J0671
10 KJN-M666H-000 HNS,KM11-DZ1M 1 J0610 48 90K30-444050 HNS,EARTH 1 J0672
11 KJN-M666H-100 HNS,KM11-DZ2M 1 J0611 49 KGW-M66N1-010 HNS,TEACH_1 1 J0673
12 KJN-M666E-000 HNS,DZ-FLEX DY-MO 2 J0612,J0613 50 KJF-M66N2-000 HNS,TEACH DI 1 J0674
13 KJF-M665G-000 HNS,PI-LW1 1 J0614 51 KGW-M66L1-010 HNS,PI3 1 J0675
14 KGW-M665H-010 HNS,PI-DX 1 J0615 52 KJN-M66L2-000 HNS,PI4 1 J0676
15 KGW-M665K-010 HNS,PI-DY 2 J0616,J0617 53 KGW-M66L3-010 HNS,BASE PI3 1 J0677
16 KJN-M668J-000 HNS,DX-FLEX HEAD DI 4 J0618,J0619,J0658,J0659 54 KGW-M66L4-010 HNS,BASE PI4 1 J0678
17 KJF-M668K-000 HNS,DO DZ-FLEX 2 J0620,J0621 55 KGW-M66L6-010 HNS,BASE DSP 1 J0679
18 KJM-M66GJ-000 HNS,AH-FLEX HOOK CHK 2 J0622,J0623 56 KJN-M66L8-000 HNS,MO3 1 J0680
19 KGW-M669H-002 HNS,LED MARKER 1 J0624 57 KJJ-M665F-000 HNS,CONV.DRIVER 1 J0681
20 KJN-M667E-000 HNS,CN12A DI 1 J0625 58 KJN-M66L9-000 HNS,MO4 1 J0682
21 KJN-M668F-000 HNS,I/O TF CN7A 1 J0626 59 KGW-M66LA-100 HNS,CONV.MOTOR 1 J0683
22 KGW-M669F-000 HNS,DO HEAD 1 J0627
60 KJN-M66LE-000 HNS,I/O CMN 1 J0684
23 KJN-M669K-010 HNS,DZ-FLEX DI1 1 J0628 61 KJN-M66LF-010 HNS,TF +24V 1 J0685
24 KJN-M669K-110 HNS,DZ-FLEX DI2 1 J0629 62 90K30-244130 HNS,PE 1300 1 J0686
25 KJN-M668E-010 HNS,TF I/O3 1 J0630 63 KGW-M66LH-100 HNS,TF EMG 1 J0687
26 KJN-M668A-000 HNS,COVER SW 1 J0631 64 KJN-M668N-000 HNS,STATION SEN. 1 J0688
27 KJN-M668L-010 HNS,I/O TF CN14A 1 J0632 65 KJN-M66T3-000 HNS,SENSOR LOWER 1 J0689
28 KJN-M668L-110 HNS,I/O TF CN15A 1 J0633 66 KJM-M66GK-010 HNS,AH-FLEX HOOK DI 2 J0690,J0691
29 KJF-M667F-000 HNS,TF DO1 1 J0634 67 KJN-M668U-010 HNS,I/O TF CN22A 1 J0692
30 KJN-M662F-001 HNS,TF POWER 1 J0635 68 KJF-M66AL-000 HNS,PI-DZ 2 J0693,J0694
31 KGW-M664E-010 HNS,TF-TF CMN 1 J0636 69 KHN-M66A2-000 HNS,SRV 2 J0696/J0697
32 KJN-M668G-020 HNS,TF I/O2 1 J0637 70 KJN-M66G5-000 HNS,CONTACTOR 1 2 J0698,J0699
33 KJF-M669J-000 HNS,I/O TF CN21A 1 J0638 71 KJN-M66G7-000 HNS,COVER EMG 1 J0700
34 KGW-M669A-021 HNS,DZ BRK-2 2 J0640,J0641 72 KJN-M66G7-100 HNS,COVER EMG 1 J0701
35 KGP-M66U9-011 HNS,SW BRAKE OFF 2 J0642,J0643 73 KJN-M668T-010 HNS,I/O TF CN22B 1 J0702
36 KGW-M6558-000 SWITCH,PUSH BUTTON 1 J0644 74 KJN-M66E5-000 HNS,KM11 LOOP 2 J0703,J0704
37 KGW-M3992-100 SWITCH,SELECT 1B 1 J0645 75 KJN-M66F4-001 HNS,COVER SW 1 J0705
38 KGB-M3992-003 SWITCH,SELECT 2 J0646,J0647 76 KJN-M667A-000 HNS,COVER LOCK 1 J0706

Wiring parts list
KJN1001
PAG E
14
Confi dential & Proprietary
No Part No. Part Name Q'ty Remarks No Part No. Part Name Q'ty Remarks
77 KJN-M666J-000 HNS,LWM 1 J0707 115
78 KGW-M66M1-001 HNS,PLT,RESET_1 1 J0941 116
79 KGW-M66M2-001 HNS,PLT.RESET_2 1 J0942 117
80 KGW-M66M3-001 HNS,PLT.RESET_3 1 J0943 118
81 KGW-M66M4-001 HNS,PLT.RESET_4 1 J0944 119
82 KGW-M66M5-002 HNS,PLT.EMPTY_1 1 J0945 120
83 KGW-M66M6-002 HNS,PLT.EMPTY_2 1 J0946 121
84 KGW-M66M7-001 HNS,PLT.EMPTY_3 1 J0947 122
85 KGW-M66M8-002 HNS,PLT.EMPTY_4 1 J0948 123
86 KGW-M66MA-002 HNS,PLT.EMPTY_1 1 J0949 124
87 KGW-M66MB-002 HNS,PLT.EMPTY_2 1 J0950 125
88 KGW-M66MP-000 HNS,INDI.PWR 1 J0951 126
89 KJM-M66MM-001 HNS,INDI.I/O 1 J0952 127
90 128
91 129
92 130
93 131
94 132
95 133
96 134
97 135
98
136
99 137
100 138
101 139
102 140
103 141
104 142
105 143
106 144
107 145
108 146
109 147
110 148
111 149
112 150
113 151
114 152