Q170226E01 中文版 - 第47页
rh5 伺服手册 2.3 传 感 器 布 局 -b 2 个 去 i 5 d 纟 是 啊 00 2 o 料 i

rh5
伺服手册
m
o
00
2
2.3Se
nsor
Layou
i
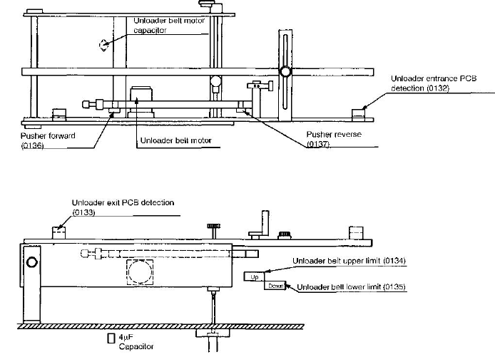
装载机退出 PCB 检测
装载机入口 PCB
2
个
去
i
4

rh5
伺服手册
2.3 传
感 器
布 局
-b
2
个
去
i
5
d
纟
是
啊
00
2
o
料
i

rh5
服务手册
da3sec-070-b082 2.3-6
=备忘录=
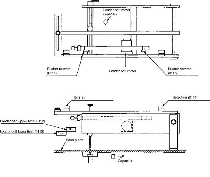
2.3 传感器布局
rh5 伺服手册 2.3 传 感 器 布 局 -b 2 个 去 i 5 d 纟 是 啊 00 2 o 料 i


