DECAN_F2_TRM(Ver6.5_CS18.02) - 第191页
Page +$1:+$ 187 DECAN F2 Electric Power (4/9) NO. P ART NO. P ART NAME Q'TY Old No. Supply Supply L T Reference 1 AM03-01 1275A CABL E ASSY -RY_BRK_22 0V_24V_PC_P WR 3 2 AM03-01 1274 A CABLE ASSY -RELA Y _BRK_MODULE…

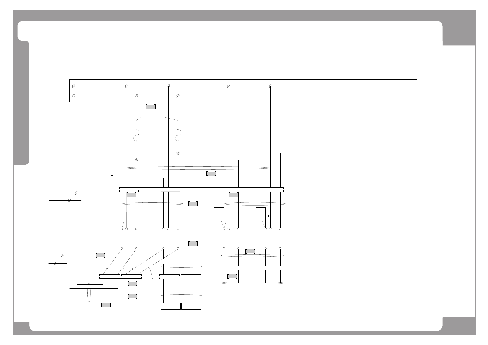
Page
+$1:+$
186
DECAN
F2
Electric Power (4/9)
1
2
2
1
2
1
3 4 5
6
7
8
CONTROL BOX
1L1 1L2
FROM CP1
0.75mm
1L2
1L1
0.75mm
-FAN6
(RIGHT SIDE)
-FAN1
-FUSE5 (AC250V,5A)
-FAN2
0.75mm
1L1 1L2(F3) 1L1
0.75mm
1L1 1L2
1L1 1L2 1L1 1L2
0.75mm
-FUSE3 (AC250V,5A)
-FAN3
(FRONT)
-FAN4
1L1
1L1
1L2(F4)
-FUSE4 (AC250V,5A)
1L2
(SERVO DRIVER RACK)
-FAN5
1L2(F5)
1L21L1
AC220V
0.75mm
SM-FAN00
J90831088B
912
58
RY 11
SC
+24V
24G
AM03-011247A
AM03-011278A
13
14
SM511_PW149-1
(PC RACK)
FRONT MONITOR REAR MONITOR
SM511_PW025
SM511_PW026
J90833316A
(중판)
-FAN8
(REAR)
-FAN7
AM03-011274A
RELAY-BK2
RELAY-BK2
SM511_PW149
SM511_PW149-1
SM511_PW149
-CN24
AM03-011275A
AM03-011274A
AM03-011275A
AM03-011274A
SM511_PW149
AM03-011275A
SM511_PW149-1
AM03-010921A
AM03-010922A
SM511_PW112
SM511_PW113
SM33_PW026
PUMP_FAN
B
6A
6C
1A 1C
7A
2A 3A
AA
B
8A 6D
6A
A
2B
7D
B
8D
3B
12 12 12 12 12 121212
78
78
56
56
9
10
11
12
9
10
11
12
1
2
3
4
12
2
PE03
2
2 2
2
FG
2
YLP-16V
YLR-16V
YLP-16V
YLR-16V

Page
+$1:+$
187
DECAN
F2
Electric Power (4/9)
NO. PART NO. PART NAME Q'TY Old No. Supply Supply LT Reference
1 AM03-011275A CABLE ASSY-RY_BRK_220V_24V_PC_PWR 3
2 AM03-011274A CABLE ASSY-RELAY_BRK_MODULE_AC_DC 3
3 AM03-010921A CABLE ASSY-FRONT_MONITOR_PW 1
4 AM03-010922A CABLE ASSY-REAR_MONITOR_PW 1
5 AM03-011247A CABLE ASSY-FAN_POWER 1
6 J90833316A FAN_CABLE_ASSY SM-FAN00 1
7 J90831088B SERVO_FAN_FG_CABLE_ASSY 1
8 AM03-011278A CABLE ASSY-SERVO_REAR_FAN_POWER 1

Page
+$1:+$
188
DECAN
F2
Electric Power (5/9)
1
2
4
8
9
10
11
7
5 3
6
7
FROM CP1
1L2
1L1
1L21L1
-FUSE1 (AC250V,10A)
SC-CN1
+24V 24G +24V 24G
-FUSE2 (AC250V,10A)
1L1 1L2
-PS2
AC220V
24G
-PS5
+24V 24G
-PS6-PS1
SM511_PW101
78 910
SM511_PW111
T5L
12
(CONN)
4536
AM03-010944A
T7L
9
T7L
10
T7L
2
(CONN)
1
AM03-010946A
AM03-010933A
+24V
24G
T7L
5
(CONN)
6
SM511-_PW103
+24V
78
AM03-010946A
SM471_PW111-2
87109
T6L
(CONN)
SC-CN2
AM03-010945A
AM03-010938A
24G-EXT1
24G-EXT2
RY3-3 24G-EXT3
24G-EXT4
RY5-3
SM511_PW101-1
AM03-005487A
43
AM03-010934A
SM511_PW201
AM03-010928AAM03-010932A
AM03-010929A
SM511-_PW207
SM511-_PW120
SM511-_PW202
SM511-_PW127
SM511-_PW121
SM511-_PW207
AM03-010930A
6A
1A 4A
A
B
9C
A
B
10C
5A 5B4B
11A
12A
11C
12C
24V(400W)
(+)
PE06
(-)
AC IN
(-)
24V(400W)
(+)
AC IN
PE07
(-)
24V(400W)
(+)
AC IN
PE06-1
(-)
24V(400W)
(+)
AC IN
PE07-1