DECAN_F2_TRM(Ver6.5_CS18.02) - 第341页
Page +$1:+$ 337 DECAN F2 Motor IF Board (3/18) NO. P ART NO. P ART NAME Q'TY Old No. Supply Supply L T Reference 1 AM03-01 1248A CAB LE ASSY -Z56_D RV_COMMAND 1 2 AM03-013438 A CABLE ASSY -SM51 1 FLA T 1 1 AM03-0105…

Page
+$1:+$
336
DECAN
F2
Motor IF Board (3/18)
5
1
2
1
2
1
2
SM511_PW031
AM03-010924A
+24V
24G
Z34 DRVIER
1 2
3
4
CN13
Front Z56
CN10
SM471_VM009-3
DRIVER
27
17
1
3
+COM
/SON
CW
/CW
AM03-011248A
AXIO-CN15 Z56-CN10
7
9
19
21
CCW
/CCW
CLR
GAIN
23
22
24
29
/ALMRST
/ALM
INP
-COM
6
2
4
8
GND
EA
/EA
EB
10
14
16
/EB
EZ
/EZ
27
17
1
3
7
9
19
21
23
22
24
29
6
2
4
8
10
14
16
CN14
27
17
1
3
+COM
/SON
CW
/CW
AXIO-CN16
7
9
19
21
CCW
/CCW
CLR
GAIN
23
22
24
29
/ALMRST
/ALM
INP
-COM
6
2
4
8
GND
EA
/EA
EB
10
14
16
/EB
EZ
/EZ
27
17
1
3
7
9
19
21
23
22
24
29
6
2
4
8
10
14
16
501189-3010
501189-3010
1
13
3
4
5
6
14
15
16
17
18
20
2
7
8
9
10
11
12
21
33
23
24
25
26
34
35
36
37
38
40
22
27
28
29
30
31
32
UL20276 10P*28AWG
1
13
3
4
5
6
14
15
16
17
18
20
2
7
8
9
10
11
12
21
33
23
24
25
26
34
35
36
37
38
40
22
27
28
29
30
31
32
501189-4010
+24V
SON5-C#
POUT5+
POOUT-
PDIR5+
PDIR5-
CLR5-C#
GAIN5-C#
ALM_RS5-C#
ALM5-C#
INP5-C#
24GND
GND
EA5+
EA5-
EB5+
EB5-
EZ5+
EZ5-
+24V
SON6-C#
POUT6+
POOUT-
PDIR6+
PDIR6-
CLR6-C#
GAIN6-C#
ALM_RS6-C#
ALM6-C#
INP6-C#
24GND
GND
EA6+
EA6-
EB6+
EB6-
EZ6+
EZ6-
AXIO BD #2
BOARD
A1
A2
A4
A5
MOT-CN13
CN13
MOTOR I/F BD #1
U(Z1)
V(Z1)
W(Z1)
E(Z1)
1
2
3
4
6
2
3
4
5
1
6
2
3
4
5
1
FG
SD
/SD
+5V
GND
1
2
3
4
Z5-PW
Z5-EN
43645-0400
43025-0600
A9
A10
A7
A8
B1
B2
B4
B5
1
2
3
4
6
2
3
4
5
1
6
2
3
4
5
1
FG
SD
/SD
+5V
GND
1
2
3
4
Z6-PW
Z6-EN
43645-0400
43025-0600
B6
B9
B10
B7
B8
A1
A2
A4
A5
A9
A10
A7
A8
B1
B2
B4
B5
B6
B9
B10
B7
B8
SD(Z1)
/SD(Z1)
+5V(Z1)
5G(Z1)
1-1827864-0 (X)
A6 FGA6
U(Z2)
V(Z2)
W(Z2)
E(Z2)
SD(Z2)
/SD(Z2)
+5V(Z2)
5G(Z2)
FG
SM511_FL001(10.11)
AM03-010515A
EN
PW
EN
PW
U
V
W
E
U
V
W
E
A1
A2
B1
B2
MOT-CN3
SM511_MD023
AM03-010896A
CN3
U
V
W
PE
B3
A3
A4
B4
A5
B5
FG
5V
GND
SD
SD#
A1
A2
B1
B2
B3
A3
A4
B4
A5
B5
HEAD #1
Z5
MOTOR
RED
WHITE
BLACK
BLACK
SHIELD
WHITE
BLACK
SKY BLUE
VIOLET
Z5
1-1827864-5 (X) MNMA2ACB2A
A1
A2
B1
B2
MOT-CN8
SM511_MD024
AM03-010897A
CN8
U
V
W
PE
B3
A3
A4
B4
A5
B5
FG
5V
GND
SD
SD#
A1
A2
B1
B2
B3
A3
A4
B4
A5
B5
HEAD #1
Z6
MOTOR
RED
WHITE
BLACK
BLACK
SHIELD
WHITE
BLACK
SKY BLUE
VIOLET
Z6
1-1827864-5 (X) MNMA2ACB2A

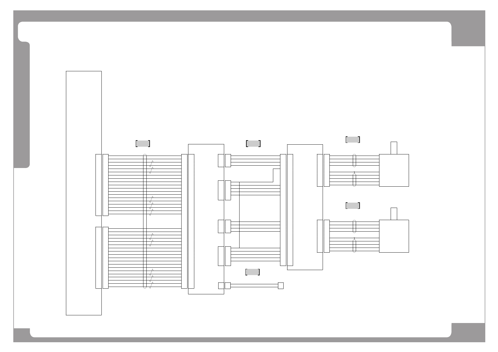
Page
+$1:+$
337
DECAN
F2
Motor IF Board (3/18)
NO. PART NO. PART NAME Q'TY Old No. Supply Supply LT Reference
1 AM03-011248A CABLE ASSY-Z56_DRV_COMMAND 1
2 AM03-013438A CABLE ASSY-SM511 FLAT 1 1 AM03-010515C/ AM03-010515D
3 AM03-010896A CABLE ASSY-Z5_MOTOR 1
4 AM03-010897A CABLE ASSY-Z6_MOTOR 1
5 AM03-010924A CABLE ASSY-Z_DRIVER_PW_JUMPER 1

Page
+$1:+$
338
DECAN
F2
Motor IF Board (4/18)
5
1
2
1
2
1
2
SM511_PW031
AM03-010924A
+24V
24G
Z34 DRVIER
1 2
3
4
CN17
Front Z78
CN10
SM471_VM009-4
DRIVER
27
17
1
3
+COM
/SON
CW
/CW
AM03-011249A
AXIO-CN17 Z78-CN10
7
9
19
21
CCW
/CCW
CLR
GAIN
23
22
24
29
/ALMRST
/ALM
INP
-COM
6
2
4
8
GND
EA
/EA
EB
10
14
16
/EB
EZ
/EZ
27
17
1
3
7
9
19
21
23
22
24
29
6
2
4
8
10
14
16
CN18
27
17
1
3
+COM
/SON
CW
/CW
AXIO-CN18
7
9
19
21
CCW
/CCW
CLR
GAIN
23
22
24
29
/ALMRST
/ALM
INP
-COM
6
2
4
8
GND
EA
/EA
EB
10
14
16
/EB
EZ
/EZ
27
17
1
3
7
9
19
21
23
22
24
29
6
2
4
8
10
14
16
501189-3010
501189-3010
1
13
3
4
5
6
14
15
16
17
18
20
2
7
8
9
10
11
12
21
33
23
24
25
26
34
35
36
37
38
40
22
27
28
29
30
31
32
UL20276 10P*28AWG
1
13
3
4
5
6
14
15
16
17
18
20
2
7
8
9
10
11
12
21
33
23
24
25
26
34
35
36
37
38
40
22
27
28
29
30
31
32
501189-4010
+24V
SON7-C#
POUT7+
POOUT-
PDIR7+
PDIR7-
CLR7-C#
GAIN7-C#
ALM_RS7-C#
ALM7-C#
INP7-C#
24GND
GND
EA7+
EA7-
EB7+
EB7-
EZ7+
EZ7-
+24V
SON8-C#
POUT8+
POOUT-
PDIR8+
PDIR8-
CLR8-C#
GAIN8-C#
ALM_RS8-C#
ALM8-C#
INP9-C#
24GND
GND
EA9+
EA9-
EB9+
EB9-
EZ9+
EZ9-
AXIO BD #2
BOARD
A1
A2
A4
A5
MOT-CN14
CN14
MOTOR I/F BD #1
U(Z1)
V(Z1)
W(Z1)
E(Z1)
1
2
3
4
6
2
3
4
5
1
6
2
3
4
5
1
FG
SD
/SD
+5V
GND
1
2
3
4
Z7-PW
Z7-EN
43645-0400
43025-0600
A9
A10
A7
A8
B1
B2
B4
B5
1
2
3
4
6
2
3
4
5
1
6
2
3
4
5
1
FG
SD
/SD
+5V
GND
1
2
3
4
Z7-PW
Z7-EN
43645-0400
43025-0600
B6
B9
B10
B7
B8
A1
A2
A4
A5
A9
A10
A7
A8
B1
B2
B4
B5
B6
B9
B10
B7
B8
SD(Z1)
/SD(Z1)
+5V(Z1)
5G(Z1)
1-1827864-0 (X)
A6 FGA6
U(Z2)
V(Z2)
W(Z2)
E(Z2)
SD(Z2)
/SD(Z2)
+5V(Z2)
5G(Z2)
FG
SM511_FL002(6.7)
AM03-010516A
EN
PW
EN
PW
U
V
W
E
U
V
W
E
A1
A2
B1
B2
MOT-CN4
SM511_MD024-1
AM03-010898A
CN4
U
V
W
PE
B3
A3
A4
B4
A5
B5
FG
5V
GND
SD
SD#
A1
A2
B1
B2
B3
A3
A4
B4
A5
B5
HEAD #1
Z7
MOTOR
RED
WHITE
BLACK
BLACK
SHIELD
WHITE
BLACK
SKY BLUE
VIOLET
Z7
1-1827864-5 (X) MNMA2ACB2A
A1
A2
B1
B2
MOT-CN9
SM511_MD024-2
AM03-010899A
CN9
U
V
W
PE
B3
A3
A4
B4
A5
B5
FG
5V
GND
SD
SD#
A1
A2
B1
B2
B3
A3
A4
B4
A5
B5
HEAD #1
Z8
MOTOR
RED
WHITE
BLACK
BLACK
SHIELD
WHITE
BLACK
SKY BLUE
VIOLET
Z8
1-1827864-5 (X) MNMA2ACB2A