DECAN_F2_TRM(Ver6.5_CS18.02) - 第370页
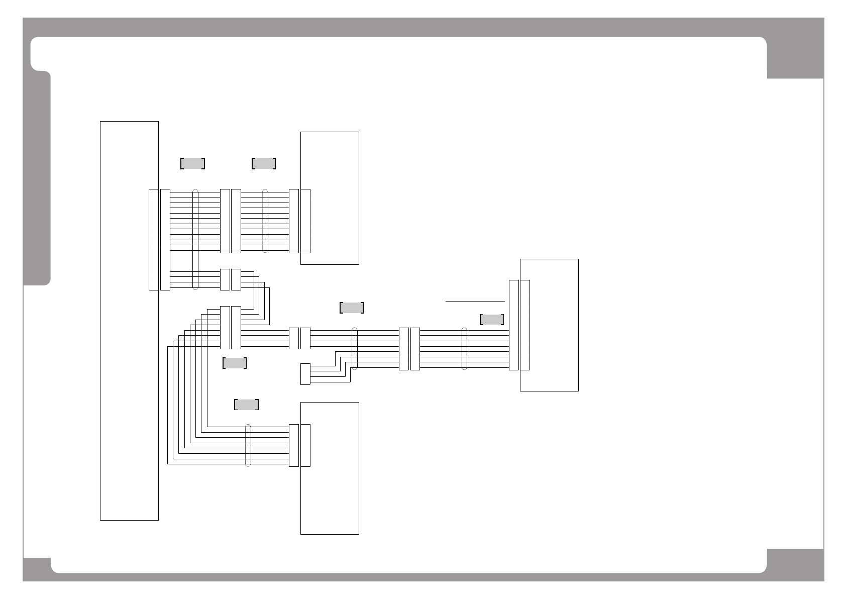
Page +$1:+$ 366 DECAN F2 Motor IF Board (18/18) 1 2 5 3 4 6 HEAD IF BOARD #2 AXIO BD #2 BOARD CN5 1 3 5 7 H1-V AC H2-V AC H3-V AC H4-V AC AXIO-CN5 H1H6-V AC 11 2 4 H5-V AC H6-V AC H1-BLOW H2-BLOW 6 H3-BLOW 9 SM471_VI006 …

Page
+$1:+$
365
DECAN
F2
Motor IF Board (17/18)
NO. PART NO. PART NAME Q'TY Old No. Supply Supply LT Reference
1 AM03-013438A CABLE ASSY-SM511 FLAT 1 1 AM03-010515C/ AM03-010515D
2 AM03-013439A CABLE ASSY-SM511 FLAT 2 1 AM03-010516C
3 AM03-010790C CABLE ASSY-AXIO_BD_3_RFD_CAN_J8L 1 AM03-010790B
4 AM03-010794A CABLE ASSY-AXIO_CAN_FDR_UL_J3R-J8L 1
5 AM03-010787B CABLE ASSY-AXIO_BD_3_RFD_CAN_J3R 1

Page
+$1:+$
366
DECAN
F2
Motor IF Board (18/18)
1 2
5
3
4
6
HEAD IF BOARD #2
AXIO BD #2
BOARD
CN5
1
3
5
7
H1-VAC
H2-VAC
H3-VAC
H4-VAC
AXIO-CN5 H1H6-VAC
11
2
4
H5-VAC
H6-VAC
H1-BLOW
H2-BLOW
6H3-BLOW
9
SM471_VI006
AM03-005703A
8
10
12
13
15
14
16
501189-2010
H4-BLOW
H5-BLOW
H6-BLOW
H7-VAC
H8-VAC
H7-BLOW
H8-BLOW
1
3
5
7
11
2
4
6
9
8
10
12
13
15
14
16
H7H10-VAC
1
2
3
4
43025-0400
43025-1200
1
3
5
7
11
2
4
6
9
8
10
12
1
2
3
4
1
3
5
7
11
2
4
6
9
8
10
12
A1
A2
A3
A4
A6
B1
B2
B3
A5
B4
B5
B6
A1
A2
A3
A4
A6
B1
B2
B3
A5
B4
B5
B6
1-1827864-6(X)
CN4
HD-CN4
SM511_FL001(14)
AM03-010515A
43020-1200
H1-VAC
H2-VAC
H3-VAC
H4-VAC
H5-VAC
H6-VAC
H1-BLOW
H2-BLOW
H3-BLOW
H4-BLOW
H5-BLOW
H6-BLOW
43020-0400
1
2
5
6
3
4
7
8
43025-0800
R-HD-SOL
1
2
3
4
R-HD-SOL
1
2
5
6
3
4
7
8
1
2
3
4
SMR-04V-N
SM511_VI104-2
AM03-010964B
1
2
3
4
5
6
7
8
43020-0800
HD-SOL-EXT
SMP-04V-NC
1
2
3
4
5
6
7
8
1
2
3
4
SMP-04V-NC
R-HD-SOL
SM511_VI104
AM03-010962B
A1
A2
A3
A4
B1
B2
B3
B4
1-1827864-4 (X)
CN5
HD-CN5
SM511_FL002(14)
AM03-010516A
43020-0800
HEAD IF BOARD #2
A1
A2
A3
A4
B1
B2
B3
B4
9
10
11
12
13
14
15
16
501189-2010
AXIO BOARD #1
43025-0800
SM511_CS035
AM03-010798A
2
3
4
5
6
7
8
20
1
CN5
AXIO#1-CN5
9
10
11
12
13
14
15
16
2
3
4
5
6
7
8
20
1
1R_STP
1R_EDGE
XF_STP
GND
F-H9-VAC
F-H10-VAC
1F_BUT
1F_STP
1F_EDGE
EF_STP
1R_BUT
R-H10-BLOW
F-H9-BLOW
F-H10-BLOW
R-H9-VAC
R-H10-VAC
R-H9-BLOW
AXIS SENSOR B/D CN8
AX-CN8

Page
+$1:+$
367
DECAN
F2
Motor IF Board (18/18)
NO. PART NO. PART NAME Q'TY Old No. Supply Supply LT Reference
1 AM03-005703A CABLE ASSY-HD_VAC-BLOW_H1-H8 1
2 AM03-013438A CABLE ASSY-SM511 FLAT 1 1 AM03-010515C/ AM03-010515D
3 AM03-010964B CABLE ASSY-HD2_VAC-BLOW_CTRL 1
4 AM03-013439A CABLE ASSY-SM511 FLAT 2 1 AM03-010516C
5 AM03-010962B CABLE ASSY-HD_VAC-BLOW_CTRL 1
6 AM03-010798A CABLE ASSY-AXIS_SNS_BD_AXIO#1 1