P-0227-001 - 第121页
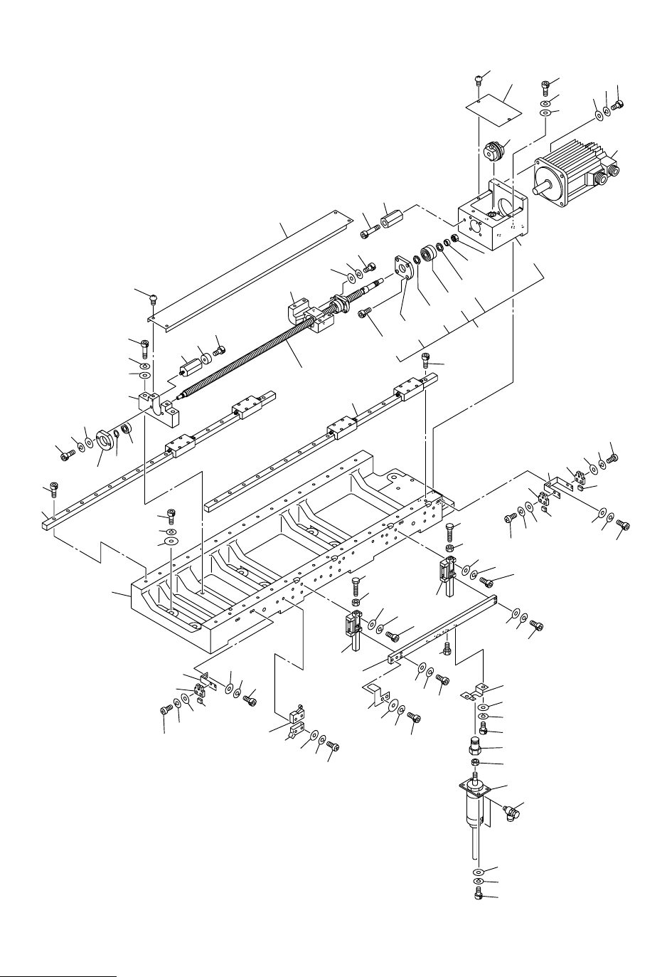
MODEL TCM-3200J 0102-001 Key No . P AR T No. P AR T NAME Q’ty REMARKS NOTE 119 6-1 1 630 059 7967 BASE 1 759J--01B-001 6 630 059 7981 BRACKET 1 759J--01B-013 7 630 059 7998 BRACKET 1 759J--01B-014 9 630 000 0245 SENSOR,P…

MODEL TCM-3200J
0102-001
118
XY テーブル部 XY TABLE SECTION
Fig. 6-1 X 軸 X Axis
1
6
9
9
17-1
17
27
26
17-2
17-4
17-4
17-5
17-5
17-3
17-3
17-3
17-3
21
21
22
22
46
38
38
45
43
20
19
18
39
40
41
42
47
47
44
44
24
23
25
25
45
33
32
31
29
28
34
93
92
91
79
79
80
78
14
14
15
16
16
10
10
11
12
13
81
82
75
74
53
53
53
56
57
58
55
55
54
55
54
56
56
57
58
13
13
12
12
11
10
11
52
51
10
14
15
16
12
13
76
76
77
61
61
62
62
63
63
61
61
62
62
63
64
65
66
67
94
95
60
52
51
35
36
37
50
48
49
30
9
7
59
59
98
99
100
100
96
97
Fig.6-1
TCM-3000Z
TCM-3200J

MODEL TCM-3200J
0102-001
Key No. PART No. PART NAME Q’ty REMARKS
NOTE
119
6-1
1 630 059 7967 BASE 1 759J--01B-001
6 630 059 7981 BRACKET 1 759J--01B-013
7 630 059 7998 BRACKET 1 759J--01B-014
9 630 000 0245 SENSOR,PHOTO 3 PHS49,PHS50,PHS51
759J--01H-019
10 630 000 0269 SENSOR,PHOTO(CONNECTOR) 3 759J--01H-021
11 411 119 1909 WASHER V 3X7X0.5 6 FW3 F
12 411 086 4408 WASHER SPR 3 6 SW3 F
13 411 040 7803 SCR PAN 3X12 6 M3X12 PAN
14 411 141 4008 WASHER V 4X9X0.8 4 FW4
15 411 141 2905 WASHER SPR 4 4 SW4
16 630 000 7640 BOLT,HEX-SCT 4 M4X14
17 630 060 6652 ASSY,BRACKET,LOCATE 1
17 -1 630 058 1669 BRACKET,LOCATE 1 759J--01B-027
17 -2 630 055 2744 BEARING,RADIAL 1 759J--01H-015
17 -3 630 053 8120 SEAL 2 759J--01H-030
17 -4 630 053 5280 HOLDER 1 759J--01B-028
17 -5 630 000 7893 BOLT,HEX-SCT 4 M6X20
18 411 141 4701 WASHER V 10X21X2 4 FW10
19 411 141 3209 WASHER SPR 10 4 SW10
20 630 000 8159 BOLT,HEX-SCT 4 M10X40
21 630 053 1961 BRACKET,LOCATE 1 759J--01B-003
22 630 053 0551 BALL SCREW 1 759J--01H-001
23 411 141 4107 WASHER V 5X10X1 4 FW5
24 411 141 6705 WASHER SPR 5 4 SW5
25 630 000 7787 BOLT,HEX-SCT 4 M5X25
26 630 053 5297 COLLAR 1 759J--01B-029
27 630 048 7404 BEARING,PARTS(LOCK NUT) 1 759J--01H-029
28 630 001 1296 BEARING,RADIAL 1 759J--01H-017
29 411 000 7508 RING C 15 1 759J--01H-018
30 630 053 1992 BRACKET 1 759J--01B-006
31 411 141 4701 WASHER V 10X21X2 2 FW10
32 411 141 3209 WASHER SPR 10 2 SW10
33 630 000 8180 BOLT,HEX-SCT 2 M10X70
34 630 053 2012 HOLDER 1 759J--01B-007
35 411 141 4305 WASHER V 6X12.5X1.6 2 FW6
36 411 141 3001 WASHER SPR 6 2 SW6
37 630 000 7909 BOLT,HEX-SCT 2 M6X25
38 630 053 1671 COUPLING 1 759J--01H-006
39 630 086 3529 MOTOR,AC-SERVO 1 SVM4(X), #SGMSH-30ACA-TV11
759J--01H-008
40 411 141 4503 WASHER V 8X17X1.6 4 FW8
41 411 141 3100 WASHER SPR 8 4 SW8
42 630 000 8036 BOLT,HEX-SCT 4 M8X30
43 630 053 2104 COVER 1 759J--01B-016
44 630 053 2098 COVER 1 759J--01B-015
45 411 051 1708 SCR TRS 4X6 6 M4X6 TRS
46 630 053 8083 MECH PARTS(URETHANES) 1 759J--01H-013
47 630 000 8081 BOLT,HEX-SCT 1 M8X60
48 630 053 2029 SPACER 1 759J--01B-008

MODEL TCM-3200J
0102-001
Key No. PART No. PART NAME Q’ty REMARKS
NOTE
120
6-1
49 630 053 8076 MECH PARTS(URETHANES) 1 759J--01H-012
50 630 000 8012 BOLT,HEX-SCT 1 M8X20
51 630 053 1046 GUIDE,LINEAR 2 759J--01H-003
52 630 000 7770 BOLT,HEX-SCT 32 M5X20
53 630 053 1022 GUIDE,LINEAR 2 759J--01H-005
54 411 141 0703 NUT HEX 6 2 M6
55 630 053 8113 BOLT,HEX 2 759J--01H-028
56 411 141 4008 WASHER V 4X9X0.8 8 FW4
57 411 141 2905 WASHER SPR 4 8 SW4
58 630 000 7664 BOLT,HEX-SCT 8 M4X20
59 630 053 3309 PLATE 1 759J--01B-009
60 630 053 8106 MECH PARTS (STOP PINS) 1 759J--01H-027
61 411 141 4107 WASHER V 5X10X1 4 FW5
62 411 141 6705 WASHER SPR 5 4 SW5
63 630 000 7770 BOLT,HEX-SCT 4 M5X20
64 630 053 2050 HOLDER 1 759J--01B-011
65 411 141 4107 WASHER V 5X10X1 2 FW5
66 411 141 6705 WASHER SPR 5 2 SW5
67 630 000 7763 BOLT,HEX-SCT 2 M5X16
74 630 059 8001 PLATE 1 759J--01B-026
75 630 001 0220 WASHER 2 759J--01H-025
76 411 141 6705 WASHER SPR 5 2 SW5
77 630 000 7770 BOLT,HEX-SCT 2 M5X20
78 630 000 3291 SWITCH,MICRO 1 LS15 759J--01H-022
79 630 000 0375 ACCESSORY,SW 1 759J--01H-023
80 411 141 4008 WASHER V 4X9X0.8 2 FW4
81 411 141 2905 WASHER SPR 4 2 SW4
82 630 000 7688 BOLT,HEX-SCT 2 M4X30
91 630 001 0251 WASHER 8 759J--01H-024
92 411 141 3209 WASHER SPR 10 8 SW10
93 630 000 8166 BOLT,HEX-SCT 8 M10X50
94 630 053 1220 CYLINDER 1 SV24A,SV24B 759J--01H-010
95 630 003 5223 AIR LINE EQPT 2 759J--01H-011
96 630 064 8294 ROD 1 759J--01B-010
97 411 141 1403 NUT HEX 12 1 M12-3
98 411 141 4305 WASHER V 6X12.5X1.6 2 FW6
99 411 141 3001 WASHER SPR 6 2 SW6
100 630 000 7886 BOLT,HEX-SCT 2 M6X16