PTS-FIFEEDER-19 - 第24页
.7%( .7%( .7%( 18 12 10 7 19 10 11 23 21 3 2 6 5 15 3 8 4 22 16 24 19 9 18 25 10 17 17 17 17 17 17 20 20 20 20 24 26 31 32 32 32 13 14 13.1 1 33 33 33 32 33 ࣮ࣜࣝ࣍ࣝࢲ:E:Iࣥࢳ REEL HOLD…

FEEDER W04f 2/2
フィーダ W04f 2/2
2ADLFA005230
No. Drg.No. & Code No. QTY Description Rating Remarks
番号 図番 & コード番号 個数 品名 規格 備考
1 PH01715 1 GUIDE
ガイド
2 PP02693 1 SLIDE, AUXILIARY
スライド ホジヨ
3 H63592 2 BOLT, HEX SOCKET
ボルト 六角穴
EH0306
4 2MDLFA065201 1 BOLT, HEX SOCKET
ボルト 六角穴
5 W1106C 1 WASHER, LOCK
ワッシャ スプリング
3M/M(3カ シロ)
6 W1108B 1 WASHER, FLAT
ワッシャ 平
3M/MX0.5X7(3カシロ)
7 PZ02321 1 SPRING
スプリング
8 PT01871 1 CLAMPER
クランパ
9 2MDLFA295800 1 WIRE
ワイヤ
10 K69487 1 SCREW, HEX SOCKET COUNTERSUNK
小ネジ 六角穴皿
M03X008(3カ シロ) SL-250ショリ
11 2MDLFA105701 1 PLATE, REAR
プレート リヤー
12 K69488 3 SCREW, HEX SOCKET COUNTERSUNK
小ネジ 六角穴皿
M04X008(3カ シロ) SL-250ショリ
13 PH01816 1 HANDLE
取手
14 K53579 3 SCREW, HEX SOCKET COUNTERSUNK
小ネジ 六角穴皿
M03X010(3カ シロ)
15 N1079W 3 NUT, HEX
ナット 六角
M03 3シュ(3カ シロ)
16 2MDLFA063502 1 LEVER
レバー
17 PT01884 1 CLIPPER, WIRE
クリツパ ワイヤ
18 K5357X 1 SCREW, HEX SOCKET COUNTERSUNK
小ネジ 六角穴皿
M03X008(3カ シロ)
19 N4018A 1 SCREW, HEX SOCKET SET
ネジ 六角穴止め
M03X003 クボミサキ
20 PM03663 1 PIN
ピン
21 K64283 1 SCREW, HEX SOCKET COUNTERSUNK
小ネジ 六角穴皿
M04X008(3カシロ)
22 PP02627 1 LEVER
レバー
23 PH01671 1 ROLLER
ローラ
24 PM066B2 1 PIN, ROLLER
ピン ローラ
25 K5357L 1 SCREW, HEX SOCKET COUNTERSUNK
小ネジ 六角穴皿
M03X006(3カ シロ)
26 PH01682 1 ROLLER
ローラ
27 PM066A5 1 PIN, PIVOT
ピン 支点
28 K5357L 1 SCREW, HEX SOCKET COUNTERSUNK
小ネジ 六角穴皿
M03X006(3カ シロ)
29 PM0BAD1 1 RETAINER, SPRING
押え スプリング
30 PZ45640 1 SPRING
スプリング
31 2AGKFA000201 1 BOARD, PRINTED CIRCUIT
基板 プリント
32 K5170M 2 SCREW, C/R TRUSS
小ネジ 十穴トラス
M02X005(ステンレス)
33 N10736 2 NUT, HEX
ナット 六角
M02 3シュ(3カクロ)
34 PS04040 1 SEAL
シール
35 PJ20961 2 PLATE
プレート
37 2MDLFA032201 1 PLATE
プレート
38 PH02063 1 COVER, SWITCH
カバー SW
39 XK05546 1 BOARD, PRINTED CIRCUIT
基板 プリント
40 2MDLFA190801 1 SHEET SW
シートSW
41 PB03TS5 1 PLATE, SEAL
プレート シール
42 2MDLFA067100 2 SEAL
シール
W04f
43 2MDLFA067300 1 SEAL, BAR CODE
シール バーコード
W04f, unit serial number
44 PX09210 1 SEAL
シール
45 2MDLFA010702 1 TAPE, SEAL
テープ シール
46 2MDLFA035702 1 SHEET, RUBBER
シート ゴム
47 2MDLFA035901 1 SHEET, RUBBER
シート ゴム
48 2MDLFA240400 1 NAMEPLATE
銘板
0201
23
PTS- FI FEEDER- 19

.7%(
.7%(
.7%(
18
12
10
7
19
10
11
23
21
3
2
6
5
15
3
8
4
22
16
24
19
9
18
25
10
17
17
17
17
17
17
20
20
20
20
24
26
31
32
32
32
13
14
13.1
1
33
33
33
32
33
࣮ࣜࣝ࣍ࣝࢲ:E:Iࣥࢳ
REEL HOLDER W04b,W04f 7inch
AA7ZM14
24
PTS- FI FEEDER- 19

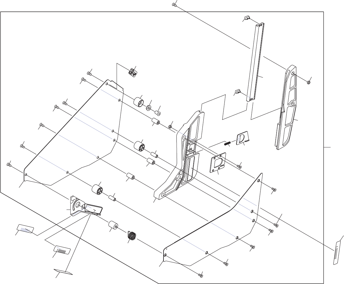
REEL HOLDER W04b,W04f 7inch
リール ホルダ W04b,W04f 7インチ
AA7ZM14
No. Drg.No. & Code No. QTY Description Rating Remarks
番号 図番 & コード番号 個数 品名 規格 備考
1 AA7ZM14 1 HOLDER, REEL
ホルダ リール
2 PM048F1 1 SLIDER
スライダ
3 PT01740 2 STOPPER
ストッパ
4 PH01437 1 SLIDER
スライダ
5 PP02254 1 PLATE, RETAINING
プレート 押え
6 K73840 4 SCREW, C/R COUNTERSUNK
小ネジ 十穴皿
M02X008(ステンレス)
7 N61648 4 NUT, HEX
ナット 六角
M02(3カ シロ)
8 PP02241 1 JAW
爪
9 PZ27731 1 SPRING
スプリング
10 PM00KH2 3 PIN
ピン
11 PP02161 1 PLATE, SIDE
プレート サイド
12 PX08540 1 SEAL
シール
13 PJ22792 1 ROLLER
ローラ
13.1 H4445D 1 BEARING, MINIATURE
ベアリング ミニチュア
LF-1060ZZ
14 PM0D3X1 1 PIN
ピン
15 K5357L 1 SCREW, HEX SOCKET COUNTERSUNK
小ネジ 六角穴皿
M03X006(3カ シロ)
16 PB02KZ4 1 PLATE, SIDE
プレート サイド
17 K5357L 6 SCREW, HEX SOCKET COUNTERSUNK
小ネジ 六角穴皿
M03X006(3カ シロ)
18 PH01492 2 ROLLER
ローラ
19 PM97983 2 PIN
ピン
20 K5357L 4 SCREW, HEX SOCKET COUNTERSUNK
小ネジ 六角穴皿
M03X006(3カ シロ)
21 PH01415 1 ARM
アーム
22 PZ34281 1 SPRING, TORSION
スプリング ネジリ
23 PM04LS3 1 PIN, PIVOT
ピン 支点
24 K5357L 2 SCREW, HEX SOCKET COUNTERSUNK
小ネジ 六角穴皿
M03X006(3カ シロ)
25 PH01424 1 BKT, SLIDE
BKT スライド
26 N1079B 2 NUT, HEX
ナット 六角
M04 P=0.7 1シュ(3カシロ)
31 2MDLFA159400 2 SCREW, HEX SOCKET COUNTERSUNK
小ネジ 六角穴皿
32 PX09171 4 SEAL, BAR CODE
シール バーコード
W04b, unit serial number
33 2MDLFA067300 4 SEAL, BAR CODE
シール バーコード
W04f, unit serial number
25
PTS- FI FEEDER- 19