JM-20_维修调整要领书 - 第113页
维修调整要领书 8-3 8-1 -2 . FFP VCS 组的更换 1) 请拆下锁销,取下①平板。 2) 请拆下② VCS 护罩。 3) 请从各个照明基板上拆下连接器。 4) 请拆下照明装置固定螺丝( 4 处)③,卸下④照明装置。 5) 请拆下固定螺丝( 3 处)⑤,卸下 DFFP VCS 组。 6) 请用酒精等清洁摄像机的安装面。 7) 将新摄像机组与照明装置复位,组装好电缆线。 图 8 -1- 3 ③ DFFP VCS 组 ⑤ 锁销…

维修调整要领书
8-2
6) 用酒精等清洁摄像机的安装面。
7) 请按相反的顺序将新的摄像机和照明装置返回原处。
8) 插入照相机电缆时,正面看着连接器部的△记号插入。
9) 请实施 VCS 摄像机定标及 VCS 摄像机偏移量的确定。
(有关详细内容,请参考 MS 参数『VCS 摄像机定标』及『VCS 摄像机偏移量』。)
图 8-1-2

维修调整要领书
8-3
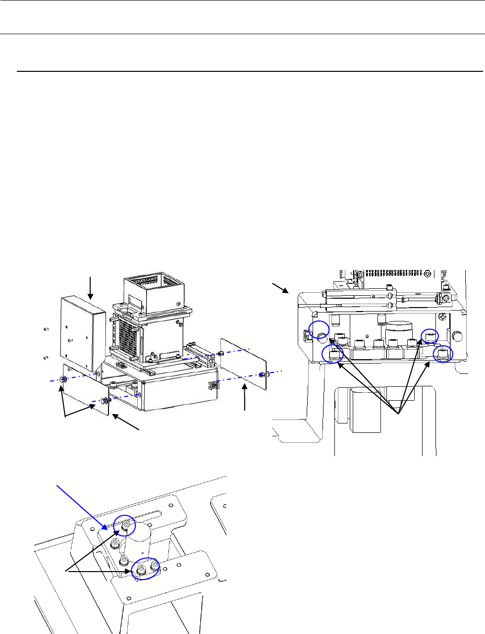
8-1-2.
FFP VCS 组的更换
1) 请拆下锁销,取下①平板。
2) 请拆下②VCS 护罩。
3) 请从各个照明基板上拆下连接器。
4) 请拆下照明装置固定螺丝(4 处)③,卸下④照明装置。
5) 请拆下固定螺丝(3 处)⑤,卸下 DFFP VCS 组。
6) 请用酒精等清洁摄像机的安装面。
7) 将新摄像机组与照明装置复位,组装好电缆线。
图 8-1-3
③
DFFP VCS 组
⑤
锁销
①
①
②
④

维修调整要领书
8-4
8) 请设置网络。 (请参考 13 章 其他机器 13-2-4 网络的设置)
9) 请实施 Z 焦点偏移量的确定。(有关详细内容,请参考 MS 参数『调整 VCS 摄像机焦点偏差』。)
10) 请实施 VCS 摄像机定标及 VCS 摄像机偏移量的确定。
(有关详细内容,请参考 MS 参数『VCS 摄像机定标』及『VCS 摄像机偏移量』。)
11) 请实施 Z 校正。
(有关详细内容,请参考 MS 参数『DFFP VCS Z 校准』。)