JM-20_维修调整要领书 - 第216页
维修调整要领书 14-2 No. 品名 20 连接器托架 〔 FEEDER IF 基板, DRV 基板, FEEDER BANK 基板(选项)〕 21 电源装置 22 电源用变压器 23 真空泵 24 LCD 监视器(选项) 25 带鼠标的键盘 26 BANK 基板(选项) 27 X 轴电动机 28 Y 轴电动机 29 传送 L 电动机 30 传送中心电动机 31 传送 R 电动机 32 5 相步进电动机驱动器 〔支撑台电动机用, 自动…

维修调整要领书
14-1
14 电气部
14-1. 电气部的布局
14-1-1. 电气部的布局
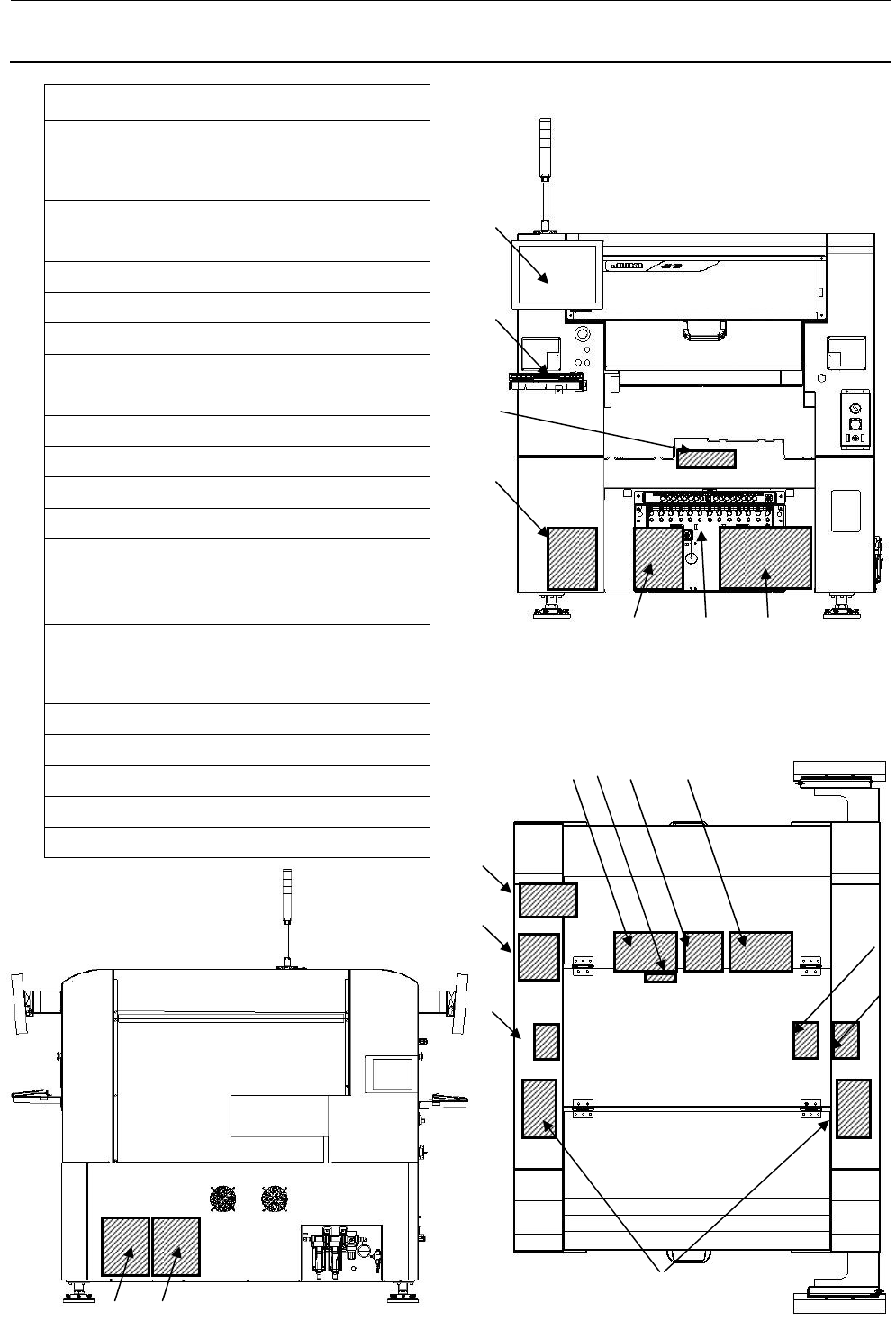
No. 品名
1 信号塔
2 LCD 监视器
3 操作 SW
4 贴装头装置
〔贴装头主基板组件,Z/θ 轴伺服放大
器,HMS 传感器〕
5 OCC 照相机,垂直照明基板组件
角度照明基板(右左)
6 带鼠标的键盘
7 电源开关
8 控制装置
〔CPU 板,POSITION 板,IP-X5 基板,
MI FEEDER 基板,IO-20 基板,8端口
COM 板(选项),BACK 板〕
9 图像迭映功能基板
10 XY 轴 AC 伺服放大器
11 USB 端子
12 连接器托架
〔FEEDER IF 基板,DRV 基板(
选项
),
FEEDER BANK 基板(选项)〕
13 BANK 基板(选项)
14 断流器
15 IN.CENT.OUT 传送电动机用驱动器
16 后备贴装头用的 UPS(选项)
17 ATX 电源
18 测力传感器放大器(选项)
19 USB SELECT 基板(选项)
为了防止突然的起动造成事故,请关掉电源之后再进行操作。
危险
1
2
3
6
7
11
14
8
17 12 10
16
18
15
9
13
4
5
19
图 14-1-1-1 主体正面图

维修调整要领书
14-2
No. 品名
20 连接器托架
〔FEEDER IF 基板,DRV 基板,FEEDER
BANK 基板(选项)〕
21 电源装置
22 电源用变压器
23 真空泵
24 LCD 监视器(选项)
25 带鼠标的键盘
26 BANK 基板(选项)
27 X 轴电动机
28 Y 轴电动机
29 传送 L 电动机
30 传送中心电动机
31 传送 R 电动机
32 5 相步进电动机驱动器
〔支撑台电动机用,自动传送通道宽度
调整电动机用(选项)〕
33 VCS(选项)
〔 BOTTOM LIGHT , SIDE LIGHT ,
COAXIAL LIGHT〕
34 ATC
35 R-ATC(选项)
36 简易载荷控制(选项)
37 BASE 基板
38 LIGHT CTRL 基板(选项)
24
25
22
23 21
26
20
图 14-1-1-2 主体背面图
图 14-1-1-3 主体左面图
37 38
28
29
32
27
36
31
30
34 33 35
图 14-1-1-4 主体上面图

维修调整要领书
14-3
14-2. 电源装置
14-2-1. 電源装置的构成 (L、XL 基板规格)
电源装置实装在机器前面。图 14-2-1-2 表示构成。
电源装置由 DC 电源、控制用继电器、电路保护器等构成,向各装置(控制器,XY驱动装置,Zθ装置,
传送装置,贴装头装置等)供给 AC、DC 电源。
各 DC 电源的用途如下∶
+24VA (+24V±0.1V、PS1) 通用(控制器外面基板、步进电动机驱动器等用)
+24VB (+24V±0.1V、PS2) Zθ 伺服放大器控制用
+24V (+24±0.1V、PS3) MI 用(连接器托架等)
14-2-1-1. DC 电源电压等级的调整方法
表 14-2-1-1-1 DC 电源电压等级的设定
NO. 电源规格 电源代号 电源装置测定端子 电压调整值
1(※) +48V - CN 039 1 脚(+48V) 和 7脚 (+48VRTN) -
2 +24V PS 1 CN 039 4 脚(+24VA)和 10 脚(+24VARTN) +24V±0.1V
3 +24V PS 2 CN 039 5 脚(+24VB)和 11 脚(+24VBRTN) +24V±0.1V
4 +24V PS 3 MONI 1 脚(+24V) 和 2 脚 (+24VRTN) +24V±0.1V
DC电源输出电压调整用电源装置的 CN039 及 MONI 来进行。(参照图 14-2-1-1)
※的 No.1 是不需要调整的电源。
以保证 No. 2~4 的 DC 电源的输出电压是规格调整值,DC 电源的输出电压用可变电阻器调整。
图 14-2-1-1-1
注 1. 调整电位器时,要调整到电压值不超出规格调整值。
注 2. 除了有调整指示的电源外,绝对不要与其他电源的 GND 共用。(不要连接)
注意
电源装置