JM-20_维修调整要领书 - 第218页
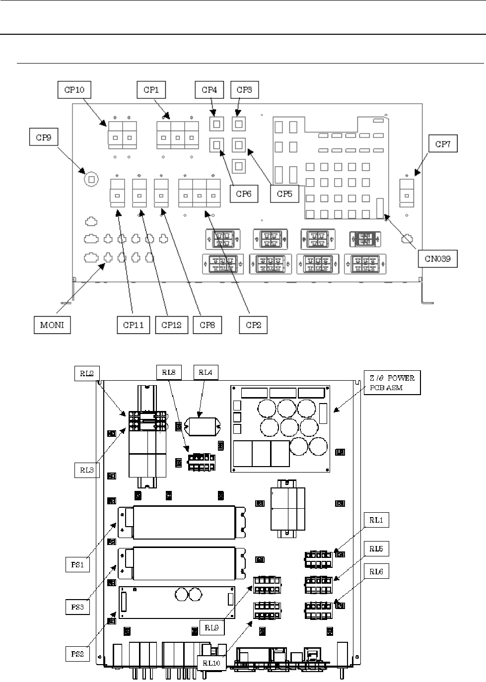
维修调整要领书 14-4 14-2-1-2 . 电源装置构成图 ( L 、 XL 基板规格 ) 图 14-2-1-2-1 电源装置正面图 图 14-2-1-2-2 电源装置上面图

维修调整要领书
14-3
14-2. 电源装置
14-2-1. 電源装置的构成 (L、XL 基板规格)
电源装置实装在机器前面。图 14-2-1-2 表示构成。
电源装置由 DC 电源、控制用继电器、电路保护器等构成,向各装置(控制器,XY驱动装置,Zθ装置,
传送装置,贴装头装置等)供给 AC、DC 电源。
各 DC 电源的用途如下∶
+24VA (+24V±0.1V、PS1) 通用(控制器外面基板、步进电动机驱动器等用)
+24VB (+24V±0.1V、PS2) Zθ 伺服放大器控制用
+24V (+24±0.1V、PS3) MI 用(连接器托架等)
14-2-1-1. DC 电源电压等级的调整方法
表 14-2-1-1-1 DC 电源电压等级的设定
NO. 电源规格 电源代号 电源装置测定端子 电压调整值
1(※) +48V - CN 039 1 脚(+48V) 和 7脚 (+48VRTN) -
2 +24V PS 1 CN 039 4 脚(+24VA)和 10 脚(+24VARTN) +24V±0.1V
3 +24V PS 2 CN 039 5 脚(+24VB)和 11 脚(+24VBRTN) +24V±0.1V
4 +24V PS 3 MONI 1 脚(+24V) 和 2 脚 (+24VRTN) +24V±0.1V
DC电源输出电压调整用电源装置的 CN039 及 MONI 来进行。(参照图 14-2-1-1)
※的 No.1 是不需要调整的电源。
以保证 No. 2~4 的 DC 电源的输出电压是规格调整值,DC 电源的输出电压用可变电阻器调整。
图 14-2-1-1-1
注 1. 调整电位器时,要调整到电压值不超出规格调整值。
注 2. 除了有调整指示的电源外,绝对不要与其他电源的 GND 共用。(不要连接)
注意
电源装置

维修调整要领书
14-4
14-2-1-2. 电源装置构成图 (L、XL 基板规格)
图 14-2-1-2-1 电源装置正面图
图 14-2-1-2-2 电源装置上面图

维修调整要领书
14-5
表 14‐2-1-2-1 DC 电源装置 (L、XL 基板规格)
<零件表>
No.
JUKI 货号 零件名称 零件数量 位置 备注
1 HX00542000B POWER SUPPLY LCA100S-24-Y
1
PS2
2 HX006750000 POWER SUPPLY ADA600F-24
2
PS1, 3
3 HA00524000B CIRCUIT PROTECTOR W28XQ1A- 8
1
CP5
4 HA00524000D CIRCUIT PROTECTOR W28XQ1A- 15
2
CP3, 4
5 HA00524000E CIRCUIT PROTECTOR W28XQ1A-12
1
CP6
6 HA00526000B CIRCUIT PROTECTOR CP52BS/7.5
1
CP10
7 HA00527000C CIRCUIT PROTECTOR CP51BS/025
1
CP8
8 HA00542000A CIRCUIT PROTECTOR NRW10-5A
1
CP9
9 HA005590000 CIRCUIT PROTECTOR CP51BM/20DC
3
CP7, 11, 12
10 HA006460000 CIRCUIT PROTECTOR CP33V/7.5DN
1
CP2
11 HA00646000A CIRCUIT PROTECTOR CP33V/15DN
1
CP1
12 HB00128000C RELAY G7J-4A-B (DC24V)
6 (3)
RL1, 5, 6, 8, 9, 10
EN 机 RL8、9、10
13 HB000580010 RELAY R99-04 FOR G5F
6 (3)
RL1, 5, 6, 8, 9, 10
EN 机 RL8、9、10
14 HB001540000 RELAY G2R-2-SD (DC24V)
2
RL2, 3
15 HB001540010 RELAY P2RF-08
2
RL2, 3
16 HB001100000 RELAY G7L-2A-BUBJ (DC24V)
1 (0)
RL4
EN 机未使用
17 HB001100010 RELAY P7LF-C
1 (0)
RL4
EN 机未使用
18 40109881 S-POWER PCB ASM
1
PCB
19 40109883 S-ZT POWER PCB ASM
1
PCB
表 14‐2-1-2-2 DC 电源装置 (L~、基板规格)
<零件表>
No.
JUKI 货号 零件名称 零件数量 位置 备注
1
HX00
6900000
POWER SUPPLY L
G
A100
A
-
24
-
J1
Y
1
PS2
2
HX006750000
POWER SUPPLY
ADA600F
-
24
1
P
S3
3
HX007180000
POWER SUPPLY
RWS
600
B
-
24
1
PS1
4
HA00524000B
CIRCUIT PROTECTOR W28XQ1A
-
8
1
CP5
5
HA00524000D
CIRCUIT PROTECTOR W28XQ1A
-
15
2
CP3
,4
6
HA00524000E
CIRCUIT PROTECTOR W28XQ1A
-
12
1
CP6
7
HA00526000B
CIRCUIT PROTECTOR
CP52BS/7.5
1
CP
10
8
HA00527000C
CIRCUIT PROTECTOR
CP51BS/025
1
CP8
9
HA00542000A
CIRCUIT PROTECTOR
NRW10
-
5A
1
CP9
10
HA005590000
CIRCUIT PROTECTOR CP51BM/20DC
3
CP
7,11,12
1
1
HA006460000
CIRCUIT PROTECTOR CP33V/7.5DN
1
CP2
1
2
HA00646000A
CIRCUIT PROTECTOR CP33V/15
DN
1
CP1
1
3
HB00128000C
RELAY G7J
-
4A
-
B(DC24V)
6
(
3
)
RL1,5,6,8
,9,10
EN
机
RL8,9,10
1
4
HB000580010
RELAY R99
-
04 FOR G5F
6
(
3
)
RL1,5,6,8
,9,10
EN
机
RL8,9,10
1
5
HB001540000
RELAY G2R
-
2
-
SD(DC24V)
2
RL2,3
1
6
HB001540010
RELAY P2RF
-
08
2
RL2,3
1
7
HB001100000
RELAY
G7L
-
2A
-
BUBJ(DC24V)
1
(0)
RL4
EN
机未使用
1
8
HB001100010
RELAY P7LF
-
C
1
(0)
RL4
EN
机未使用
1
9
40109881
S
-
POWER PCB ASM
1
PCB
20
40109883
S
-
ZT POWER PCB ASM
1
PCB