PTS-NXT3c-07 - 第101页
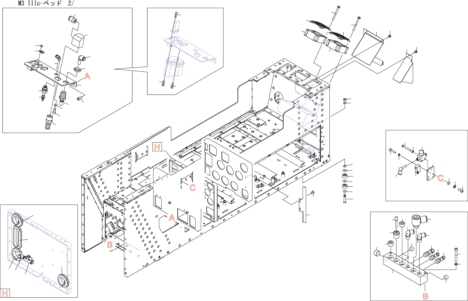
M3 IIIc-BED 2/ M3 II Ic-ベッ ド 2/ 2UGZBC00 0152 No. Drg.No. & Cod e No. QT Y Description Ra ting Re marks 番号 図番 & コード番号 個数 品名 規格 備考 6 Y60202 1 EL BOW エルボ KQ2L1 0-99A 7 Y60440 1 UNION ユニオ ン KQ2T1 0-08A 8 2MGTB E028…

B
A
A
C
B
C
36
38
61
62
60
41
24
42
25
41
13
12
12
11
11
10
12
15
14
53
55
57
100
101
102
102
103
103
104
104
105
105
50
51
75
76
77
78
78
78
79
80
81
82
82
83
84
84
110
111
112
114
115
116
117
118
119
120
121
114.1
113
6
7
8
8
9
8
85
85
63
64
65
M3 IIIc-BED 2/
2UGZBC000152
H
H
100
PTS-NXT3c-07
M
3
IIIc
-
^
'
vK
2
/
0

M3 IIIc-BED 2/
M3 IIIc-ベッド 2/
2UGZBC000152
No.
Drg.No. & Code No.
QTY
Description
Rating
Remarks
番号
図番
&
コード番号
個数
品名
規格
備考
6
Y60202
1
ELBOW
エルボ
KQ2L10-99A
7
Y60440
1
UNION
ユニオン
KQ2T10-08A
8
2MGTBE028100
3
BUSHING, RUBBER
ブシュ ゴム
9
2MGTBC032600
1
BUSHING, RUBBER
ブシュ ゴム
10
PM00862
1
PIN
ピン
11
2MGTBC008800
2
ROLLER
ローラ
12
2MGKBC006300
3
WASHER
ワッシャ
13
PM52611
1
WASHER
ワッシャ
14
W1106G
1
WASHER, LOCK
ワッシャ スプリング
8M/M(3
カシロ
)
15
N1079L
1
NUT, HEX
ナット 六角
M08(3
カ
シロ
)
24
2MGTBC023301
1
PLATE, RETAINING
プレート 押え
25
H5425C
2
BOLT, HEX SOCKET
ボルト 六角穴
M06X012(3
カシロ
)
36
K1158B
1
COUPLER
カプラ
K4-04PM
38
Y60203
1
UNION, HALF
ユニオン ハーフ
KQ2S12-03AS
41
K11578
1
COUPLER
カプラ
KK4P-10E
42
Y60202
1
ELBOW
エルボ
KQ2L10-99A
50
S2025A
1
SHEET
シート
CTAM1
51
K5172L
1
SCREW, C/R TRUSS
小ネジ 十穴トラス
M04X006(3
カ
シロ
)
53
K5178N
2
SCREW, C/R PAN
小ネジ 十穴鍋
M03X006(
ステンレス
)
55
K5178N
2
SCREW, C/R PAN
小ネジ 十穴鍋
M03X006(
ステンレス
)
57
K51757
2
SCREW, C/R PAN
小ネジ 十穴鍋
M02.5X006(
ステンレス
)
60
2MGKBC000403
1
JOINT
ジョイント
61
H54252
2
BOLT, HEX SOCKET
ボルト 六角穴
M03X008(3
カ
シロ
)
62
W1106C
2
WASHER, LOCK
ワッシャ スプリング
3M/M(3
カ
シロ
)
63
Y3016B
1
UNION
ユニオン
PLLJ6
64
Y3024A
1
UNION
ユニオン
PMF6-01
65
K1161W
1
COUPLER
カプラ
CPPE7-01
75
2MGTBC001604
1
MANIFOLD, AIR
マニホールド エアー
76
H5426Z
2
BOLT, HEX SOCKET
ボルト 六角穴
M04X035(3
カ
シロ
)
77
W1106D
2
WASHER, LOCK
ワッシャ スプリング
4M/M(3
カ
シロ
)
78
A3033A
3
PLUG
埋栓
PT1/4
79
Y60422
1
UNION, HALF
ユニオン ハーフ
KQ2H04-02AS
80
H3145K
1
PLUG
プラグ
KQ2P-04
81
Y60194
1
UNION, ELBOW
ユニオン エルボ
KQ2VS10-02AS
82
Y60192
2
UNION, ELBOW
ユニオン エルボ
KQ2L06-01AS
83
Y60192
1
UNION, ELBOW
ユニオン エルボ
KQ2L06-01AS
84
Y60195
2
UNION, ELBOW
ユニオン エルボ
KQ2L04-01AS
85
A3034A
3
PLUG
埋栓
PT1/8
100
2MGZBC001002
1
DUCT
ダクト
101
2MGZBC001102
1
COVER
カバー
102
H5501W
6
BOLT
ボルト
CBSS4-6
103
H67781
2
FAN
ファン
109P0824A2D01
104
H3012H
2
GUARD, FIN
ガード フィン
109-1002G
105
K5174C
4
SCREW, WASHER ASS'Y
小ネジ 座金組込み
M04X045 P=3
ナベセムス
(3
カ
シロ
)
110
2MGTBC004601
1
BKT
BKT
111
K5258M
2
SCREW, HEX SOCKET BUTTON
小ネジ 六角穴ボタン
M04X010(3
カ
シロ
)
112
W1106D
2
WASHER, LOCK
ワッシャ スプリング
4M/M(3
カ
シロ
)
113
W1108S
2
WASHER, FLAT
ワッシャ 平
4M/MX0.8X9(1W-4)(3
カシロ
)
114
H1035M
1
VALVE, MANUAL
バルブ 手動
VHK2-04F-04FR
114.1
Y60235
1
UNION, ELBOW
ユニオン エルボ
KQ2L04-99A
115
K65269
2
SCREW, C/R PAN
小ネジ 十穴鍋
M03X025(
ニッケルメッキ
)
101
PTS-NXT3c-07

M3 IIIc-BED 2/
M3 IIIc-ベッド 2/
2UGZBC000152
No.
Drg.No. & Code No.
QTY
Description
Rating
Remarks
番号
図番
&
コード番号
個数
品名
規格
備考
116
W1106C
2
WASHER, LOCK
ワッシャ スプリング
3M/M(3
カ
シロ
)
117
H68102
1
VALVE, MECHANICAL
バルブ メカニカル
VM1100-4NU-00
118
H54255
2
BOLT, HEX SOCKET
ボルト 六角穴
M03X015(3
カ
シロ
)
119
W1106C
2
WASHER, LOCK
ワッシャ スプリング
3M/M(3
カ
シロ
)
120
2MGTBC025301
1
BKT
BKT
121
H77917
2
BOLT, HEX SOCKET
ボルト 六角穴
M04X008(FT
ネジ
3
カ
シロ
)
102
PTS-NXT3c-07