PTS-NXT3c-07 - 第165页
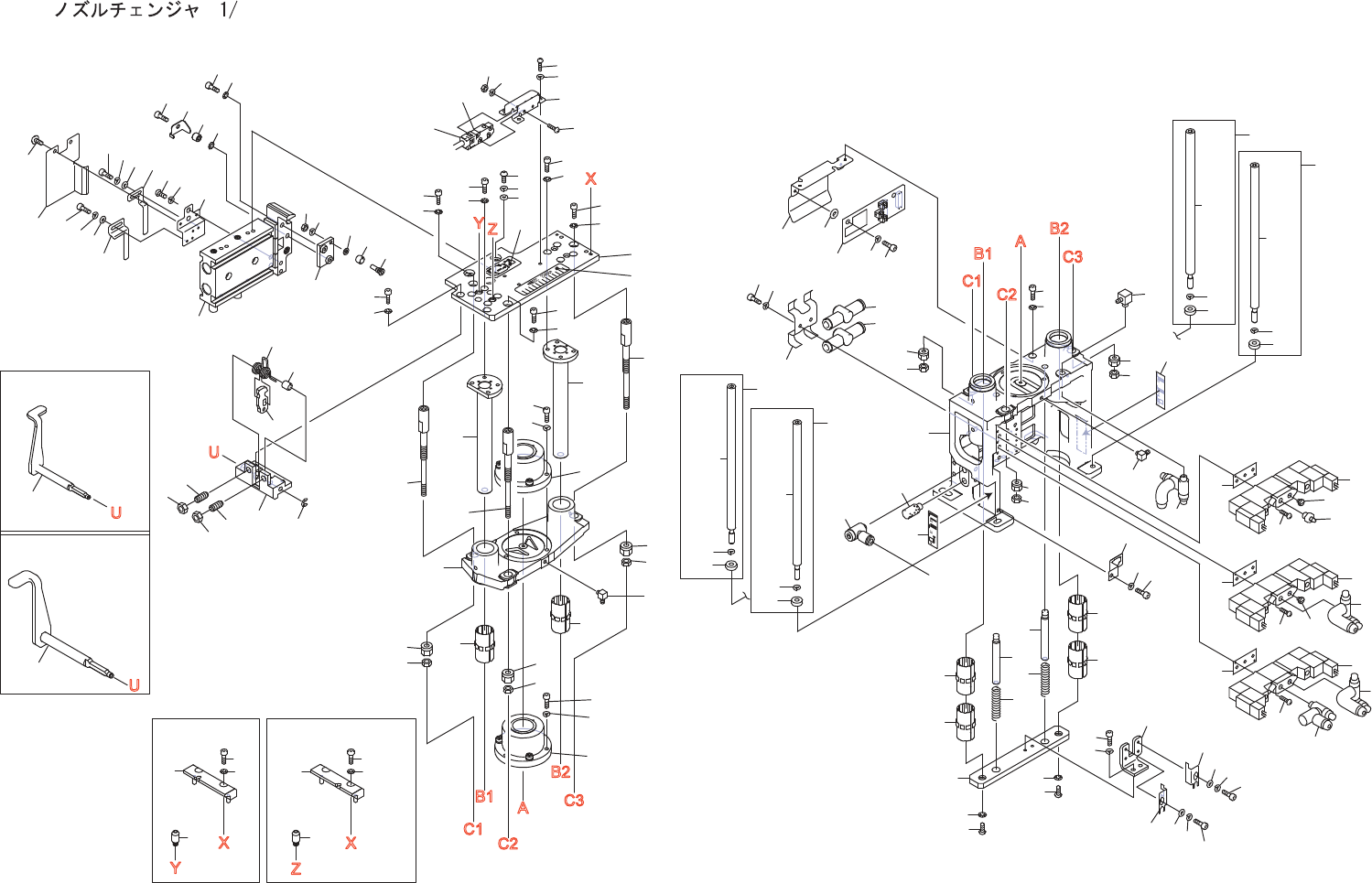
NOZZLE CHANGER 1/ (M3) UL 03360 ノズ ルチェ ンジャ 1/ (M6,AIM EX series,NXT- H) UL0 3459 No. Drg.No. & Cod e No. QT Y Description Ra ting Re marks 番号 図番 & コード番号 個数 品名 規格 備考 1 PM00M Y2 1 PL ATE プレー ト 2 PX051 41 1 SE AL, …

M3 M6,AIMEX series,NXT-H
M3,M6,AIMEX series
NXT-H
A
B1
B2
C1
C2
C3
A
B1
B2
C1
C2
C3
X
To BED
Y
Z
X
Y
Z
X
U
U
U
1
2
3
4
5
6
7
26
27
39
40
41
42
43
44
45
46
47
48
47
48
49
59
60
60
56
57
57
58
58
56
49
49
50
50
50
51
52
52
52
53
53
53
51
51
37
38
29
33
30
31
32
34
35
36
42.1
67
28
121
112
126
128
115
114
116
117
113
54
55
54
55
54
55
64
65
65
66
67
68
69
70
73
74
75
76
76
77
78
79
83
90
92
92
93
93
84
85
65
94
95
96
97
98
99
100
101
103
104
105
106
107
102
65
108.1
109
110
108.1
109
110
108.1
109
110
108.1
109
110
80.1
95
96
122
108
108
108
108
123
124
125
127
13
14
15
13
8
9
10
11
12
19
20
21
61
62
63
62
63
61
16
17
16
17
72
86
87
89
88
91
89
86
87
88
86
87
88
91
111
71
80
81
82
NOZZLE CHANGER 1/
(M3) UL03360
(M6,AIMEX series,NXT-H) UL03459
164
PTS-NXT3c-07
/
X
儿 于 工
1
/
x
B
1
C
1
C
2

NOZZLE CHANGER 1/
(M3) UL03360
ノズルチェンジャ 1/
(M6,AIMEX series,NXT-H) UL03459
No.
Drg.No. & Code No.
QTY
Description
Rating
Remarks
番号
図番
&
コード番号
個数
品名
規格
備考
1
PM00MY2
1
PLATE
プレート
2
PX05141
1
SEAL, BAR CODE
シール バーコード
NM00C, unit serial number, M3
3
PX05151
1
SEAL, BAR CODE
シール バーコード
NM00D, unit serial number, M6,AIMEX series,NXT-H
4
PX05492
1
SEAL
シール
5
PP00323
1
GUARD
ガード
6
K51756
3
SCREW, C/R PAN
小ネジ 十穴鍋
M02.5X005(
ステンレス
)
7
W1106A
3
WASHER, LOCK
ワッシャ スプリング
2.5M/M(3
カ
シロ
)
8
S5161A
1
SW, MICRO
SW マイクロ
AV630564
9
RH03022
1
HARNESS
ハーネス
10
K5175Z
2
SCREW, C/R PAN
小ネジ 十穴鍋
M02X012(
ステンレス
)
11
W1106B
2
WASHER, LOCK
ワッシャ スプリング
2M/M(3
カ
シロ
)
12
N1074A
2
NUT, HEX
ナット 六角
M02(
ステンレス
)
13
PM17792
1
PIN, REFERENCE
ピン 基準
14
AA39Z04
1
GUIDE
ガイド
M3
15
AA3AA03
1
GUIDE
ガイド
M6,AIMEX series,NXT-H
16
H54253
2
BOLT, HEX SOCKET
ボルト 六角穴
M03X010(3
カ
シロ
)
17
W1010A
2
WASHER, CONICAL
ワッシャ 皿
M-3-L
19
K5258E
2
SCREW, HEX SOCKET BUTTON
小ネジ 六角穴ボタン
M03X006(3
カ
シロ
)
20
W1106C
2
WASHER, LOCK
ワッシャ スプリング
3M/M(3
カ
シロ
)
21
W1108B
2
WASHER, FLAT
ワッシャ 平
3M/MX0.5X7(3
カシロ
)
26
PB68584
1
BKT
BKT
27
K5258K
2
SCREW, HEX SOCKET BUTTON
小ネジ 六角穴ボタン
M04X006(3
カ
シロ
)
28
W1106D
2
WASHER, LOCK
ワッシャ スプリング
4M/M(3
カ
シロ
)
29
PP01361
1
DOG, SW
ドッグ SW
30
H5425F
2
BOLT, HEX SOCKET
ボルト 六角穴
M02.5X006(3
カ
シロ
)
31
W1106A
2
WASHER, LOCK
ワッシャ スプリング
2.5M/M(3
カ
シロ
)
32
W60565
2
WASHER, FLAT
ワッシャ 平
2.5M/MX0.5X5
コガタマル
(3
カ
シロ
)
33
PP01351
1
DOG, SW
ドッグ SW
34
H5425F
2
BOLT, HEX SOCKET
ボルト 六角穴
M02.5X006(3
カ
シロ
)
35
W1106A
2
WASHER, LOCK
ワッシャ スプリング
2.5M/M(3
カ
シロ
)
36
W60565
2
WASHER, FLAT
ワッシャ 平
2.5M/MX0.5X5
コガタマル
(3
カ
シロ
)
37
PB68591
1
COVER, SWITCH
カバー SW
38
K51710
2
SCREW, C/R TRUSS
小ネジ 十穴トラス
M03X005(3
カ
シロ
)
39
2MGKMP001001
1
BKT, CLAMP
BKT クランプ
40
H54251
2
BOLT, HEX SOCKET
ボルト 六角穴
M03X006(3
カ
シロ
)
41
W1010A
2
WASHER, CONICAL
ワッシャ 皿
M-3-L
42
2MGKMP001102
1
SHAFT, ARM
シャフト アーム
M3,M6,AIMEX series
42.1
2AGWMP000100
1
SHAFT, ARM
シャフト アーム
NXT-H
43
S1003D
1
CIR-CLIP
サークリップ
ST-EW-2(3
カ
シロ
)
44
PP00863
1
CLAMPER
クランパ
45
PZ08741
1
SPRING, TORSION
スプリング ネジリ
46
PM17551
1
COLLAR
カラー
47
H63811
2
PLUNGER, BALL
プランジャ ボール
BPQ5
48
N1079Y
2
NUT, HEX
ナット 六角
M05 3
シュ
(3
カシロ
)
49
PM00MX2
3
SHAFT
シャフト
50
H68191
3
BOLT, HEX SOCKET
ボルト 六角穴
M04X008
テイトウ
(3
カ
シロ
)
51
W1011A
3
WASHER, CONICAL
ワッシャ 皿
M-4-L
52
PM59924
3
NUT, STOPPER
ナツト ストツパ
53
N1079Y
3
NUT, HEX
ナット 六角
M05 3
シュ
(3
カシロ
)
54
PM90481
3
NUT, STOPPER
ナツト ストツパ
55
N1079X
3
NUT, HEX
ナット 六角
M04 3
シュ
(3
カ
シロ
)
165
PTS-NXT3c-07

NOZZLE CHANGER 1/
(M3) UL03360
ノズルチェンジャ 1/
(M6,AIMEX series,NXT-H) UL03459
No.
Drg.No. & Code No.
QTY
Description
Rating
Remarks
番号
図番
&
コード番号
個数
品名
規格
備考
56
PM36787
2
SHAFT
シャフト
57
H54250
8
BOLT, HEX SOCKET
ボルト 六角穴
M03X005(3
カ
シロ
)
58
W1010A
8
WASHER, CONICAL
ワッシャ 皿
M-3-L
59
AA39E04
1
PLATE, LOWER
プレート 下
60
H4274K
2
BEARING, SLIDE
ベアリング スライド
JUM-02-12
61
XS03490
2
CYLINDER, AIR
シリンダ エアー
62
H54254
6
BOLT, HEX SOCKET
ボルト 六角穴
M03X012(3
カ
シロ
)
63
W1106C
6
WASHER, LOCK
ワッシャ スプリング
3M/M(3
カ
シロ
)
64
AA39D14
1
BASE
ベース
65
H4274K
4
BEARING, SLIDE
ベアリング スライド
JUM-02-12
66
A4068H
1
ELBOW
エルボ
M-5ALU-4
67
A4067A
2
ELBOW
エルボ
M-3ALU-4
68
PX00303
1
NAMEPLATE, SOL
銘板 SOL
69
PX00314
1
NAMEPLATE, SOL
銘板 SOL
70
Y60409
1
UNION, ELBOW
ユニオン エルボ
KQ2VS04-M5A
71
S1058A
1
SILENCER
サイレンサ
AN120-M5
72
K5335K
1
CONTROLLER, SPEED
コントローラ スピード
ASD230F-M5-04
73
PB41823
1
BAND
バンド
74
H54250
2
BOLT, HEX SOCKET
ボルト 六角穴
M03X005(3
カ
シロ
)
75
W1106C
2
WASHER, LOCK
ワッシャ スプリング
3M/M(3
カ
シロ
)
76
H13332
2
VALVE
バルブ
AQ240F-04-00
77
PP00853
1
BKT
BKT
78
H54251
2
BOLT, HEX SOCKET
ボルト 六角穴
M03X006(3
カ
シロ
)
79
W1010A
2
WASHER, CONICAL
ワッシャ 皿
M-3-L
80
2AGKMP000402
1
BOARD, PRINTED CIRCUIT
基板 プリント
80.1
W10052
2
WASHER
ワッシャ
CC-0306-03
81
H54251
2
BOLT, HEX SOCKET
ボルト 六角穴
M03X006(3
カ
シロ
)
82
W1106C
2
WASHER, LOCK
ワッシャ スプリング
3M/M(3
カ
シロ
)
83
PB47692
1
BKT
BKT
84
H54251
1
BOLT, HEX SOCKET
ボルト 六角穴
M03X006(3
カ
シロ
)
85
W1106C
1
WASHER, LOCK
ワッシャ スプリング
3M/M(3
カ
シロ
)
86
K11520
3
GASKET
ガスケット
SY3000-11-24
87
H11224
3
VALVE, SOL
バルブ SOL
SY3220-5MOZ-M5
88
K51735
6
SCREW, C/R PAN
小ネジ 十穴鍋
SY3000-23-4
89
H3146A
2
PLUG
プラグ
M-5P
90
N2030T
1
NIPPLE
ニップル
M-5AU-4
91
K5335K
2
CONTROLLER, SPEED
コントローラ スピード
ASD230F-M5-04
92
PM89962
2
GUIDE, SPRING
ガイド スプリング
93
PZ13701
2
SPRING, COIL
スプリング コイル
94
PB58533
1
BKT
BKT
95
K5258Y
2
SCREW, HEX SOCKET BUTTON
小ネジ 六角穴ボタン
M05X012(3
カ
シロ
)
96
W1012A
2
WASHER, CONICAL
ワッシャ 皿
M-5-L
97
PP01391
1
BKT
BKT
98
H54252
2
BOLT, HEX SOCKET
ボルト 六角穴
M03X008(3
カ
シロ
)
99
W1106C
2
WASHER, LOCK
ワッシャ スプリング
3M/M(3
カ
シロ
)
100
PP01371
1
DOG, SW
ドッグ SW
101
H54251
2
BOLT, HEX SOCKET
ボルト 六角穴
M03X006(3
カ
シロ
)
102
W1106C
2
WASHER, LOCK
ワッシャ スプリング
3M/M(3
カ
シロ
)
103
W1108D
2
WASHER, FLAT
ワッシャ 平
4W-3(3
カ
シロ
)
104
PP01381
1
DOG, SW
ドッグ SW
105
H54251
2
BOLT, HEX SOCKET
ボルト 六角穴
M03X006(3
カ
シロ
)
166
PTS-NXT3c-07