PTS-NXT3c-07 - 第285页
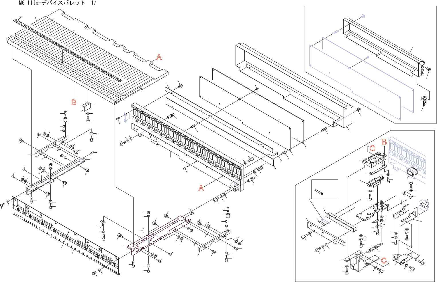
M6 IIIc-DEVICE PALLET 1/ (W ith bucket) 2UGZPF000239 M6 II Ic-デバ イスパ レット 1/ (Standard) 2UGZPF000135 No. Drg.No. & Cod e No. QT Y Description Ra ting Re marks 番号 図番 & コード番号 個数 品名 規格 備考 1 2MGTP F003303 1 PA LLET パ…

A
B
B
C
C
Option
A
14
16
16
21
22
26
27
28
27
28
35
36
39.1
46
46
51
52
56
57
58
44
59
60
60
61
61
68
69
62
20
50
12
12
12
12
42
42
42
42
29
99
100
98
97
104
92
93
96
75
75
76
76
80
71
79
78
84
83
82
101
86
77
81
95
1
106
107
108
110
151
152
153
111
112
113
114
115
116
117
118
120
121
122
123
124
125
126
127
128
146
129
147
130
148
131
132
133
134.1
134.1 134
133
134
135
136
137
138
139
140
139
140
143
102
145
114
115
2
3
4
11
30
31
32
33
34
37
38
39
40
40.1
40.1
40
41
63
64
65
66
67
70
72
18
23
24
25
47
47
48
49
48
55
53
54
19
18
17
17
85
5
100
41.1
11.1
109
119
124.1
110.1
124.2
124.1
124.3
110.2
16.1
16.1
30.1
46.1
46.1
63.1
M6 IIIc-DEVICE PALLET 1/
(Standard) 2UGZPF000135
(With bucket) 2UGZPF000239
284
PTS-NXT3c-07

M6 IIIc-DEVICE PALLET 1/
(With bucket) 2UGZPF000239
M6 IIIc-デバイスパレット 1/
(Standard) 2UGZPF000135
No.
Drg.No. & Code No.
QTY
Description
Rating
Remarks
番号
図番
&
コード番号
個数
品名
規格
備考
1
2MGTPF003303
1
PALLET
パレット
2
PM11907
1
BLOCK
ブロック
3
H5426N
2
BOLT, HEX SOCKET
ボルト 六角穴
M04X015(3
カ
シロ
)
4
W1011A
2
WASHER, CONICAL
ワッシャ 皿
M-4-L
5
2MGTPF024600
1
NAMEPLATE
銘板
11
PM04TB4
1
BKT, RAIL
BKT レール
INT
11.1
2MGTPE003803
1
BKT, RAIL
BKT レール
INT
12
H2093K
4
PIN, PARALLEL
ピン 平行
φ04X08 B
種
(h8)
14
H5426M
3
BOLT, HEX SOCKET
ボルト 六角穴
M04X012(3
カ
シロ
)
16
2MGKPE000500
2
CAM FOLLOWER
カムフォロア
INT
16.1
K70374
2
CAM FOLLOWER
カムフォロア
CF3B
INT
17
N10793
2
NUT, HEX
ナット 六角
M03 P=0.5(3
カシロ
)
18
W1106C
2
WASHER, LOCK
ワッシャ スプリング
3M/M(3
カ
シロ
)
19
PM51372
1
PIN, ROLLER
ピン ローラ
20
PM26721
1
ROLLER
ローラ
21
N10793
1
NUT, HEX
ナット 六角
M03 P=0.5(3
カシロ
)
22
W1010A
1
WASHER, CONICAL
ワッシャ 皿
M-3-L
23
2MGKPE000600
1
CAM FOLLOWER
カムフォロア
24
N1079B
1
NUT, HEX
ナット 六角
M04 P=0.7 1
シュ
(3
カシロ
)
25
W1106D
1
WASHER, LOCK
ワッシャ スプリング
4M/M(3
カ
シロ
)
26
PM91726
1
BAR, GUIDE
バー ガイド
27
2MGTPE022401
2
SCREW, HEX SOCKET COUNTERSUNK
小ネジ 六角穴皿
28
H2093K
2
PIN, PARALLEL
ピン 平行
φ04X08 B
種
(h8)
29
PM86773
1
PIN
ピン
30
2MGKPE000500
1
CAM FOLLOWER
カムフォロア
INT
30.1
K70374
1
CAM FOLLOWER
カムフォロア
CF3B
INT
31
N10793
1
NUT, HEX
ナット 六角
M03 P=0.5(3
カシロ
)
32
W1010A
1
WASHER, CONICAL
ワッシャ 皿
M-3-L
33
PM02DE2
1
PIN, ROLLER
ピン ローラ
34
PM26721
1
ROLLER
ローラ
35
PM02503
1
NUT
ナット
36
W1010A
1
WASHER, CONICAL
ワッシャ 皿
M-3-L
37
2MGTPE008400
1
PIN, ROLLER
ピン ローラ
38
2MGTPE003902
1
ROLLER
ローラ
39
2MGZPF000300
1
COVER
カバー
39.1
PX09153
1
NAMEPLATE
銘板
40
K5258E
2
SCREW, HEX SOCKET BUTTON
小ネジ 六角穴ボタン
M03X006(3
カ
シロ
)
40.1
W1106C
2
WASHER, LOCK
ワッシャ スプリング
3M/M(3
カ
シロ
)
41
PM04TA4
1
BKT, RAIL
BKT レール
INT
41.1
2MGTPE003203
1
BKT, RAIL
BKT レール
INT
42
H2093K
4
PIN, PARALLEL
ピン 平行
φ04X08 B
種
(h8)
44
H5426M
3
BOLT, HEX SOCKET
ボルト 六角穴
M04X012(3
カ
シロ
)
46
2MGKPE000500
2
CAM FOLLOWER
カムフォロア
INT
46.1
K70374
2
CAM FOLLOWER
カムフォロア
CF3B
INT
47
N10793
2
NUT, HEX
ナット 六角
M03 P=0.5(3
カシロ
)
48
W1106C
2
WASHER, LOCK
ワッシャ スプリング
3M/M(3
カ
シロ
)
49
PM51372
1
PIN, ROLLER
ピン ローラ
50
PM26721
1
ROLLER
ローラ
51
N10793
1
NUT, HEX
ナット 六角
M03 P=0.5(3
カシロ
)
52
W1010A
1
WASHER, CONICAL
ワッシャ 皿
M-3-L
53
2MGKPE000600
1
CAM FOLLOWER
カムフォロア
285
PTS-NXT3c-07

M6 IIIc-DEVICE PALLET 1/
(With bucket) 2UGZPF000239
M6 IIIc-デバイスパレット 1/
(Standard) 2UGZPF000135
No.
Drg.No. & Code No.
QTY
Description
Rating
Remarks
番号
図番
&
コード番号
個数
品名
規格
備考
54
N1079B
1
NUT, HEX
ナット 六角
M04 P=0.7 1
シュ
(3
カシロ
)
55
W1106D
1
WASHER, LOCK
ワッシャ スプリング
4M/M(3
カ
シロ
)
56
PP01864
1
DOG
ドッグ
57
H54252
2
BOLT, HEX SOCKET
ボルト 六角穴
M03X008(3
カ
シロ
)
58
W1106C
2
WASHER, LOCK
ワッシャ スプリング
3M/M(3
カ
シロ
)
59
PM91716
1
BAR, GUIDE
バー ガイド
60
2MGTPE022401
2
SCREW, HEX SOCKET COUNTERSUNK
小ネジ 六角穴皿
61
H2093K
2
PIN, PARALLEL
ピン 平行
φ04X08 B
種
(h8)
62
PM86773
1
PIN
ピン
63
2MGKPE000500
1
CAM FOLLOWER
カムフォロア
INT
63.1
K70374
1
CAM FOLLOWER
カムフォロア
CF3B
INT
64
N10793
1
NUT, HEX
ナット 六角
M03 P=0.5(3
カシロ
)
65
W1010A
1
WASHER, CONICAL
ワッシャ 皿
M-3-L
66
PM02DE2
1
PIN, ROLLER
ピン ローラ
67
PM26721
1
ROLLER
ローラ
68
PM02503
1
NUT
ナット
69
W1010A
1
WASHER, CONICAL
ワッシャ 皿
M-3-L
70
2MGTPE008400
1
PIN, ROLLER
ピン ローラ
71
2MGTPE003902
1
ROLLER
ローラ
72
PM0DRB8
1
PLATE
プレート
75
H5426S
11
BOLT, HEX SOCKET
ボルト 六角穴
M04X018(3
カ
シロ
)
76
W1011A
11
WASHER, CONICAL
ワッシャ 皿
M-4-L
77
PM35443
1
PIN, ROUND
ピン 丸
78
H5426L
1
BOLT, HEX SOCKET
ボルト 六角穴
M04X010(3
カ
シロ
)
79
W1106D
1
WASHER, LOCK
ワッシャ スプリング
4M/M(3
カ
シロ
)
80
W1043C
1
WASHER, FLAT
ワッシャ 平
4W- 4(3
カシロ
)
81
PM35453
1
PIN, DIAMOND-SHAPED
ピン ダイヤ
82
H5426L
1
BOLT, HEX SOCKET
ボルト 六角穴
M04X010(3
カ
シロ
)
83
W1106D
1
WASHER, LOCK
ワッシャ スプリング
4M/M(3
カ
シロ
)
84
W1043C
1
WASHER, FLAT
ワッシャ 平
4W- 4(3
カシロ
)
85
XP00133
90
PIN
ピン
86
H2093K
1
PIN, PARALLEL
ピン 平行
φ04X08 B
種
(h8)
92
2MGTPF002501
1
PLATE
プレート
93
K51982
3
SCREW, WASHER ASS'Y
小ネジ 座金組込み
M03X008
ナベセムス
P3(3
カシロ
)
95
2MGTPF002400
1
PLATE
プレート
96
K51982
4
SCREW, WASHER ASS'Y
小ネジ 座金組込み
M03X008
ナベセムス
P3(3
カシロ
)
97
2MGTPF002600
1
SHEET
シート
98
K5199Z
4
SCREW, WASHER ASS'Y
小ネジ 座金組込み
M03X010
ナベセムス
P4(3
カシロ
)
99
S68475
4
SPACER
スペーサ
LSB-315-10E
100
S3228X
8
SPACER
スペーサ
BSB-315E
101
2MGTPF025201
1
COVER
カバー
102
K51981
4
SCREW, WASHER ASS'Y
小ネジ 座金組込み
M03X006
ナベセムス
P4(3
カシロ
)
104
2AGTPF000212
1
BOARD, PRINTED CIRCUIT
基板 プリント
FH1688E0F
106
2MGTPE003400
1
BASE
ベース
107
H5426W
2
BOLT, HEX SOCKET
ボルト 六角穴
M04X022(3
カ
シロ
)
108
W1106D
2
WASHER, LOCK
ワッシャ スプリング
4M/M(3
カ
シロ
)
109
2MGTPE017401
1
PLATE
プレート
110
K1185W
1
GUIDE, RAIL
ガイド レール
PU120070TRK1K31PN0
INT
110.1
K67236
1
GUIDE, RAIL
ガイド レール
PMN12C1R70Z0CM
INT
110.2
K72476
1
GUIDE, RAIL
ガイド レール
LMBM12-B1+70
INT
111
H54252
3
BOLT, HEX SOCKET
ボルト 六角穴
M03X008(3
カ
シロ
)
286
PTS-NXT3c-07