PTS-NXT3c-07 - 第298页
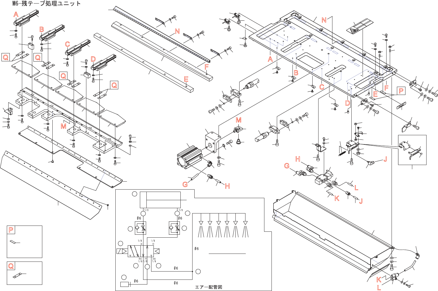
J J A B C D A B C D E F G H H G K L M M K L N Air blow PNEUMATIC CIRCUIT DIAGRAM F N P Q P Q Q Q Q E 1 3 4 5 6 7 7 8 8 9 9 11 12 12 14 14 15 15 16 16 17 17 18 18 19 19 21 22 22 23 23 35 36 39 40 38 41 42 42 46 47 47.1 48…

M3-WASTE TAPE PROCESSING UNIT
M3-残テープ処理ユニット
2UGTPK000217
No.
Drg.No. & Code No.
QTY
Description
Rating
Remarks
番号
図番
&
コード番号
個数
品名
規格
備考
112
H5426T
1
BOLT, HEX SOCKET
ボルト 六角穴
M04X020(3
カ
シロ
)
113
W1106D
1
WASHER, LOCK
ワッシャ スプリング
4M/M(3
カ
シロ
)
114
W1108S
1
WASHER, FLAT
ワッシャ 平
4M/MX0.8X9(1W-4)(3
カシロ
)
116
2MGTPK009000
1
TUBE
チューブ
117
Y60199
1
UNION, ELBOW
ユニオン エルボ
KQ2L06-M5A
121
2AGKPK000205
1
BRUSH
ブラシ
122
2MGKPL002001
1
SEAL
シール
123
2MGTPK009400
1
BKT, COVER
BKT カバー
124
K5172C
7
SCREW, C/R TRUSS
小ネジ 十穴トラス
M03X003(3
カ
シロ
)
131
S2025A
3
SHEET
シート
CTAM1
132
S2025B
1
SHEET
シート
AB-2N
133
K5172L
4
SCREW, C/R TRUSS
小ネジ 十穴トラス
M04X006(3
カ
シロ
)
141
2MGKPK002100
1
SHIM
シム
t=0.02
142
2MGKPK002200
1
SHIM
シム
t=0.05
143
2MGKPK002300
1
SHIM
シム
t=0.08
144
2MGKPK002400
1
SHIM
シム
t=0.10
145
2MGTPK004500
1
SHIM
シム
t=0.06
146
2MGKPK011300
1
SHIM
シム
t=0.04
147
2MGKPK021000
1
SHIM
シム
t=0.03
148
2MGKPK021100
1
SHIM
シム
t=0.07
149
2MGKPK021200
1
SHIM
シム
t=0.09
151
2MGKPK011900
1
SHIM
シム
t=0.02
152
2MGKPK012000
1
SHIM
シム
t=0.05
153
2MGKPK012200
1
SHIM
シム
t=0.04
154
2MGTPK004600
1
SHIM
シム
t=0.06
155
2MGKPK021300
1
SHIM
シム
t=0.03
156
2MGKPK021400
1
SHIM
シム
t=0.07
157
2MGKPK021500
1
SHIM
シム
t=0.09
158
2MGKPK021600
1
SHIM
シム
t=0.08
159
2MGKPK021700
1
SHIM
シム
t=0.10
161
2MGKPK001700
1
SHIM
シム
t=0.02
162
PB017Y1
1
SHIM
シム
t=0.05
297
PTS-NXT3c-07

J
J
A
B
C
D
A
B
C
D
E
F
G
H
H
G
K
L
M
M
K
L
N
Air blow
PNEUMATIC CIRCUIT DIAGRAM
F
N
P
Q
P
Q
Q
Q
Q
E
1
3
4
5
6
7
7
8
8
9
9
11
12
12
14
14
15
15
16
16
17
17
18
18
19
19
21
22
22
23
23
35
36
39
40
38
41
42
42
46
47
47.1
48
49
50
51
52
53
54
55
56
57
58
59
60
64
65
67
68
73
80
81
82
81
82
81
82
81
82
83
84
85
85
85
85
85
86
11
6
70
61
62
63
30
31
32
34
24
24
25
25
3
4
5
26
27
29
43
43
93
94
71
72
69
100
101
102
102.1
110
114
112
115
113
87
88
87
88
87
88
87
88
89
90
92
95
96
97
98
99
108
109
111
103
104
105
106
107
121
121
121
121
122
123
123
123
123
123
105
106
107
105
106
107
116
115
110
41
46
54
55
56
43 43
38
41
43
117
118
133
134
135
131
132
138
139
136
137
141
142
86
86
86
43
45
41
33
86.1
86.1
86.1
86.1
M6-WASTE TAPE PROCESSING UNIT
2UGTPL000216
298
PTS-NXT3c-07
M
6
-
残亍一
"
7
°
処理
1
二
、
:
/
卜
A
-
S
P
Q

M6-WASTE TAPE PROCESSING UNIT
M6-残テープ処理ユニット
2UGTPL000216
No.
Drg.No. & Code No.
QTY
Description
Rating
Remarks
番号
図番
&
コード番号
個数
品名
規格
備考
1
2MGTPL001103
1
PLATE
プレート
3
N1079Y
4
NUT, HEX
ナット 六角
M05 3
シュ
(3
カシロ
)
4
N60002
4
SCREW, HEX SOCKET SET
ネジ 六角穴止め
M05X016
ヒラサキ
5
K64998
10
SCREW, HEX SOCKET BUTTON
小ネジ 六角穴ボタン
M06X018(3
カ
シロ
)
6
W1013A
10
WASHER, CONICAL
ワッシャ 皿
M- 6-H
7
H60491
2
PIN, PARALLEL
ピン 平行
φ06X10 A
種
(m6)
8
S69233
2
SENSOR, PHOTO
センサ フォト
PM-L45-P
9
K51993
4
SCREW, WASHER ASS'Y
小ネジ 座金組込み
M03X012
ナベセムス
P4(3
カ
シロ
)
11
PM0HLE0
2
BKT, STOPPER
BKT ストッパ
12
H5427C
4
BOLT, HEX SOCKET
ボルト 六角穴
M05X015(3
カ
シロ
)
14
2MGTPK005001
2
ABSORBER, SHOCK
アブソーバ ショック
15
PG07050
2
PLATE, STOPPER
プレート ストッパ
16
PM36281
4
COLLAR
カラー
17
H54253
4
BOLT, HEX SOCKET
ボルト 六角穴
M03X010(3
カ
シロ
)
18
W1106C
4
WASHER, LOCK
ワッシャ スプリング
3M/M(3
カ
シロ
)
19
W1108B
4
WASHER, FLAT
ワッシャ 平
3M/MX0.5X7(3
カシロ
)
21
2MGTPK003900
1
PLATE, LOCATING
プレート 位置決め
22
H5426M
2
BOLT, HEX SOCKET
ボルト 六角穴
M04X012(3
カ
シロ
)
23
W1106D
2
WASHER, LOCK
ワッシャ スプリング
4M/M(3
カ
シロ
)
24
W1043C
2
WASHER, FLAT
ワッシャ 平
4W- 4(3
カシロ
)
25
2MGTPK000102
2
BOLT, POSITIONING
ボルト 位置決め
26
2MGTPK004100
1
BKT
BKT
T parts
27
2MGTPK002900
1
BOLT, HEX SOCKET
ボルト 六角穴
29
2MGTPK004000
1
PLATE, LOCATING
プレート 位置決め
30
2MGTPK002900
1
BOLT, HEX SOCKET
ボルト 六角穴
31
W1106E
1
WASHER, LOCK
ワッシャ スプリング
5M/M(3
カ
シロ
)
32
W1108E
1
WASHER, FLAT
ワッシャ 平
4W-5(3
カ
シロ
)
33
2MGTPL000400
1
SEAL, BAR CODE
シール バーコード
unit serial number
34
2MGKPL002001
1
SEAL
シール
35
PB07RT1
1
BKT, VALVE
BKT バルブ
36
H5426K
2
BOLT, HEX SOCKET
ボルト 六角穴
M04X008(3
カ
シロ
)
38
H13362
1
VALVE, SOL
バルブ SOL
SY5120-5MOZ-01
39
K5258E
2
SCREW, HEX SOCKET BUTTON
小ネジ 六角穴ボタン
M03X006(3
カ
シロ
)
40
W1106C
2
WASHER, LOCK
ワッシャ スプリング
3M/M(3
カ
シロ
)
41
K72461
2
CONTROLLER, SPEED
コントローラ スピード
AS2311F-01-06SA
42
PZ07811
2
TUBE
チューブ
43
Y60335
3
UNION, HALF
ユニオン ハーフ
KQ2H06-01AS
45
2MGTPL009900
1
TUBE
チューブ
46
H3149W
1
PLUG, COUPLER
プラグ カプラ
MC-06PCL
47
2MGKPL004606
1
COVER
カバー
47.1
2MGTPK001502
1
BRUSH
ブラシ
48
H54251
4
BOLT, HEX SOCKET
ボルト 六角穴
M03X006(3
カ
シロ
)
49
W1106C
4
WASHER, LOCK
ワッシャ スプリング
3M/M(3
カ
シロ
)
50
W1108B
4
WASHER, FLAT
ワッシャ 平
3M/MX0.5X7(3
カシロ
)
51
2MGTPK000700
1
BKT, CYLINDER
BKT シリンダ
52
H5425C
2
BOLT, HEX SOCKET
ボルト 六角穴
M06X012(3
カシロ
)
53
W1013A
2
WASHER, CONICAL
ワッシャ 皿
M- 6-H
54
S60016
1
CYLINDER, AIR
シリンダ エアー
CQ2A40-60Z-DCM353EM
55
Y60192
1
UNION, ELBOW
ユニオン エルボ
KQ2L06-01AS
56
Y60335
1
UNION, HALF
ユニオン ハーフ
KQ2H06-01AS
57
2MGTPK002000
1
JOINT
ジョイント
299
PTS-NXT3c-07