PTS-NXT3c-07 - 第437页
M3 IIIc-DOUBLE CONVEY OR 3/ M3 II Ic-ダブ ルコン ベア 3 / 2UGZCB00 0128 No. Drg.No. & Cod e No. QT Y Description Ra ting Re marks 番号 図番 & コード番号 個数 品名 規格 備考 1 2MGTC B015700 1 PL ATE, RETAINING プレー ト 押 え 2 2MGTC F004501 …

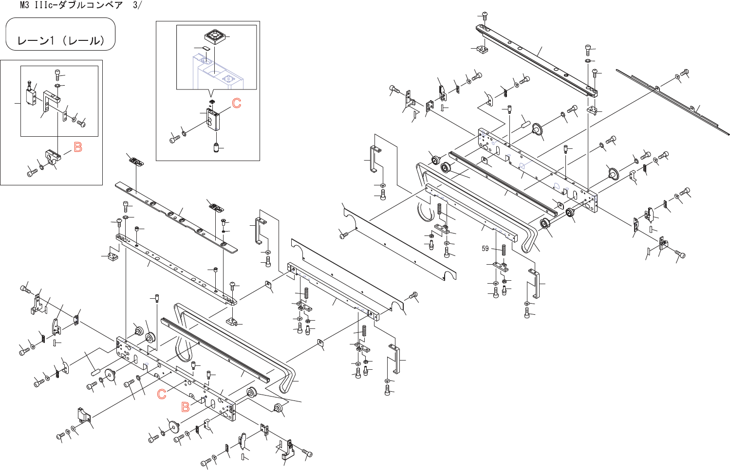
Lane1 (rail)
B
B
C
C
4
1
5
6
7
8
9
11
12
12
9
44
18
21
33
73
73
73
34
31
42
45
46
33
34
31
35
38
55
56
57
56
57
59
59
48
55
35
73
11
52
53
51
31
33
34
45
46
43
8
44
31
33
34
18
48
55
56
57
59
55
57
56
4
68
68
96
97
95
62
63
61
62
63
61
4
15
41
39
22
24
98
100
99
101
102
36
37
19
20
40
23
62
63
61
62
63
61
32
32
32
32
80
81
79
111
112
110
115
118
116
4
4
120
121
122
123
15
2
3
58
58.1
58
58.1
58
58.1
58
58.1
5.1
16.1
16.1
16.1
16.1
47.1
47.1
51.1
95.1
110.1
74
75
76
74
75
76
74
75
76
74
75
76
105
47
47
16
17
17
16
16
17
17
16
27
28
25
25
27
28
27
28
27
28
49
50
49
50
14
14
103
104
26.1
26
26.1
26
25
25
29
29
29
29
8.1
8.1
11.1
11.1
2UGZCB000128
M3 IIIc-DOUBLE CONVEYOR 3/
436
PTS-NXT3c-07
M
3
IIIc
-
^
'
^
;
U
=
i
>
^
7
3
/
l
^
-
>
1
{
\
y
—
)
D

M3 IIIc-DOUBLE CONVEYOR 3/
M3 IIIc-ダブルコンベア 3/
2UGZCB000128
No.
Drg.No. & Code No.
QTY
Description
Rating
Remarks
番号
図番
&
コード番号
個数
品名
規格
備考
1
2MGTCB015700
1
PLATE, RETAINING
プレート 押え
2
2MGTCF004501
6
BOLT
ボルト
3
2MGTCF000400
6
COLLAR
カラー
4
PM23709
5
PIN, REFERENCE
ピン 基準
5
PM085L6
1
RAIL
レール
5.1
PM09WC4
1
RAIL
レール
Thin panel option
6
H5289A
4
BOLT, HEX SOCKET
ボルト 六角穴
M04X012
7
W1011A
4
WASHER, CONICAL
ワッシャ 皿
M-4-L
8
PT01225
2
GUIDE
ガイド
8.1
2MGZCA004801
2
GUIDE
ガイド
For ceramic substrate
9
K5255T
4
SCREW, HEX SOCKET BUTTON
小ネジ 六角穴ボタン
M03X006
11
PT01214
2
GUIDE
ガイド
11.1
2MGZCA004701
2
GUIDE
ガイド
For ceramic substrate
12
K5255T
4
SCREW, HEX SOCKET BUTTON
小ネジ 六角穴ボタン
M03X006
14
H3170B
2
PLUNGER, BALL
プランジャ ボール
SBP-4
15
2MGTCA001000
2
SEAL
シール
16
2AGTCA000703
4
PULLEY
プーリ
16.1
AB07601
4
PULLEY
プーリ
Thin panel option
17
2AGTCA000603
4
PULLEY
プーリ
18
PM92403
2
BKT, SENSOR
BKT センサ
19
2MGTCA004801
1
GUIDE
ガイド
20
PS03151
1
SHEET
シート
Consumable Parts
21
H67813
2
BOLT, HEX SOCKET
ボルト 六角穴
M03X008
テイトウ
(3
カ
シロ
)
22
2MGTCA005100
1
GUIDE
ガイド
23
PS03151
1
SHEET
シート
Consumable Parts
24
H67813
2
BOLT, HEX SOCKET
ボルト 六角穴
M03X008
テイトウ
(3
カ
シロ
)
25
2MGTCA002600
2
SENSOR, FIBER
センサ ファイバ
SET
26
T63140
2
TUBE, MARKER
チューブ マーカ
φ2.8(
内径
)X0.4(
キイロ
)
26.1
T63141
2
TUBE, MARKER
チューブ マーカ
φ2.8(
内径
)X0.4(
シロ
)
27
H54250
8
BOLT, HEX SOCKET
ボルト 六角穴
M03X005(3
カ
シロ
)
28
W1106C
8
WASHER, LOCK
ワッシャ スプリング
3M/M(3
カ
シロ
)
29
2MGKCA031200
4
PLATE
プレート
31
PM05AC1
4
GUIDE
ガイド
32
PP02472
4
SPACER
スペーサ
33
H54254
4
BOLT, HEX SOCKET
ボルト 六角穴
M03X012(3
カ
シロ
)
34
W1010A
4
WASHER, CONICAL
ワッシャ 皿
M-3-L
35
PM92393
2
BKT, SENSOR
BKT センサ
36
2MGTCA004901
1
GUIDE
ガイド
37
PS03151
1
SHEET
シート
Consumable Parts
38
H67813
2
BOLT, HEX SOCKET
ボルト 六角穴
M03X008
テイトウ
(3
カ
シロ
)
39
2MGTCA005000
1
GUIDE
ガイド
40
PS03151
1
SHEET
シート
Consumable Parts
41
H67813
2
BOLT, HEX SOCKET
ボルト 六角穴
M03X008
テイトウ
(3
カ
シロ
)
42
PM050M6
1
PLATE
プレート
43
2MGTCB004500
1
PLATE
プレート
44
2MGKCA024003
2
GUIDE, BELT
ガイド ベルト
45
H5426L
8
BOLT, HEX SOCKET
ボルト 六角穴
M04X010(3
カ
シロ
)
46
W1011A
8
WASHER, CONICAL
ワッシャ 皿
M-4-L
47
2MGKCA025601
2
CONVEYOR, BELT
コンベア ベルト
47.1
2MGKCA026102
2
CONVEYOR, BELT
コンベア ベルト
Thin panel option
48
PM059T4
2
PLATE, GUIDE
プレート ガイド
437
PTS-NXT3c-07

M3 IIIc-DOUBLE CONVEYOR 3/
M3 IIIc-ダブルコンベア 3/
2UGZCB000128
No.
Drg.No. & Code No.
QTY
Description
Rating
Remarks
番号
図番
&
コード番号
個数
品名
規格
備考
49
2MGTCB005601
2
PLATE, CLAMPING
プレート クランプ
50
K5255A
8
SCREW, HEX SOCKET BUTTON
小ネジ 六角穴ボタン
M03X004
51
2MGTCB015800
1
RAIL
レール
51.1
2MGTCB016100
1
RAIL
レール
Thin panel option
52
H5289A
4
BOLT, HEX SOCKET
ボルト 六角穴
M04X012
53
W1011A
4
WASHER, CONICAL
ワッシャ 皿
M-4-L
55
PM05AD2
4
PLATE
プレート
56
H54252
8
BOLT, HEX SOCKET
ボルト 六角穴
M03X008(3
カ
シロ
)
57
W1106C
8
WASHER, LOCK
ワッシャ スプリング
3M/M(3
カ
シロ
)
58
2MGKCA042000
4
BOLT, STOPPER
ボルト ストッパ
58.1
N1079X
4
NUT, HEX
ナット 六角
M04 3
シュ
(3
カ
シロ
)
59
PZ14451
4
SPRING
スプリング
61
PB90253
4
HOOK
フック
62
H54252
8
BOLT, HEX SOCKET
ボルト 六角穴
M03X008(3
カ
シロ
)
63
W1106C
8
WASHER, LOCK
ワッシャ スプリング
3M/M(3
カ
シロ
)
68
2MGKCA006501
2
PIN
ピン
73
2MGTCA006100
4
BLOCK, LOCATING
ブロック 位置決め
74
H54252
8
BOLT, HEX SOCKET
ボルト 六角穴
M03X008(3
カ
シロ
)
75
W1106C
8
WASHER, LOCK
ワッシャ スプリング
3M/M(3
カ
シロ
)
76
2MGKCA031200
4
PLATE
プレート
79
PP02490
1
COVER, WIRING
カバー 配線
80
K5258E
2
SCREW, HEX SOCKET BUTTON
小ネジ 六角穴ボタン
M03X006(3
カ
シロ
)
81
W1106C
2
WASHER, LOCK
ワッシャ スプリング
3M/M(3
カ
シロ
)
95
PM057F2
1
BKT, SENSOR
BKT センサ
95.1
PM09WG0
1
BKT, SENSOR
BKT センサ
Thin panel option
96
H5426L
2
BOLT, HEX SOCKET
ボルト 六角穴
M04X010(3
カ
シロ
)
97
W1011A
2
WASHER, CONICAL
ワッシャ 皿
M-4-L
98
PM057E4
1
BKT, SENSOR
BKT センサ
99
PB12715
1
WASHER
ワッシャ
100
XS01249
1
SENSOR, TOUCH
センサ タッチ
101
K5258N
2
SCREW, HEX SOCKET BUTTON
小ネジ 六角穴ボタン
M04X012(3
カ
シロ
)
102
W1106D
2
WASHER, LOCK
ワッシャ スプリング
4M/M(3
カ
シロ
)
103
H54252
2
BOLT, HEX SOCKET
ボルト 六角穴
M03X008(3
カ
シロ
)
104
W1010A
2
WASHER, CONICAL
ワッシャ 皿
M-3-L
105
AA7GE09
1
SENSOR
センサ
110
AA86N07
1
JIG
治具
110.1
AA7TG12
1
JIG
治具
Thin panel option
111
H5426L
2
BOLT, HEX SOCKET
ボルト 六角穴
M04X010(3
カ
シロ
)
112
W1011A
2
WASHER, CONICAL
ワッシャ 皿
M-4-L
115
Y60183
1
UNION, HALF
ユニオン ハーフ
KQ2S04-M5A
116
AA7SA00
1
TIP
チップ
118
GGAJ0403
1
GAUGE
ゲージ
120
2AGKGP001004
1
BLOCK, REFERENCE
ブロック 基準
121
K5258F
2
SCREW, HEX SOCKET BUTTON
小ネジ 六角穴ボタン
M03X008(3
カ
シロ
)
122
W1106C
2
WASHER, LOCK
ワッシャ スプリング
3M/M(3
カ
シロ
)
123
W1108B
2
WASHER, FLAT
ワッシャ 平
3M/MX0.5X7(3
カシロ
)
438
PTS-NXT3c-07