PTS-NXT3c-07 - 第642页
2 3 1 4 5 6 5 6 5 5 6 6 5 6 7 7 7 7 8 8 8 8 8 8 8 8 7 8 8 7 8 8 9 10 10 1 1 12 10 10 10 10 12 12 12 12 12 BUCKET AA54K07 642 PTS-NXT3c-07 / 、 ' 々 ■ 、 : / 卜

JIG
治具
UX04416
No.
Drg.No. & Code No.
QTY
Description
Rating
Remarks
番号
図番
&
コード番号
個数
品名
規格
備考
99
K5357X
2
SCREW, HEX SOCKET COUNTERSUNK
小ネジ 六角穴皿
M03X008(3
カ
シロ
)
100
N10793
2
NUT, HEX
ナット 六角
M03 P=0.5(3
カシロ
)
101
W1106C
2
WASHER, LOCK
ワッシャ スプリング
3M/M(3
カ
シロ
)
102
PZ39000
1
COVER
カバー
103
RH02452
1
HARNESS
ハーネス
104
PX08370
1
SEAL, BAR CODE
シール バーコード
unit serial number
105
PM07YY1
1
BOSS
ボス
106
K13212
1
COLLAR
カラー
FWTAM-D13-M3-T12.5
107
W1092S
1
WASHER
ワッシャ
WSSM8-4-1
108
K5357X
2
SCREW, HEX SOCKET COUNTERSUNK
小ネジ 六角穴皿
M03X008(3
カ
シロ
)
641
PTS-NXT3c-07

2
3
1
4
5
6
5
6
5
5
6
6
5
6
7
7
7
7
8
8
8
8
8
8
8
8
7
8
8
7
8
8
9
10
10
11
12
10
10
10
10
12
12
12
12
12
BUCKET
AA54K07
642
PTS-NXT3c-07
/
、
'
々
■
、
:
/
卜

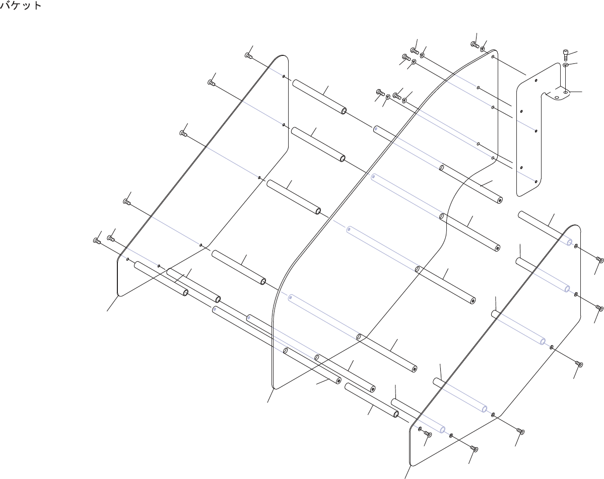
BUCKET
バケット
AA54K07
No.
Drg.No. & Code No.
QTY
Description
Rating
Remarks
番号
図番
&
コード番号
個数
品名
規格
備考
1
PB78591
1
BKT
BKT
2
H5427C
2
BOLT, HEX SOCKET
ボルト 六角穴
M05X015(3
カ
シロ
)
3
W1106E
2
WASHER, LOCK
ワッシャ スプリング
5M/M(3
カ
シロ
)
4
2MDLFW011300
1
PLATE
プレート
5
K5258L
5
SCREW, HEX SOCKET BUTTON
小ネジ 六角穴ボタン
M04X008(3
カ
シロ
)
6
W1106D
5
WASHER, LOCK
ワッシャ スプリング
4M/M(3
カ
シロ
)
7
PM02MF3
6
SHAFT, ARM
シヤフト アーム
8
PM80861
12
COLLAR
カラー
9
2MDLFW011200
1
PLATE, SIDE
プレート サイド
10
K5357L
6
SCREW, HEX SOCKET COUNTERSUNK
小ネジ 六角穴皿
M03X006(3
カ
シロ
)
11
2MDLFW011100
1
PLATE, SIDE
プレート サイド
12
K5357L
6
SCREW, HEX SOCKET COUNTERSUNK
小ネジ 六角穴皿
M03X006(3
カ
シロ
)
643
PTS-NXT3c-07