DECAN_L2_TRM(Ver4.2_CS20.07) - 第182页
Page +$1:+$ 178 DECAN L2 Harness Wiring Diagram (1/8) FLA T CABLE TB1-3C TB1-8C TOWER LAMP FL Y CAMERA1~6 SM471_VIS01 1 G LOCK R S T M E E CHANGE F/FEEDER RESET 0N STOP START READY E O P C N Y RESET F/FEEDER CHANGE STOP …

Page
+$1:+$
177
DECAN
L2

Page
+$1:+$
178
DECAN
L2
Harness Wiring Diagram (1/8)
FLAT CABLE
TB1-3C
TB1-8C
TOWER LAMP
FLY CAMERA1~6
SM471_VIS011
G
LOCK
R
S
T
M
E
E
CHANGE
F/FEEDER
RESET
0N
STOP
START
READY
E
O
P
C
N
Y
RESET
F/FEEDER
CHANGE
STOP
START
READY
P
O
T
S
Y
N
C
E
E
E
M
R
G
<FRONT-OP> <REAR-OP>
LOCK
0N
CPCI 6U RACK
COM1/2USBVGA1 COM3/4
PC-232 SERIAL
SBC
<FRONT>
<REAR>
PCIE ADAPTER
PCIE X1
PCIE X1
PCIE X1
AXIO B/D #1-CN1
AXIO B/D #2-CN1
AXIO B/D #3-CN1
SM511_KV003-3
USB HUB
SM511-PC005
SM511-PC006
NT-A8 #1
NT-A8 #2
PC POWER SUPPLY
SM511_PC003
SM511_KV003-2
SAFETY CONTROL B/D
CN30
CN3
F-OP
CN31
CN3
R-OP
[SC]
CN34
T-BOX
FRONT
CN36
T-BOX
REAR
SM511_CV023-5
P1 P2
COM1
COM2
COM3
COM4
COM5
CN4 CN9
PWR(12V)
AXIO#1-CN2
AXIO #2 B/D-CN2
SM511C_VIS012
SM400 VISION IF B/D
CN1
CN1
FIDUCIAL CAMERA
SM400 CAMERA IO B/D#1
[FLY1]
CN1CN3
SM511C_VIS001-1
CN6CN8
SM511_VIS003-1
SM511_VIS005
SM511_VIS007
CN5
SM511_VIS008
CN10
SM511_VIS010
SM511_FD001-18
SM511_FL002-16.17
SM511_FL001-16.17
DECAN_VIS009
IT MASTER
CN1(12V)
SM511_VIS000
SM511C_VIS012-2
SM471_VIS002-1
DECAN_VIS006
FLY CAMERA1~6
FIDUCIAL CAMERA
HEAD1 HEAD2
CN11
CN1
입력
CN10
CN11
CN21
CN27
CN28
CN25
CN26
CN2 CN7
HD1-CN1
HD2-CN1
CONV I/F B/D
[CV]
SM511_CV132
[SUB]
CONV.SUB I/F B/D
CN32
CN28
SM511_CV003
CN6
CN1
CN18
CN3
SM511_CV113
CN17
CN2
START,FFD,RFD
CN7
SM511_PW127
CN4
CN2
SM511_OP103
START,STOP,RESET,FFD
CN5
SM511_OP104
START,STOP,RESET,FFD
CN2
SM33_OP005
SM33_OP005
CN7
CN13
SM511_CV104
CN8
SM511_CV126
SM511_CV126-1
M
1
2
OUT
AIR SENSOR
CN29
CN3
CN1
CN4
CN1
CN6
CN13
EM,READY,DOOR,FSO
[VIS]
CN24
FL1-15
FL1-15
SM511_FD002-18
121234 5
CN18
MC1
21
22
+A1
-A2
CN19
SM41_SC006
SM511C_VIS001-2
SM471_VIS002-2
SM511_VIS003-2
J4R-3
J4R-4
J9L-3
J9L-4
SM511_CV104-1
J6R-2
SM48_CV026-1
J11L-2
SM511_CV023-4
J6R-3
J6R-4
J11L-3
J11L-4
SM511_OP104-1
SM511_OP001
SM511_OP001
SM511_PC003-1
T6L(9.10)
T6L(7.8)
SM471_PW067
220V PWR
SM511_SC105
SM511_SC105-1
SM471_SC007-1
AXIO#3-CN2
FRONT R DRIVER-PW
21/22
JUMPER
SM471_VIS011
P1 P2
COM1
COM2
COM3
COM4
COM5
SM400 CAMERA IO B/D#2
[FLY2]
DECAN_VIS009
SM471_VIS002-1
DECAN_VIS006
1212345
SM471_VIS002-2
SM511_VM111 SM511_VM111-1
REAR PANEL LAN PORT
SM511_PW149-1
FFD-CN4
SM511_IT005
PWR
SM511_IT004
CAN
J1R
CN26 CN27
J1R-3
J1R-4
SM511_FD101-1
SM511-SC001
SM511-SC002
SM511_SC122
SM511_SC123
SM511_SC007-2
SM511-SC007-3
SM511_SC120
SM511_SC121
CN33
CN35
CN20
CN22
RFD-CN4
SC-J1R
CN4
SM511_SC204
F/R T-BOX HOST
SM511_CV034
SM511_CV035
SM511_CV101
F.R-DRV-PW
DECAN_SC111-2
HD1-PW
PWR(24V)
PWR(24V)
PWR(24V)
FFD-PWR
SM511_FD101
PWR(24V)
PWR(24V)
PWR(24V)
HD2-PW
R.R-DRV-PW
VGA
VGA
SM511_CA202
TW-LP
TW-BZ
J9LJ4R
PC-232-EXT
LAN-EXT
R-PW-PANEL
DOOR.FFD.READY.START
DSTOP.RESET SW
J6R
SM511_CV202
J11L
AIRSEN
SM511_CV202
(DC BRK)
FLY1-PWFLY-PW
FLY-CAM FLY1-CAM
FID1-CAM1
FID1-CAM2
F.Y-BRK
F.HD-BRK R.HD-BRK
R.Y-BRK
FID-CAM1
FID-CAM2
FLY2-PWFLY-PW
FLY-CAM FLY2-CAM
FID2-CAM1
FID2-CAM2
FID-CAM1
FID-CAM2
PWR(24V)
PWR(24V)
PWR(24V)
F.XY M O D U L E
R.XY MODULE
13
14
(24G)
(+24V)
CN23
SAFEGUARD OVERRIDE KEY
AX-CN1
SM511-SC009
SM511_AX001
CN5
CN-FSO
SM33_SC008
PS1+24V
PS1-24G
PS2+24V
PS2-24G
T6L
PS1
PS2
PS2+24V
PS2-24G
PS2
CAN
SC-EN1
VGA2
CN6
SM511_PW020
LEFT-FAN
CN7
SM511_PW021
RIGHT-FAN
RIGHT LEFT
SM471_PW022
SUB-CN6/7
15S
15S
15S
15S
15S
15S
15S
15S
15P
9P
15P
9P
15P
9P
15P
9P
JST 20P
DECAN_SC111-2
J1R-1
J1R-2
PWR(24V)
Molex 2p
Molex 2p
(HEAD AMP)
F ERROR LAMP
V1+_BASE_343
F-OW-LAMP
PWR
PWR
SM51-1_CV101-1
CV-RFD-PWR
5557-10R/5559-10P
X
X
⓸䇭⽀⢰䁇 㻈ᴴ
MULTIPORT
LAN1
F BARCODR
SM511_IT001
R BARCODR
SM511_IT003
OPTION
SCAN
L/R-CN1
ADAPTOR
RELAY-BK2
SM511_PW149
RY11
RELAY-BK1-5
SM511-PW033
6
4
(+24V)
(+24V)
RY1
SM511_PW148
SM511_PW202
CN2
입력
SC-EN2
RELAY-BK1-4
SM511-PW032
6
4
(+24V)
(+24V)
RY2
SM511_PW149
SM511_PW202
SM511_PW127
JST 20P
SM511_FD001-18
SM511_FL002-16.17
SM511_FL001-16.17
SM511_FD002-18
㩅䑄
HD1
HD2
CN3
CN2
CN1
FAN
RACK FAN
RACK-FAN-EXT
CV-CN16
SM511_CV109-3
SM511_CV109-1
COM6
6
COM6
6
REAR R DRIVER-PW
FRONT FEEDER BASE RIGHT B/D
JK1 JK2 JK3 JK4 JK5 JK6
JK7 JK8 JK9 JK10 JK11 JK12
JJ1 JJ2 JJ3 JJ4 JJ5 JJ6
JJ7 JJ8 JJ9 JJ10 JJ11 JJ12
AM03-000765A
AM03-000764A
CAN
PWR
CAN
PWR
FRONT FEEDER BASE LEFT B/D
CAN_CH1_L
CAN_CH2_R
SM_FD023
SM_FD022
AM03-000765A
AM03-000764A
SM_FD023
SM_FD022
REAR FEEDER BASE RIGHT B/D
JK1 JK2 JK3 JK4 JK5 JK6
JK7 JK8 JK9 JK10 JK11 JK12
JJ1 JJ2 JJ3 JJ4 JJ5 JJ6
JJ7 JJ8 JJ9 JJ10 JJ11 JJ12
CAN
PWR
CAN
PWR
REAR FEEDER BASE LEFT B/D
CAN_CH3_L
CAN_CH4_R

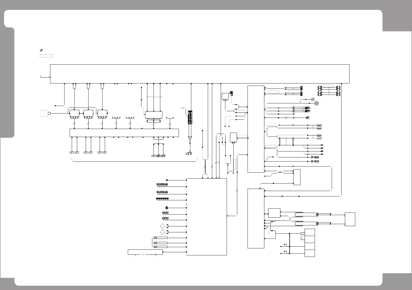
Page
+$1:+$
179
DECAN
L2
Harness Wiring Diagram (2/8)
F-FEEDER I/F
BOARD
CONVEYOR I/F
BOARD
DECAN HEAD IF B/D
CN5
CN6
CAN
CN4
CN2
SM_FD004
SM_FD003
SM_FD005
SM511_FD101
SM_FD007
SM_FD006
FEEDER INPUT
CN3
CN2
EXT.BOARD
CN11
CN21
Z12 AMP
FLAT CABLE
Front R DRIVER
Z1 Z2 Z3 Z4
CN11
(50W)
F.SW
AXIS IO BOARD #2
[AXIO#2]
CN12
SM471_VM009-1
CN5
CN6
CN3 CN1
CN10
CN4 CN2
CN13
CN14
CN5
CN6
CN3 CN1 CN4 CN2
Z5 Z6
CN15 CN16
CN5
CN6
CN3 CN1 CN4 CN2
CN17 CN18 CN19 CN20
CN22 CN23 CN26
CN5
CN2
PWR
SACO-CN28
CN3
CAN
DECAN_VM011
[FFD]
SM471_VM009-2
CN10
SM511_VM009-3
CN10
SM511_PW031
[HD1]
CN1
[CV]
[FD_EXT]
CN13
SM511_PW148
SM_FD025
SM_FD024
CAN
PWR
CAN
PWR
SM511_CA104
F-HD-CAN
SM511_CA102
CN9
CN20
SM511_CV106-1
INLINE BEFORE(F)
CN16
RANC-EXT
R-ANC
CN19
SM511_CV131
CRASH-SEN
CRASH SENSOR
CN1
FRONT MOTOR IF B/D
[FMOT]
CN11
Z34 AMP Z56 AMP
CN12 CN13 CN14 CN15 CN23 CN21
CN24 CN25
CN22
R12 R34 R56
CN19 CN20CN18CN17CN16
CN7 CN9
CN1
CN6 CN2 CN7 CN3 CN8 CN4 CN9 CN5 CN10 CN24
DECAN_MD019
DECAN_MD020
DECAN_MD021
DECAN_MD022
DECAN_MD023
DECAN_MD024
SM471_MD038
SM471_MD039
SM471_MD040
FSW-EN
FSW-PWR
DECAN_MD039
SM511_FL001-6.7
SM471_PW016
FRONT
CAN
CN2
CAN
CN7
JK1 JK2 JK3 JK4 JK5 JK6
JK7 JK8 JK9 JK10 JK11 JK12
JJ1 JJ2 JJ3 JJ4 JJ5 JJ6
JJ7 JJ8 JJ9 JJ10 JJ11 JJ12
FRONT FEEDER BASE LEFT B/D
FRONT FEEDER BASE RIGHT B/D
FD-CN7
FD-CN7
F.FD-CN13-EX
SM411N_FD001
PCIE X1
CN4CN19CN18
Z1~Z6 HOME
R1~R3, SW HOME
CN1
PWR
SM33_CV010
F-ANC
CN21
SM511_CV115
FAREA-E
FAREA-R
SM33_CV016
FRONT AREA SENSOR
J6R-1
SM33_CV018
REAR AREA SENSOR
SM421_CV106-2
SM33_CV030
CAN
CN3
PCIE ADAPTER #2
SM511_IT004
CAN
PWR
CAN
PWR
SM511_FL002-4
Z1~Z8 HOME
Z9~Z10, R1~R5, SW HOME
CN12
CN15
MC2
TH-N12
SM511_CA102-1
SM511_CA202
SM511_CV109-1
SM511_CV109
SM511_CV109-2
J5R-2
SM511_CV115-1
J10L-2
SM511_CV117-1
J11L-1
SM511_CV202
8
7
PC RACK
PWR
SM511_PW123
SM471_VI006
SACO-CN25
SM511_CS135
SM511_PW147
SM511_FD101-1
SM511_MD013
SM511_MD014
SM511_SC122
SM511_SC007-2
SM511_VM006
㎨☐䀴㢨⽈
FFD-PWR
J6R J11L
J5R J10L
SM511_CV201
PS3
+24V
24G
VAC.
VAC.VAC.
VAC.
H1 H2
H3 H4
SM321 VACUUM SENSOR B'D(H1~H6)
H5
VAC. VAC.
CN1
[VAC]
H6
CN16
H1~6 VAC SOL
CN15
H1~6 BLOW SOL
CN14
CN12
Z1~6 HOME
CN11
CN9
SW HOME
CN13
OVER BLOW
CN10
R1~3 HOME
CN8
조명
FIDUCIAL조명 #1
CN17
FIDUCIAL조명 #2
OUTER/INNER
조명
OUTER/INNER
CN6
CN7
CN20
DECAN_HD006
DECAN_HD011
DECAN_HD012
DECAN_HD008
DECAN_HD014
DECAN_HD009
DECAN_HD013
DECAN_FID1_LED
DECAN_FID2_LED
DECAN_FLY SIDE_LED
SIDE
조명
H1~H6(VAC,BLOW H7~H8(VAC.BLOW)
H1H6-VAC
H7H10-VAC
F-HD-SOL
F-HD-SOL
HD-SOL-EXT
AXIO#1-CN5
AXIO#1-CN6
CN7
SM511_CS035
CN5
R-HD-SOL
SM511_VI104
SM511_VI104 -1
PUMP-PWR
SM511_PW147-1
PUMP-ALARM
VACCUM-AIR
SM511_PW146
SM511_PW146-1
FANC-EXT
FA-OP
FA-CL
RA-CL
RA-OP
CRASH_SEN
CN5
J5R-3 J10L-3
SM511_CS111
SM511_CS111-2
SM511_CS111-3
R ANC-SOL
SM511_CS111-1
F ANC-SOL
FANC-SOL
RANC-SOL
RAREA-R
RAREA-E
[AX]
CN8
CN12
CN14
W STP UP/DN
W BUT
CN4
SM511_CV101
RFD-CN4
CN2
CN3
J4R-1
J4R
J9L-1
J9L
J8L-1 J3R-1
SM511_CA101-2 SM511_CA201 SM511_CA101-1
CAN
CN20
CN22
[SC]
CN21
IT MASTER
SM511_IT004
CAN_CH1_L
CAN_CH2_R
BD_PW
BD_PW
FD-CN7-EX
CN8
RY3
8
7
RY4
5
RY7
F-FB-L
5559-4
SM511_PW148
5
RY8
F-FB-R
5559-4
SM511_PW148
EXIT-STP-SOL2
EXIT STOP SOL2
IN STOP SOL2
IN-STP-SOL2
SM511_CS111-5
SM511_CS111-6
CV-CN15-IN
CV-CN15-EXIT
AFTER
BEFORE
INLINE AFTER(F)
CN8
CN22
SM511_CV107
AFTER(R)
BEFORE(R)
INLINE BEFORE(R)
SM511_CV107-1
INLINE AFTER(R)
SM33_CV024
(DC BRK)
(DC BRK)
J8L J3R
HD1-PW
JST 6P
5557-04R/5559-04P
SM511_CS202
SM511_CS204
L-CV-30P
R-CV-30P
R PCB IN/WAIT.OUT SEN
R PCB EXIT/WAIT.B/D OUT SEN
CAN
CAN
(DC BRK)
R ERROR LAMP
R-OW-LAMP
F ERROR LAMP
F-OW-LAMP
CN6
SM511_CV003
F LOOF FAN
R LOOF FAN
F-LOOF-FAN
R-LOOF-FAN
SUB-CN1
JST 6P
PWR
CV-RDF-PWR
PWR
5557-10P/5559-10R
SM511_CV101-1
(ANC 구매품)
V1_BASE_150
(구매품)
V1+_BASE_343
(구매품)
PW
DECAN_SC111-2
F.R-DRV-PW
SM511_SC120
SC-CN10
PWR
SM511_FL001-8.9
SM511_FL001-10.11
SM511_FL001-12.13
SM511_FL001-14
SM511_FL002-6.7
SM511_FL002-8.9
SM511_FL002-12
SM511_FL001-15
SM511_FL002-15
SM511_FL002-14
SM511_FL002-10.11
SM511_FL002-13
(C/V WORK)
(C/V WORK)
(C/V WORK)
(C/V WORK)
(C/V WORK)
(C/V WORK)
RELAY-BK1-3
SM511_FD013
RELAY-BK1-2
RELAY-BK1-1
24G-EX-1
24G-EX-2
SM511_FD010
SM511_FD011
RACK-FAN-EXT
RACK-FAN
SM511_CV109-3
4->2
SINGLE CONV 일때 삭제
DECAN_MD011
DECAN_MD012
R12
R34
R56
R12(CMD)
R34(CMD)
R56(CMD)
DECAN_FLY OUTER_LED
OUTER
DECAN_FLY COAX_LED
COAXIAL
CN21
R1~3 AUX HOME
DECAN_HD005
Panasonic AC servo
SET
MODE