DECAN_L2_TRM(Ver4.2_CS20.07) - 第376页
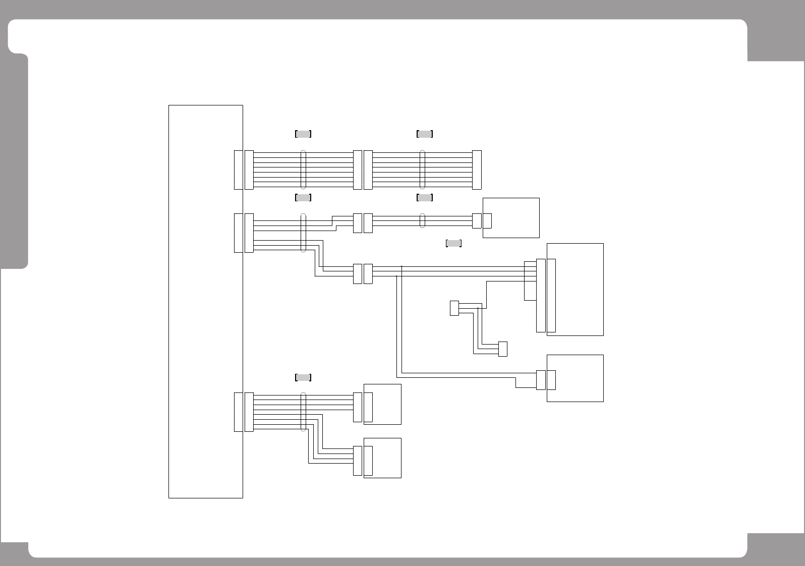
Page +$1:+$ 372 DECAN L2 PC Rack Board (2/4) PC RACK 1 2 3 4 5 6 7 8 SBC-LAN1 (RXD) AM03-010986B SM51 1_VM1 1 1 LAN1 SBC BD LAN-EXT 1 2 3 4 5 6 7 8 SG (CTS) (DTR) V TXD SG (RTS) (DCD) 1 2 3 4 5 6 7 8 1 2 3 4 5 6 7 8 AM03…

Page
+$1:+$
371
DECAN
L2
PC Rack Board (1/4)
NO. PART NO. PART NAME Q'TY Old No. Supply Supply LT Reference
1 AM03-010873A CABLE ASSY-F_MONITOR 1
2 AM03-010874A CABLE ASSY-R_MONITOR 1
3 AM03-000084 CABLE ASSY-USB(M)toMINIUSB(M)1.8M(LV.PD 1
4 AM03-005519B CABLE ASSY-USB_HUB_ADAPTOR 1 AM03-005519A
5 AM03-010911A CABLE ASSY-FRONT_USB 1
6 AM03-011257A CABLE ASSY-REAR_USB 1

Page
+$1:+$
372
DECAN
L2
PC Rack Board (2/4)
PC RACK
1
2
3
4
5
6
7
8
SBC-LAN1
(RXD)
AM03-010986B
SM511_VM111
LAN1
SBC BD
LAN-EXT
1
2
3
4
5
6
7
8
SG
(CTS)
(DTR)
V TXD
SG
(RTS)
(DCD)
1
2
3
4
5
6
7
8
1
2
3
4
5
6
7
8
AM03-010987A
SM511_VM111-1
R-PW-PANEL
1
2
3
4
5
6
7
8
후면 좌측 아래 PANEL
LAN PORT
1
2
3
4
5
6
7
8
COM1/2
GND
AM03-010909A
SM511_PC003
COM1/2
PC-232-EXT
1
2
3
4
5
6
7
8
TXD1
RXD1
+5V
+5V
RXD2
TXD2
GND
1
2
3
4
MULTIPORT
1
2
3
4
1
2
3
4
SCAN
1
2
3
4
5
6
7
8
9
10
11
12
13
14
15
1
2
3
4
5
6
7
8
9
10
11
12
13
14
15
+24VDC
TXD
RXD
24G
TRIGGER-
AUX TXD
OUTPUT1+
DEFAULT
TRIGGER+
AUX RXD
OUTPUT3+
NEW MASTER
CHASSIS GND
OUTPUT2+
OUTPUT 1-/2-/3-
1
2
3
1
2
3
SSI-1
L/R-CN1
1
2
3
SC-CN25
4
AM03-011246B
SM511_IT003
Sensor I/F B/d CN1
PCB IN Sensor
1
2
3
4
SACO BD
CN25
+24VDC
24G
SCAN
1
2
3
4
AM03-010910B
SM511_PC003-1
CV-CN28
1
2
3
1
2
3
CONV IF B/D
CN28
TXD(PC)
RXD(PC)
GND
1
2
3
4
5
6
7
8
COM3/4
GND
AM03-010868A
SM511_IT001
COM3/4
F-BAR
1
2
3
4
5
6
7
8
TXD1
RXD1
+5V
+5V
RXD2
TXD2
GND
6
2
3
5
7
8
R-BAR
6
2
3
5
7
8
6
2
3
5
7
8
6
2
3
5
7
8
+5V
TXD
RXD
GND
+5V
TXD
RXD
GND
FRONT BARCODE
REAR BARCODE
1 2
3
6
4
5

Page
+$1:+$
373
DECAN
L2
PC Rack Board (2/4)
NO. PART NO. PART NAME Q'TY Old No. Supply Supply LT Reference
1 AM03-010986B CABLE ASSY-LAN_RACK 1
2 AM03-010987A CABLE ASSY-LAN_EXT 1
3 AM03-010909A CABLE ASSY-RS232_SERIAL 1
4 AM03-010910B CABLE ASSY-RS232_SERIAL-EXT 1
5 AM03-011246B CABLE ASSY-SCANNER_RS232 1 AM03-011246A
6 AM03-010868A CABLE ASSY-FRONT_REAR BARCODE 1