CUKYX-193-5100_G5S2 - 第113页
193-5100 CUKYX 1.7 侧面面板中央 3-20 1.7 侧面面板中央 Symbol Name Remarks K33A EM-CONT ACT OR K33B EM-CONT ACTOR R04F RESISTOR_SPECIAL X1 (Front) Axis Motor Regenerative Resistor R04B RESISTOR_SPECIAL X1 (Rear) Axis Motor Regenerati…

193-5100
CUKYX
1.6 侧面面板前侧
3-19
1.6.2 面板外侧
Symbol Name Remarks
F200 Lightning Surge Protector
TB : AC1
F200
3
3-20A

193-5100
CUKYX
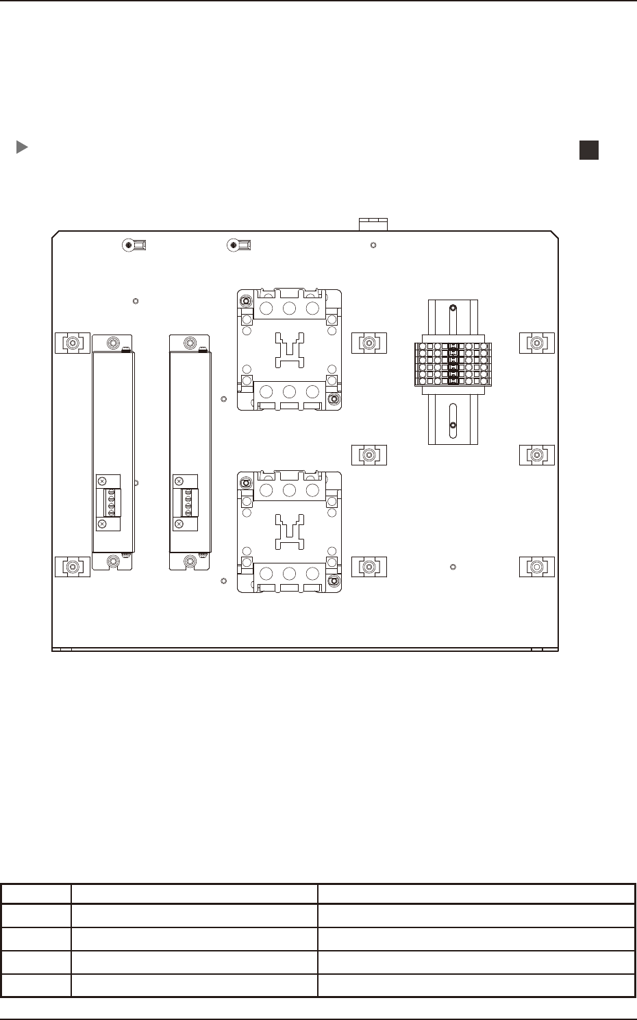
1.7 侧面面板中央
3-20
1.7 侧面面板中央
Symbol Name Remarks
K33A EM-CONTACTOR
K33B EM-CONTACTOR
R04F RESISTOR_SPECIAL X1 (Front) Axis Motor Regenerative Resistor
R04B RESISTOR_SPECIAL X1 (Rear) Axis Motor Regenerative Resistor
4 4
K33A
K33B
R04F R04B
4
3-21A

193-5100
CUKYX
1.8 侧面面板后侧
3-21
1.8 侧面面板后侧
Symbol Name Remarks
K3
Safety Relay (Emergency Stop Switch)
K4
Safety Relay (Safety Cover, Feeder Cover)
K75 Block #1 Feeder Power ON Relay
K77 Block #2 Feeder Power ON Relay
K1B POWER ON Relay
K1B
K75 K77
K4 K3
F2
(6.3A)
F7
(6.3A)
5
3-22A