CUKYX-193-5100_G5S2 - 第78页
193-5100 CUKYX 1.6 送料器推车的安装结构图 2-6 1.6 送料器推车的安装结构图 Symbol Name Symbol Name Y6912 Feeder Clamp B6913 Feeder Clamp Lower Limit (Clamping) Y6912 B6913 2-6S

193-5100
CUKYX
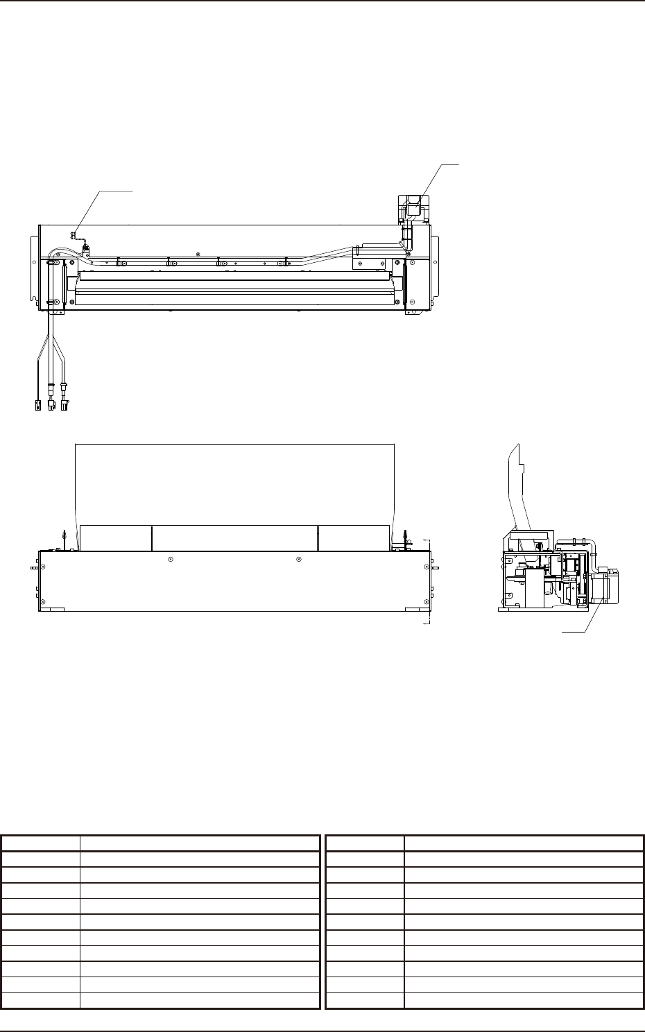
1.5 横梁 X 轴的安装结构图
2-5
1.5 横梁 X 轴的安装结构图
Symbol Name Symbol Name
M21 X1-Axis Motor
U21 Linear Scale Head (Converter)
B36 PEC Recognition Camera
E39 PEC Recognition Lighting
U21
B36
M21
E39
2-5S

193-5100
CUKYX
1.6 送料器推车的安装结构图
2-6
1.6 送料器推车的安装结构图
Symbol Name Symbol Name
Y6912 Feeder Clamp
B6913 Feeder Clamp Lower Limit (Clamping)
Y6912
B6913
2-6S

193-5100
CUKYX
1.7 切割部的安装结构图
2-7
1.7 切割部的安装结构图
Symbol Name Symbol Name
M63 Cutter Axis Motor
B6307 Cutter Axis Origin Sensor
M63
M63
C
C
SECT C-C
B6307
2-7S