5OM-1286-007_w - 第62页
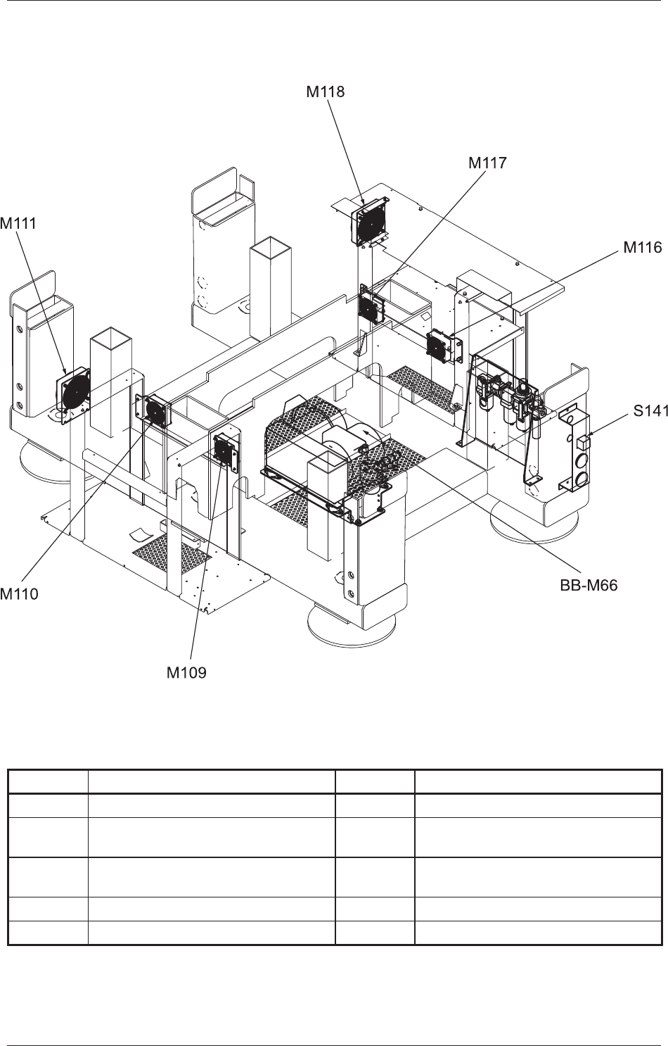
2-1 AJQEPED-ID 0606-005 Layout of Sensors and Loads Underframe Layout of Sensors and Loads Underframe Symbol Name Symbol Name BB-M66 V acuum Pump 1 S141 Pressure Switch M109 Electrical Box Left Side Cooling Fan (Front Si…

2-B
AJQEPED-ID
0606-005

2-1
AJQEPED-ID
0606-005
Layout of Sensors and Loads Underframe
Layout of Sensors and Loads Underframe
Symbol Name Symbol Name
BB-M66 Vacuum Pump 1 S141 Pressure Switch
M109
Electrical Box Left Side Cooling Fan
(Front Side)
M116 Electrical Box Right Side Cooling Fan
(Front Side)
M1
10 Electrical Box Left Side Cooling Fan
(Rear Side)
M117 Electrical Box Right Side Cooling Fan
(Rear Side)
M1
11 Electrical Box (Left) Cooling Fan M118 Electrical Box (Right) Cooling Fan

2-2
AJQEPED-ID
0606-005
Layout of Sensors and Loads Onframe
Layout of Sensors and Loads Onframs
Symbol Name Symbol Name
M107 Upper Frame Cooling Fan (Front Left
Side)
M108 Upper Frame Cooling Fan (Rear Left
Side)
M112 Conveyor Multiaxis
Amplifier Cooling Fan