Infinity Mechanical - 第26页
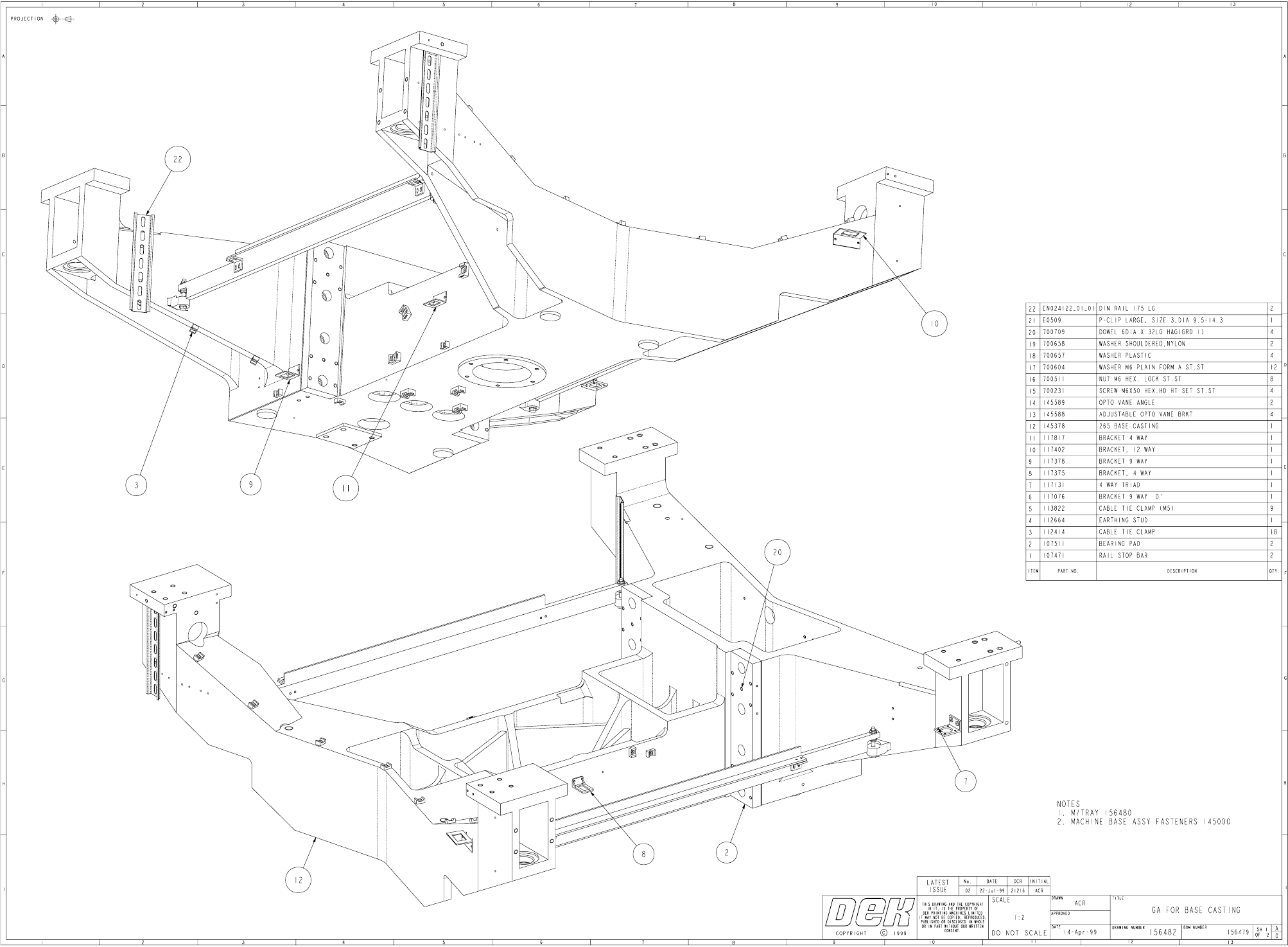
24 Mechanical Drawings 156482S1 Issue 2 Base Casting GA

Mechanical Drawings 23
156007 Issue 7 Camera Axis GA
54321
A
B
CC
B
A
12345
67
8
9 10
11 12
13
6
7
8
9
10 11
12
13
D
E
F
G
H
I
D
E
F
G
H
I
PROJECTION
DRAWN
APPROVED
DATE
C
COPYRIGHT
DO NOT SCALE
SCALE
TITLE
DRAWING NUMBER
2000
BOM NUMBER
ITEM PART NO. DESCRIPTION QTY.
1
107330 BEARING 2
2
107334 MOTOR MOUNTING PLATE 1
3
107335 BEARING HOUSING 2
4
107339 DRIVE SHAFT 1
5
107584 BEARING HOUSE MTG PLATE 1
6
107587 KEY 5.0 SQ x 45.0 LG 2
7
107706 VANE HALL EFFECT 1
8
112332 RIBBON CABLE CLAMP 8
9
112414 CABLE TIE CLAMP 3
10
112664 EARTHING STUD 1
11
117068 DOUBLE CONNECTOR BRACKET 1
12
117320 BRACKET, 2 WAY 1
13
119543 EXTENDED LOCKING POST 2
14
119616 BRCK CONNECTOR LH 1
15
129012 LOCKING POST, STD 2
16
129200 BRACKET MOTOR MOUNTING 1
17
129271 PULLEY BRACKET 1
18
129301 PULLEY POST 1
19
129346 BALL BEARING - DEEP GROOVE 2
20
145399 'Y' CAMERA BELT CLAMP (AT/ATP) 1
21
145400 'Y' CAMERA ADJUST BELT CLAMP (AT/ATP) 1
22
145509 'Y' MOTOR DRIVE PULLEY 1
23
145510 Y MOTOR TIMING BELT 1
24
145511 Y GEAR PULLEY 1
25
145512 'Y' DRIVE SHAFT PULLEY 2
26
145513 Y TRANSFER TIMING BELT 2
27
145515 MAIN Y AXIS TIMING BELT 2
28
145516 AXIS IDLE TIMING PULLEY 1
29
145517 'X' AXIS DRIVE PULLEY 1
30
145518 'X' AXIS TIMING BELT 1
31
156214 CAMERA MOUNT, DRAG CHAIN 1
32
156450 BELT BRACKET RH 1
33
156864 HE BRACKET (CAMERA X) 1
34
158380 RAIL SUPPORT 1
35
158381 BELT BRACKET LH 1
36
160704 CAMERA X MOTOR (DUNKERMOTOREN) 1
37
160706 CAMERA Y MOTOR (DUNKERMOTOREN) 1
38
165226 LINEAR BEARING - CAMERA 'X'. 1
39
700505 NUT M5 FULL ST.ST 1
40
700526 NUT M5 FULL BRASS 4
41
700657 WASHER PLASTIC 2
42
700658 WASHER SHOULDERED,NYLON 2
43
700852 SCREW M5X35 SKT. SET(GRUB) 1
44
E5304 HONEYWELL HALL-SW. 1
45
G1404 CLP EXT D1400/12 1
46
G5120 WASHER M5 BRASS FORM B 3
THIS DRAWING AND THE COPYRIGHT
IN IT, IS THE PROPERTY OF
DEK PRINTING MACHINES LIMITED
IT MAY NOT BE COPIED, REPRODUCED,
PUBLISHED OR DISCLOSED IN WHOLE
OR IN PART WITHOUT OUR WRITTEN
CONSENT.
1:2
ACR
CAMERA AXIS GA
23-Sep-98
156007
156295 ETC
SH 1
OF 1
A
0
LATEST
ISSUE
No. DATE DCR INITIAL
07 13-Jan-03 27886 M
PART 160706 - KEY SUPPLIED WITH MOTOR
31
10
9
20
40
46
29
8
30
7
21
18
28
45
19
44
3
5
26
27
1
4
22
23
24
2
32
38
33
34
35
NOTE DISTANCE OF HOLES FROM END OF BEARING.
REFER TO INDIVIDUAL BOMS
FOR PART NUMBERS
36
37
12
13
11
15
41
42
16
17
39
43
14
25
6

24 Mechanical Drawings
156482S1 Issue 2 Base Casting GA

Mechanical Drawings 25
156482S2 Issue 2 Base Casting GA