Infinity Mechanical - 第70页
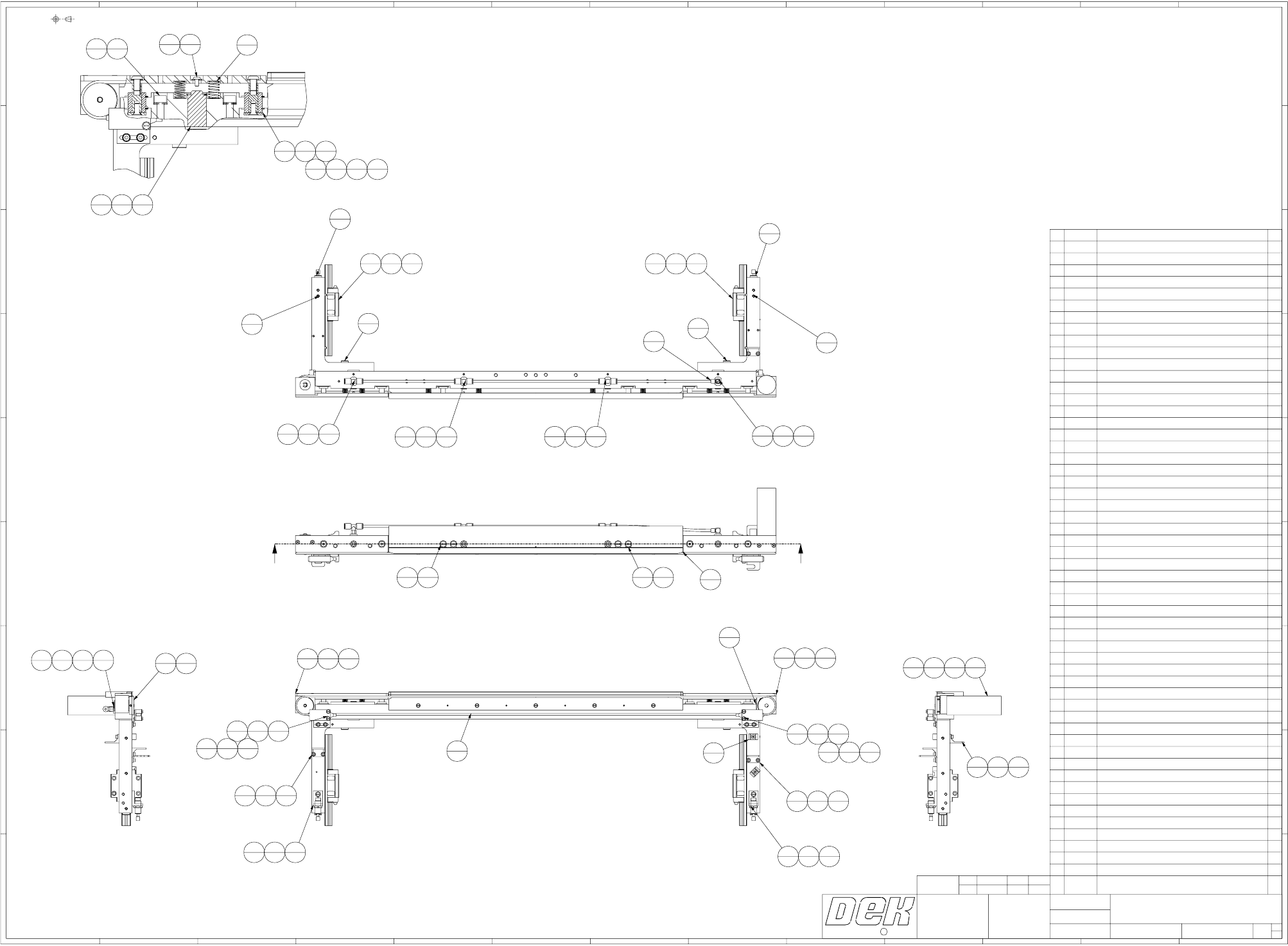
68 Mechanical Drawings 165389 Issue 3 Print Section Front Rail GA 5 4 3 2 1 A B C C B A 123 45 67 8 9 10 11 12 13 6 7 8 9 10 11 12 13 D E F G H I D E F G H I PROJECTION DRAWN APPROVED DATE C COPYRIGHT DO NO T SCALE SCALE…

Mechanical Drawings 67
165388 Issue 1 Filter/Regulator/Pressure Switch GA
REMOVE ALL BURRS & SHARP EDGES
12345
12345
A
B
C
D
A
B
C
D
PROJECTION
C
COPYRIGHT 2000
A
3
DRAWING NUMBER
BOM NUMBER
SCALE
DESCRIPTION
DESIGNER
APPROVED
DATE
DO NOT SCALE
THIS DRAWING AND THE COPYRIGHT
IN IT, IS THE PROPERTY OF
DEK PRINTING MACHINES LIMITED
IT MAY NOT BE COPIED, REPRODUCED,
PUBLISHED OR DISCLOSED IN WHOLE
OR IN PART WITHOUT OUR WRITTEN
CONSENT.
1:1
Neil Short
FILTER / REGULATOR /PRESSURE SWITCH GA
24-Aug-01
165388
165387
SH 1
OF 1
LATEST
ISSUE
No. DATE DCR INITIAL
1 24-Aug-01 26759 NS
ITEM PART NO. DESCRIPTION QTY.
1
111313 1/4-8MM ELBOW FITTING 2
2
156686 FILTER REGULATOR 1
3
G5212 4MM-M5 MALE CONNECTOR 1
2
1
3

68 Mechanical Drawings
165389 Issue 3 Print Section Front Rail GA
54321
A
B
CC
B
A
12345
67
8
9 10
11 12
13
6
7
8
9
10 11
12
13
D
E
F
G
H
I
D
E
F
G
H
I
PROJECTION
DRAWN
APPROVED
DATE
C
COPYRIGHT
DO NOT SCALE
SCALE
TITLE
DRAWING NUMBER
2000
BOM NUMBER
AA
ITEM PART NO. DESCRIPTION QTY.
1
107265 ELBOW F/F 1
2
107316 SMC CYLINDER (UKC 564) 4
3
107371 GUIDE BAR STOP 6
4
107417 COMPRESSION SPRING 8
5
107422 CYLINDER CONNECTOR 4
6
107424 RAIL GUIDE BAR 6
7
107509 CLP INT D1300/16 4
8
107827 BEARING, LINEAR BALL BUSHING 6
9
107843 M5X.8-4MM TEE FITTING 3
10
112237 STOP ANVIL 4
11
112284 PULLEY 1
12
112414 CABLE TIE CLAMP 2
13
117320 BRACKET, 2 WAY 2
14
119747 LOOM OPTO 8 SE 8 2
15
121267 BLACK TUBING OD 4.0 1
16
129088 SHOCK ABSORBER 2
17
129107 MOUNTING BRACKET, SHOCK ABSORBER 2
18
137519 CLAMPED BOARD CLAMP, ASSY 1
19
140496 SPINDLE 1
20
140505 BEARING 2
21
160418 SPEED UP FRONT RAIL MOTOR & LOOM ASSY. BOM 1
22
165020 RAIL SUPPORT WEB, FL/RR 1
23
165021 RAIL SUPPORT WEB, FR/RL 1
24
165022 MID RAIL, FL/RR 1
25
165023 MID RAIL, FR/RL 1
26
165025 LIN. GUIDE SSR15TXB1UUC1+155LY 2
27
165027 DRIVE BELT, PRINT SECTION 1
28
165028 DRIVE PULLEY 1
29
165136 BRACKET, OPTO 2
30
165151 PULLEY BLOCK 1
31
165152 MOTOR BLOCK 1
32
165291 BRACKET, OPTO CONNECTOR 1
33
165606 DWG^GA^HTC RAIL^3mm SUPPORT FITTED 1
34
700002 SCREW M3X6 PAN.HD SLTD MC ST.ST 4
35
700004 SCREW M3X14 PN.HD SLTD MC ST.ST 4
36
700009 SCREW M5X10 PN.HD SLTD MC ST.ST 2
37
700101 SCREW M3X8 CAP HD ST.ST 10
38
700102 SCREW M3X10 CAP HD ST.ST 4
39
700112 SCREW M4X16 CAP HD ST.ST 6
40
700125 SCREW M6X30 CAP HD ST.ST 4
41
700324 SCREW M3X6 BUTT.HD ST.ST 4
42
700332 SCREW M5X10 BUTT.HD ST.ST 4
43
700406 SCREW M4X10 CSK.SLTD.M/C ST.ST 10
44
700601 WASHER M3 PLAIN FORM A ST.ST 14
45
700603 WASHER M5 PLAIN FORM A ST.ST 6
46
700604 WASHER M6 PLAIN FORM A ST.ST 4
47
700609 WASHER M3 CRINKLE BE/CU 4
48
700643 WASHER 1/8" TABLE 4 HEAVY PATT 4
49
700664 WASHER 9.5ODX5.1IDX0.010" SHIM 1
50
700743 DOWEL 3DIA X 10LG H&G(GRD 1) 4
51
700813 SCREW M3X8 SKT. SET(GRUB) 4
52
700814 SCREW M3X10 SKT. SET(GRUB) 4
53
G1414 CLP EXT D1400/15 12
54
G1476 CIRCLIP, D1500 0040 1
55
G3121 O'RING 4
THIS DRAWING AND THE COPYRIGHT
IN IT, IS THE PROPERTY OF
DEK PRINTING MACHINES LIMITED
IT MAY NOT BE COPIED, REPRODUCED,
PUBLISHED OR DISCLOSED IN WHOLE
OR IN PART WITHOUT OUR WRITTEN
CONSENT.
1:2
A HAMLIN
3SC PRINT SECTION FRONT RAIL GA
15-Mar-02
165389
165390
SH 1
OF 1
A
0
LATEST
ISSUE
No. DATE DCR INITIAL
03 18-Oct-02 27676 M
PART-SECTION A-A
QTY'S IN THIS VIEW ARE FOR
ALL INSTANCES WITHIN ASSY
SCALE 1:1
12
2
13
1
14
1
16
1
17
1
24
1
25
1
27
1
29
1
30
1
31
1
32
1
33
1
35
2
37
2
41
2
43
2
44
2
47
2
41
2
14
1
37
2
44
4
29
1
35
2
47
2
37
2
44
4
37
2
44
2
17
1
16
1
43
2
11
1
19
1
20
2
49
1
52
2
54
1
21
1
28
1
38
4
13
1
37
2
44
2
52
2
18
1
36
1
45
1
36
1
45
1
1
1
5
1
9
1
10
1
15
1
22
1
23
1
26
1
39
3
50
2
55
1
5
1
5
1
5
1
9
1
9
1
55
1
55
1
55
1
10
1
10
1
10
1
26
1
39
3
50
2
2
4
3
6
4
8
6
6
7
4
8
6
34
4
40
4
42
4
46
4
48
4
51
4
53
12
45
4
43
6

Mechanical Drawings 69
165391 Issue 3 Print Section Rear Rail GA
54321
A
B
CC
B
A
12345
67
8
9 10
11 12
13
6
7
8
9
10 11
12
13
D
E
F
G
H
I
D
E
F
G
H
I
PROJECTION
DRAWN
APPROVED
DATE
C
COPYRIGHT
DO NOT SCALE
SCALE
TITLE
DRAWING NUMBER
2000
BOM NUMBER
A A
ITEM PART NO. DESCRIPTION QTY.
1
107265 ELBOW F/F 1
2
107316 SMC CYLINDER (UKC 564) 4
3
107371 GUIDE BAR STOP 6
4
107417 COMPRESSION SPRING 8
5
107422 CYLINDER CONNECTOR 4
6
107424 RAIL GUIDE BAR 6
7
107509 CLP INT D1300/16 4
8
107827 BEARING, LINEAR BALL BUSHING 6
9
107843 M5X.8-4MM TEE FITTING 3
10
109239 SUNX PHOTO SENSOR PM T53 2
11
112237 STOP ANVIL 4
12
112284 PULLEY 1
13
117320 BRACKET, 2 WAY 1
14
117375 BRACKET, 4 WAY 1
15
121267 BLACK TUBING OD 4.0 1
16
129088 SHOCK ABSORBER 2
17
129107 MOUNTING BRACKET, SHOCK ABSORBER 2
18
137519 CLAMPED BOARD CLAMP, ASSY 1
19
140496 SPINDLE 1
20
140505 BEARING 2
21
160422 SPEED UP REAR RAIL MOTOR & LOOM ASSY. BOM 1
22
165020 RAIL SUPPORT WEB, FL/RR 1
23
165021 RAIL SUPPORT WEB, FR/RL 1
24
165022 MID RAIL, FL/RR 1
25
165023 MID RAIL, FR/RL 1
26
165025 LIN. GUIDE SSR15TXB1UUC1+155LY 2
27
165027 DRIVE BELT, PRINT SECTION 1
28
165028 DRIVE PULLEY 1
29
165145 OPTO MTG BRACKET (RAIL DOWN) 2
30
165151 PULLEY BLOCK 1
31
165152 MOTOR BLOCK 1
32
165606 DWG^GA^HTC RAIL^3mm SUPPORT FITTED 1
33
700002 SCREW M3X6 PAN.HD SLTD MC ST.ST 8
34
700009 SCREW M5X10 PN.HD SLTD MC ST.ST 2
35
700101 SCREW M3X8 CAP HD ST.ST 4
36
700102 SCREW M3X10 CAP HD ST.ST 4
37
700110 SCREW M4X10 CAP HD ST.ST 4
38
700112 SCREW M4X16 CAP HD ST.ST 6
39
700125 SCREW M6X30 CAP HD ST.ST 4
40
700324 SCREW M3X6 BUTT.HD ST.ST 4
41
700332 SCREW M5X10 BUTT.HD ST.ST 4
42
700406 SCREW M4X10 CSK.SLTD.M/C ST.ST 10
43
700601 WASHER M3 PLAIN FORM A ST.ST 4
44
700603 WASHER M5 PLAIN FORM A ST.ST 6
45
700604 WASHER M6 PLAIN FORM A ST.ST 4
46
700643 WASHER 1/8" TABLE 4 HEAVY PATT 4
47
700664 WASHER 9.5ODX5.1IDX0.010" SHIM 1
48
700743 DOWEL 3DIA X 10LG H&G(GRD 1) 4
49
700813 SCREW M3X8 SKT. SET(GRUB) 4
50
700814 SCREW M3X10 SKT. SET(GRUB) 4
51
E0506 P CLIP 9-14MM 1
52
G1414 CLP EXT D1400/15 12
53
G1476 CIRCLIP, D1500 0040 1
54
G3121 O'RING 4
THIS DRAWING AND THE COPYRIGHT
IN IT, IS THE PROPERTY OF
DEK PRINTING MACHINES LIMITED
IT MAY NOT BE COPIED, REPRODUCED,
PUBLISHED OR DISCLOSED IN WHOLE
OR IN PART WITHOUT OUR WRITTEN
CONSENT.
1:2
A HAMLIN
PRINT SECTION REAR RAIL GA
16-Nov-00
165391
165392
SH 1
OF 1
A
0
LATEST
ISSUE
No. DATE DCR INITIAL
03 18-Oct-02 27676 M
SECTION A-A
QTY'S IN THIS VIEW ARE FOR
ALL INSTANCES WITHIN ASSY
SCALE 1:1
16
1
17
1
24
1
25
1
27
1
30
1
31
1
32
1
40
2
51
1
42
2
17
1
16
1
42
2
40
2
21
1
28
1
36
4
37
2
29
1
10
1
50
2
33
2
10
1
12
1
19
1
20
2
29
1
47
1
53
1
33
2
37
2
50
2
18
1
34
1
34
1
44
1
44
1
1
1
5
1
9
1
11
1
13
1
14
1
15
1
22
1
23
1
26
1
35
2
43
2
48
2
54
1
5
1
5
1
5
1
54
1
54
1
54
1
9
1
9
1
26
1
38
3
38
3
48
2
11
1
11
1
11
1
35
2
43
2
2
4
3
6
4
8
6
6
7
4
8
6
33
4
39
4
41
4
42
6
44
4
45
4
46
4
49
4
52
12