CP-642E-08JE - 第189页
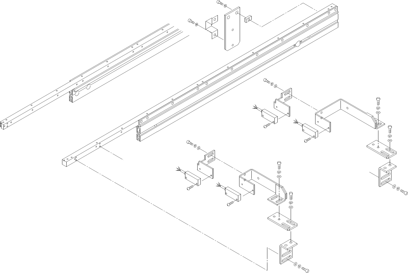
38.アウトコンベア(正逆流れ)(オプション)(WQC) 38.Out conveyor(Board flow changeover manual)(Option)(WQC) 番号 図番 & コード番号 個数 品名 規格 備考 材質 No. Drg.No. & Code No. QTY Description Rating Remarks Materials 1 WQC1030 1 BKT, SENSOR BKT セン…

CP-642E PARTS LIST ver08
38 - 1
38.アウトコンベア(正逆流れ)(オプション)(WQC)
38.Out conveyor(Board flow changeover manual)(Option)(WQC)
38.アウトコンベア(正逆流れ)(オプション)(WQC)
38.Out conveyor(Board flow changeover manual)(Option)(WQC)
タテx173.205
Ref.31-1
Ref.31-1
Ref.31-1
Ref.33-7
Ref.19-4
208
176
165
175
161
175
161
175
161
183
162
176
167
175
161
13
13
B
A
139
26
A
x2
8
15
15
7
7
15
13
2
15
11
13
4
9
12
10
6
14
3
9
10
5
14
12
13
11
13
11
16
20
17
19
11
14
8
10
12
3
9
3
1
12
10
9
14
10
18
12
A
A

38.アウトコンベア(正逆流れ)(オプション)(WQC)
38.Out conveyor(Board flow changeover manual)(Option)(WQC)
番号 図番 & コード番号 個数 品名 規格 備考 材質
No. Drg.No. & Code No. QTY Description Rating Remarks Materials
1 WQC1030 1 BKT, SENSOR BKT センサ FE
2 WQC1040 1 BKT, SENSOR BKT センサ FE
3 S3122A 3 SW, PHOTOELECTRIC SW 光電 E3S-LS3CID OT
4 S3122Z 1 SW, PHOTOELECTRIC SW 光電 E3S-LS3RC4 OT
5 MQC5020 1 BKT, SENSOR BKT センサ FE
6 MQC5120 1 BKT, SENSOR BKT センサ FE
7 MQC5040 2 PLATE プレート FE
8 MQC5050 2 BKT BKT FE
9 K5177A SCREW, C/R PAN 小ネジ 十穴鍋 M2.5X14L FE
10 H5286A BOLT, HEX SOCKET ボルト 六角穴 M4X6L FE
11 H5297A BOLT, HEX SOCKET ボルト 六角穴 M5X8L FE
12 W1022A WASHER, LOCK ワッシャ スプリング 4M/M FE
13 W1023A WASHER, LOCK ワッシャ スプリング 5M/M FE
14 W1043A WASHER, FLAT ワッシャ 平 4W-4 FE
15 W1044A WASHER, FLAT ワッシャ 平 4W-5 FE
16 MQC1480 1 PLATE プレート FE
17 MQC1490 1 PLATE, RETAINING プレート 押え FE
18 IQC6062 2 NUT ナット FE
19 H5321A BOLT, HEX SOCKET ボルト 六角穴 M6X12L FE
20 W1024A WASHER, LOCK ワッシャスプリング 6M/M FE
CP-642E PARTS LIST ver08
38 - 2
38.アウトコンベア(正逆流れ)(オプション)(WQC)
38.Out conveyor(Board flow changeover manual)(Option)(WQC)

CP-642E PARTS LIST ver08
39 - 1
39.フィーダスタンド(WCY)
39.Feeder stand(WCY)
39.フィーダスタンド(WCY)
39.Feeder stand(CWCY)
タテx173.205
Ref.31-1
Ref.31-1
Ref.31-1
Ref.33-7
Ref.19-4
208
176
165
175
161
175
161
175
161
183
162
176
167
175
161
13
13
B
A
139
26
A
x2
4
3
7
3
4
3
4
4
3
4
3
4
3
4
3
4
3
4
3
4
3
4
3
4
3
2
13
14
15
13
14
15
13
14
17
17
17
19
17
11
18
15
9
10
11
12
9
10
11
12
9
10
11
12
9
10
11
12
9
10
11
12
9
10
11
16
8
7
6
5
8
8
6
5
6
5
7
13
14
15
A
A
1