JX-300LED_维修调整要领书 - 第107页
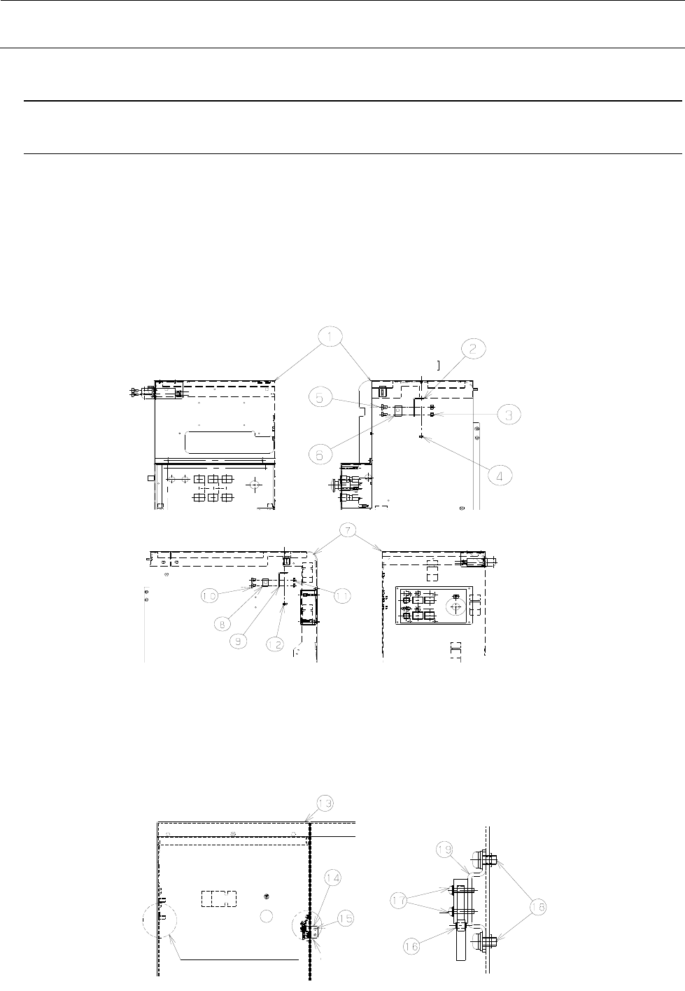
Rev 1.0 维修调整要领书 10-3 10-3 . 护罩打开开关的更换 10-3-1 . 开关主体(标准) 1) 从操作开关基板拔下插头 。 2) 切断束线带,卸下固定螺丝 (SL6041642TN) ,进行更换 。 3) 进行后背护罩传感器更换的时候请拆下护罩 RU , 切断中转连接器的束线带, 请拆下中转连接器后 进行更换。 4) 安装时请按照相反的程序进行 。 图 10-3-1-2 図11-3-1 图 10-3-1-1 正面图…

Rev 1.0
维修调整要领书
10-2
10-2.紧急停止开关的更换
1)更换紧急停止开关时,转动①和②的旋钮,从护罩背面卸下开关。
2
1
图 10-2-1
2)用螺丝刀卸下开关背面连接的线束,更换开关。
念迦
朔迦
图 10-2-2
背面
前侧

Rev 1.0
维修调整要领书
10-3
10-3.护罩打开开关的更换
10-3-1.开关主体(标准)
1) 从操作开关基板拔下插头。
2) 切断束线带,卸下固定螺丝(SL6041642TN),进行更换。
3) 进行后背护罩传感器更换的时候请拆下护罩 RU,切断中转连接器的束线带,请拆下中转连接器后
进行更换。
4) 安装时请按照相反的程序进行。
图 10-3-1-2
図11-3-1
图 10-3-1-1
正面图 右侧面图
左侧面图 正面图
正面图 A部放大
中转连接器安装位置
A 部

Rev 1.0
维修调整要领书
10-4
No. 货号 品名 数量
40046564
护罩FUR 1
40001453
安全开关支架 1
NM3040520SF
法兰盘螺母 2
E1348700000
安全护罩止动器 1
SL6041642TN
螺丝帽cap 2
40002254
护罩打开SW 1
40069181
护罩RUR 1
40001453
安全开关支架 1
40002254
护罩打开SW 1
SL6041642TN
螺丝帽cap 2
⑪
NM3040520SF
法兰盘螺母ト 2
⑫
NM6040001SC
螺母 2
⑬
40069181
护罩RUR 1
⑭
40069200
R-SW BRACKET 1
⑮
SM0030801SC
六角螺栓 2
⑯
40068899
R-COP SW CABLE ASM 1
⑰
SL4021091SC
盆头螺钉 2
⑱
SL4040891SC
带垫片内六角螺栓 2
⑲
E1310727000
C/O 打开 BK 1