JX-300LED_维修调整要领书 - 第198页
Rev 1.0 维修调整要领书 15-1 为了防止突然的起动造成事故,请关掉电源之后再进行操作。 危险 15 供料器部位标尺( FPI ) 15-1 . FPI (前)的拆卸 如下图所示,挂到 Y 轴机架 ( 两侧 ) 固定的 FPI 侧支架的钩上,用 M6×12 螺丝 cap 固定 。 卸下 2 个螺丝,向上滑动即可拆卸。 FPI 侧支架 F 螺丝 cap FPI 装配件 F 图 15-1

Rev 1.0
维修调整要领书
14-9
14-8-3.同时装有IN/OUT缓冲时
A
B
2
A(传送规格/左→右)
1
1
2
B(传送规格/右→左)
图14-8-3
货号 品名
① 40065488 BU PIN SENSOR DOG
② SM4030501SN SCREW M3 L=5

Rev 1.0
维修调整要领书
15-1
为了防止突然的起动造成事故,请关掉电源之后再进行操作。
危险
15 供料器部位标尺(FPI)
15-1.FPI(前)的拆卸
如下图所示,挂到Y轴机架(两侧)固定的FPI侧支架的钩上,用M6×12螺丝cap固定。
卸下 2 个螺丝,向上滑动即可拆卸。
FPI侧支架F
螺丝 cap
FPI装配件F
图15-1

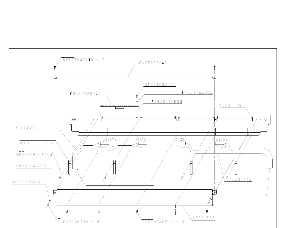
Rev 1.0
维修调整要领书
15-2
FPI内部零件构成(前)
固定螺丝
FPI护罩U20组件
固定螺丝 X 8
滑动器 X 8
FPI
LED基板 X 4
垫片 X 8
FPI支架F
FPI LED电缆B组
弹簧螺旋
平垫片
固定螺丝 X 4
CN503 (接基板连接器)
FPI LED电缆A组
平垫片 X 2
CN502 (接基板连接器)
固定螺丝
固定螺丝
FPI护罩 B
图15-1-2