JX-300LED_维修调整要领书 - 第23页
Rev 1.0 维修调整要领书 1-16 1-4-3 . 传感器头和后通路的间隙 ( 仅 Y 轴 ) 1) 在 Y 轴的全行程,请确认 Y 轴后通路和传感器头的间隙, 0.65mm 的间隙标尺应该正好插入。 2) 1) 的确认,如果间隙不是 0.65mm 时,请拧松固定处啊杆器支架的螺丝(下图的螺丝 ② )。 3) 把 0.65mm 的间隙标尺,插到 Y 轴后通路和传感器头的间隙,再次拧紧螺丝。 4) 实施 1) 的确认方法。 1 2 …

Rev 1.0
维修调整要领书
1-15
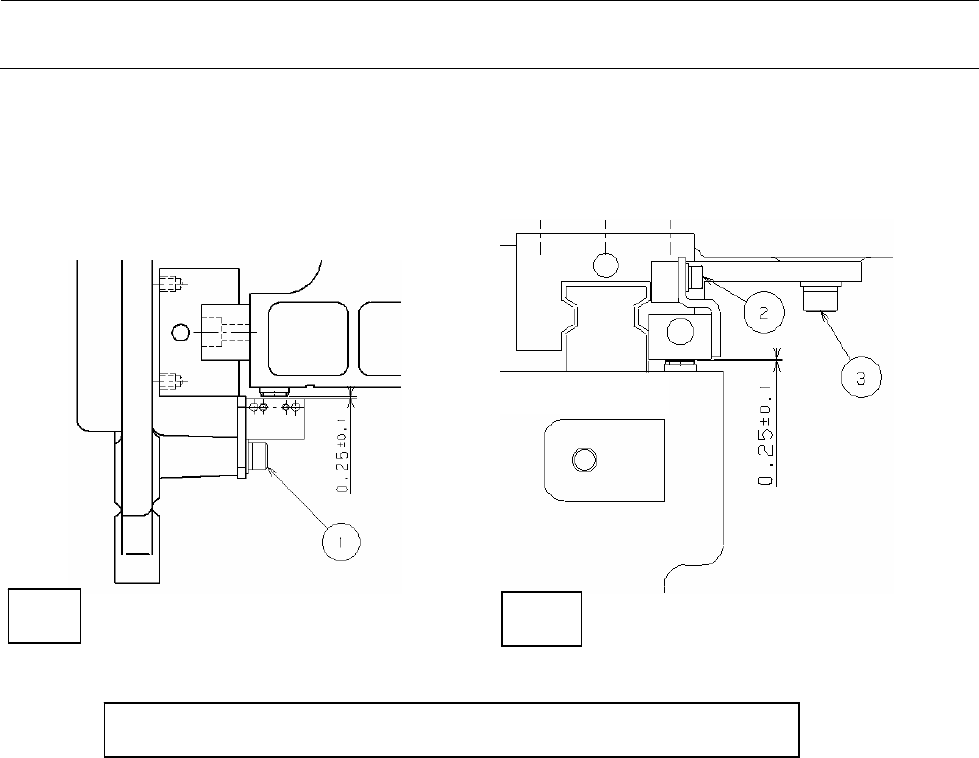
6) 如果 P-P 值不是 2.0V±0.5V,则松开固定传感器的螺钉(X 轴为下图的螺钉①,Y 轴为螺钉③)。
Y轴
X 轴
电磁标尺和传感器头的间隙 :0.25±0.1mm

Rev 1.0
维修调整要领书
1-16
1-4-3.传感器头和后通路的间隙(仅Y轴)
1) 在Y轴的全行程,请确认Y轴后通路和传感器头的间隙,0.65mm的间隙标尺应该正好插入。
2) 1)的确认,如果间隙不是0.65mm时,请拧松固定处啊杆器支架的螺丝(下图的螺丝②)。
3) 把0.65mm的间隙标尺,插到Y轴后通路和传感器头的间隙,再次拧紧螺丝。
4) 实施1)的确认方法。
1
2
・传感器头和后通道Y的间隙:0.65±0.1mm
(
仅
Y轴)

Rev 1.0
维修调整要领书
1-17
1-5.限制传感器、X轴原点附近传感器的更换
1-5-1.X轴限制传感器、X轴原点附近传感器的更换
※更换传感器时,不需要调整位置。
※包括支架也更换时,需要调整位置。
1) 拧松固定X限制传感器支架的螺丝,按照下图的X架端L、R的距离进行固定。
2) 后方固定时,要使安装在贴装头板背面的传感器碰块的间隙为 0.8~1.5mm(目标是 1.0mm)。
X 正限制传感器
X 负限制传感器
X 原点附近传感器
止动橡胶粘贴面
止动橡胶粘贴面
X 轴限制传感器位置
左侧(X负限制传感器)
X架端L的止动橡胶安装面和传感器中心的距离:44.4mm
中央(X原点附近传感器) X架端L的止动橡胶安装面和传感器中心的距离:55.4mm
右侧(X正限制传感器)
X架端R的止动橡胶安装面和传感器中心的距离:52mm
限制传感器的间隙
0.8~1.5mm(精度1.0mm)