CP45NEO_Technical Reference-3rd.pdf - 第38页

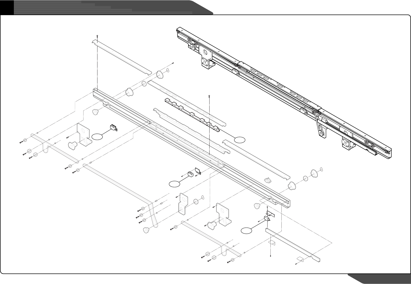
P a r t L i s t C o n v e y o r F i x e d F r a m e 3 7 Page S A M S U N G T E C H W I N NO. PART󰚟NO. PART󰚟NAME Q'TY TYPE REMARK 1 J3211048A PHOTO󰚟SENSOR 2󰚟 2 J1301188 FITTING 1󰚟 3 J1301354 THROTTLE󰚟VALVE󰚟STR…

100%1 / 115
P art L is t
C
onveyor F ixed F rame
37 Page
S A MS UNG TE CHW IN
NO. PART󰚟NO. PART󰚟NAME Q'TY TYPE REMARK
1 J3211048A PHOTO󰚟SENSOR 2󰚟
2 J1301188 FITTING 1󰚟
3 J1301354 THROTTLE󰚟VALVE󰚟STRAIGHT 1󰚟
4 J1301670 FLAT󰚟BELT 3󰚟
5 J3104013A STEPPING󰚟MOTOR 1󰚟
6 J6602026A FLAT󰚟BELT(MID) 2󰚟
7 J6602027A FLAT󰚟BELT(EXT) 2󰚟
8 J6602028A FLAT󰚟BELT(ENT) 2󰚟
9 J6701018B STOPPER󰚟CYLINDER󰚟1 1󰚟
10 J9061257A CONV󰚟AC󰚟MOTOR󰚟CABLE󰚟ASS'Y MK-MD35
J1300534 SPEED󰚟CONTROL󰚟MOTOR 2󰚟
11 J1300542 GEAR󰚟HEAD 2󰚟
12 J7053045E STOPPER󰚟TOP-M(AFL,ARR) 1󰚟 J7053045E
13 J7053212A DUMP󰚟BOX 1󰚟
14 J9053268A
PLACE󰚟STOPPER󰚟ASS'Y(CP45NEO) 1󰚟 J9053268A
15 J6709018A
REGULATOR 1󰚟
16
17
18
19
20
21
22
23
24
25
26
C
onveyor Moving F rame
38 Page
S A MS UNG TE CHW IN
1
3
3
2