JX-350-Rev06 - 第49页
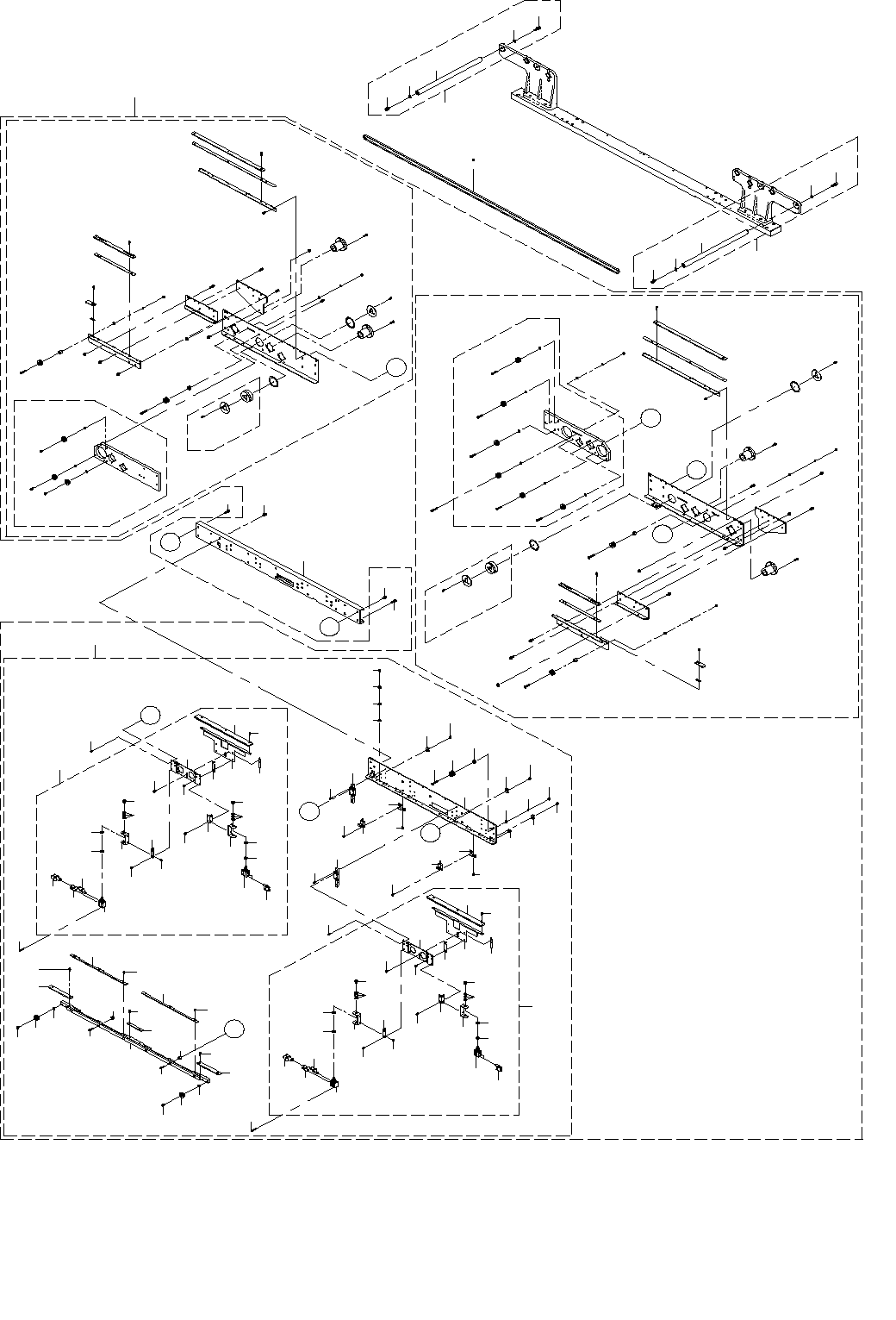
- 44 - NOTE( 注記 ) *INSTALLATION P SITION AN D DIRECTION VARY IF THE PWB TRA NSFER REFERENCE IS DIFFERENT. 基板搬送基準が異なると取付位置、方向が変わります。 REF.NO NOTE PART NO D E S C R I P T I O N 品 名 Qty 1 401-36090 RAIL PLATE FL ASM レールプレートF…

- 43 -
22. PWB CONVEYOR COMPONENTS (2)
基板搬送関係(2)
G
B
C
D
77
77
79
78
79
78
75
75
73
75
77
77
81
80
76
75
74
76
77
80
77
65
65
67
69
67
71
68
69
67
67
68
65
64
66
65
63
70
66
70
67
67
62
72
E
3
4
2
15
6
15
7
7
8
9
10
11
12
13
16
20
24
21
23
22
25
26
27
18
17
14
18
17
14
25
27
26
1
19
60
59
A
31
37
32
33
5
38
39
40
41
42
43
46
50
49
54
52
53
51
55
56
34
56
34
55
47
45
48
37
35
30
59
60
F
F
61
I
A
61
34
55
56
34
55
56
47
45
48
47
45
48
47
45
48
27
25
26
27
25
26
27
25
26
G
I
H
H
D
E
C
B
34
56
55
34
56
55
34
56
55
15
7
29
28
36
37
44
44
44
58
57

- 44 -
NOTE( 注記 ) *INSTALLATION PSITION AND DIRECTION VARY IF THE PWB TRANSFER
REFERENCE IS DIFFERENT.
基板搬送基準が異なると取付位置、方向が変わります。
REF.NO NOTE PART NO D E S C R I P T I O N
品 名
Qty
1 401-36090 RAIL PLATE FL ASM
レールプレートFL組
1
2 400-01048 RAIL PLATE FL(L)
レールプレートFL(L)
(1)
3 401-35867 RAIL_PLATE_F_LED_L
レールプレート_F_LED_L
(1)
4 400-11054 RAIL PLATE R(150)
レールプレートR(150)
(1)
5 401-35863 CONVEYOR_RAIL_B_2
コンベアレール_B_2
(1)
6 SL-6041292-TN SCREW M4 L=12
座金付き六角穴ボルト M4 L=12
(3)
7 NM-3040520-SF FLANGE NUT M4
フランジ付きナット M4
(6)
8 401-35861 CONVEYOR_RAIL_A
コンベアレール_A
(1)
9 SL-6030692-TN SCREW M3 L=6
座金付き六角穴ボルト M3 L=6
(4)
10 401-35864 PWB_GUIDE_A_SPACER
PWB_ガイド_A_スペーサ
(1)
11 E2208-723-000 PWB GUIDE 6S
PWBガイド6S
(1)
12 SL-6031092-TN SCREW
座金付き六角穴ボルト
(3)
13 401-35865 PWB_GUIDE_B_SPACER
PWB_ガイド_B_スペーサ
(1)
14 SM-4042501-SC SCREW M4X0.7 L=25
なべ小ねじ M4X0.7 L=25
(4)
15 SL-6041092-TN SCREW
座金付き六角穴ボルト
(6)
16 401-35866 PWB_INNER_SPACER
PWB_インナースペーサ
(1)
17 E2089-721-0A0 CONVEYOR PULLEY B ASM.
搬送プーリB組
(4)
18 E2055-721-000 PULLEY SPACER
プーリスペーサ
(4)
19 E2012-721-000 ADJUST PLATE
アジャストプレート
(1)
20 SL-6030692-TN SCREW M3 L=6
座金付き六角穴ボルト M3 L=6
(2)
21 E2111-715-0A0 CONVEYOR PULLEY ASM.
搬送プーリ(組)
(1)
22 E2214-723-000 PULLEY SPACER 8.4
プーリスペーサ8.4
(1)
23 SM-4042001-SC SCREW M4X0.7 L=20
なべ小ねじ M4X0.7 L=20
(1)
24 WP-0430800-SC WASHER M4
平座金小形丸 M4
(1)
25 WP-0430801-SC WASHER M4
平座金 M4
(5)
26 WS-0410002-KN SPRING WASHER M4
ばね座金 M4
(5)
27 NM-6040001-SC NUT M4X0.7 TYPE1
六角ナット M4X0.7 1種
(5)
28 401-36102 RAIL_PLATE_F_SUPPORT
レールプレートFサポート
1
29 SL-6041092-TN SCREW
座金付き六角穴ボルト
3
30 401-36091 RAIL PLATE FR ASM
レールプレートFR組
1
31 400-01051 RAIL PLATE FR(L)
レールプレートFR(L)
(1)
32 401-35868 RAIL_PLATE_F_LED_R
レールプレート_F_LED_R
(1)
33 400-11053 RAIL PLATE F(150)
レールプレートF(150)
(1)
34 NM-6040001-SC NUT M4X0.7 TYPE1
六角ナット M4X0.7 1種
(7)
35 401-35862 CONVEYOR_RAIL_B_1
コンベアレール_B_1
(1)
36 SL-6041292-TN SCREW M4 L=12
座金付き六角穴ボルト M4 L=12
(3)
37 NM-3040520-SF FLANGE NUT M4
フランジ付きナット
(6)
38 401-35861 CONVEYOR_RAIL_A
コンベアレール_A
(1)
39 SL-6030692-TN SCREW M3 L=6
座金付き六角穴ボルト M3 L=6
(4)
40 401-35864 PWB_GUIDE_A_SPACER
PWB_ガイド_A_スペーサ
(1)
41 E2208-723-000 PWB GUIDE 6S
PWBガイド6S
(1)
42 SL-6031092-TN SCREW
座金付き六角穴ボルト
(3)
43 401-35865 PWB_GUIDE_B_SPACER
PWB_ガイド_B_スペーサ
(1)
44 SL-6041092-TN SCREW
座金付き六角穴ボルト
(6)
45 E2089-721-0A0 CONVEYOR PULLEY B ASM.
搬送プーリB組
(6)
46 401-35866 PWB_INNER_SPACER
PWB_インナースペーサ
(1)
47 E2055-721-000 PULLEY SPACER
プーリスペーサ
(6)
48 SM-4042501-SC SCREW M4X0.7 L=25
なべ小ねじ M4X0.7 L=25
(6)
49 E2012-721-000 ADJUST PLATE
アジャストプレート
(1)
50 SL-6030692-TN SCREW M3 L=6
座金付き六角穴ボルト M3 L=6
(2)
51 E2111-715-0A0 CONVEYOR PULLEY ASM.
搬送プーリ(組)
(1)
52 E2214-723-000 PULLEY SPACER 8.4
プーリスペーサ8.4
(1)
53 SM-4042001-SC SCREW M4X0.7 L=20
なべ小ねじ M4X0.7 L=20
(1)
54 WP-0430800-SC WASHER M4
平座金小形丸 M4
(1)
55 WP-0430801-SC WASHER M4
平座金 M4
(7)
56 WS-0410002-KN SPRING WASHER M4
ばね座金 M4
(7)
57 SL-6041092-TN SCREW
座金付き六角穴ボルト
3
58 401-36102 RAIL_PLATE_F_SUPPORT
レールプレートFサポート
1
59 SL-6051092-TN BOLT
座金付き六角穴ボルト
8
60 SL-6041092-TN SCREW
座金付き六角穴ボルト
4
61 SL-6041492-TN SCREW
座金付き六角穴ボルト
4
62 400-00831 PULLEY_BRAKET_L_ASM
プーリブラケットL組
1
63 E2157-721-000 PULLEY B
プーリ B
(1)
64 E2016-715-000 IDLER PULLEY
アイドラプーリ
(1)
65 E2017-715-000 M LINER BUSH
M ライナブッシュ
(4)
66 E2018-715-000 PULLEY SLEEVE
プーリ スリーブ
(2)
67 WP-0531001-SC WASHER M5
平座金みがき丸 M5
(6)
68 WS-0510002-KN SPRING WASHER M5
ばね座金 M5
(2)
69 NM-6050001-SC NUT M5X0.8 TYPE1
六角ナット M5X0.8 1種
(2)
70 SM-6052502-TN SCREW
六角穴ボルト
(2)
71 400-00976 PULLEY_BRAKET
プーリブラケット
(1)
72 400-00832 PULLEY_BRAKET_R_ASM
プーリブラケットR組
1
73 E2157-721-000 PULLEY B
プーリ B
(1)
74 E2016-715-000 IDLER PULLEY
アイドラプーリ
(1)
75 E2017-715-000 M LINER BUSH
M ライナブッシュ
(4)
76 E2018-715-000 PULLEY SLEEVE
プーリ スリーブ
(2)
77 WP-0531001-SC WASHER M5
平座金みがき丸 M5
(6)
78 WS-0510002-KN SPRING WASHER M5
ばね座金 M5
(2)
79 NM-6050001-SC NUT M5X0.8 TYPE1
六角ナット M5X0.8 1種
(2)
80 SM-6052502-TN SCREW
六角穴ボルト
(2)
81 400-00976 PULLEY_BRAKET
プーリブラケット
(1)

- 45 -
23. PWB CONVEYOR COMPONENTS (3)
基板搬送関係(3)
17
16
3
4
5
6
6
7
7
8
9
8
9
11
10
12
14
18
17
18
16
20
19
21
22
23
24
26
32
31
28
29
33
34
35
35
38
42
41
43
42
41
44
30
34
37
36
44
39
39
36
39
38
40
43
45
46
47
48
49
50
51
52
48
47
46
45
43
40
38
39
36
39
39
44
36
37
34
30
44
41
42
43
41
42
38
35
35
34
33
29
28
31
32
26
25
A
A
B
B
54
53
55
53
55
54
56
57
56
57
56
57
2
1
61
60
25
65
66
66
63
64
62
62
63
66
65
66
64
13
27
27
67 68
15
58
59
70
69
69
D
E
D
E
C
C