threem2_e.pdf - 第7页
PAGE 4 THREEM II (LC2) I/O head CN6 CN7 CN8 CN6 CN2 CN2 ORG OT CN1 Y-AXIS Y-AXIS CN4 CN3 CN3 CN4 FLEXIBLE LIGHT FIDUCIAL LIGHT CN11 CN11 1 2 3 4 VACUUM HEAD1 YV304 VACUUM VACUUM VACUUM HEAD2 HEAD3 HEAD4 1 2 3 4 HEAD1 BLO…

PAGE 3
THREEM II (LC2)
Interface board
CN1
CN2
CN1
F.START(GREEN)
2
3
4
5
6
7
8
1
9
10
11
12
13
14
15
16
YV101
YV108
YV109
YV116
VALVES
CN2
F.RESET(WHITE)
F.READY(WHITE)
FRONT OPERATION PANEL
SB31
SB32
SB33
SB34
SB35
BUZZER
ALARM(WHITE)
ERROR(BLUE)
START(GREEN)
T19030
T19027
T19026
T19031
HL11
HL11
CN3
EMG SWITCH
SB11
SQ150
CN3
EMG
COVER LIMIT SW
SQ301A
SQ301B
FDR +24V
CN4
FRONT SIDE
BZ
START
STOP
ERROR
RESET
READY
KGN-M4530-00X
0V
V52
U52
13
1
3
5
14
2
4
6
A1 A2
+24V
+24E
23
24
KM10
+24V
EMG9
EMG10
EMG10
S10
PREVIOUS INTERFACE
GATE OUT
FRONT SIDE
NEXT INTERFACE
GATE IN
GS21(+24V)
GATE IN
GATE OUT
CONV
POS.
SET
CONV
CONV
X-AXIS
X-AXIS
ENT
EXIT
MAIN STOPPER UPPER
PUSH UP UPPER
ORG
OT
FLEXIBLE
CN2D
CN1D
CN3D
42
CONVEYOR MOTOR 30W
CONV2 FG
I/O H
U53
V53
M9
SQ151
CONVEYOR COVER
LIMIT SW
COVER
COVER
CN4
ANC CLOSE CLOSER
(OPTION)
INTERFACE BOARD ASSY P22
UCM
COVER S
COVER C/V
GS21(+24V)
CONV +24V
PUSH UP
MAIN STOP
YV200
YV201
ANC OPEN
YV202
T19034
T19033
(OPTION)
ANC OPEN CLOSER
UCM
FAN
FAN1
EV1
SQ200
SQ201
SQ202
SQ203
SQ204
SQ205
SQ206
CN1
CN2 CN3
EMG1·2,CU-NET
SQ207
SQ208
SENSOR
PRESSURE
AIR
P
SP11
I/O HEAD(CN11)
GS21(+24V,0V)
LDC1
CN5
HEAD +24V
CN5
I/O HEAD(CN4)
REAR SIDE
F.STOP(RED)
F.ERROR CLEAR(YELLOW)
N1A043
N1A032
N1A033
N1A034
N1A035
N1A036
N1A037
T19032
N1A042
N1A041
N1A040
CELL COVER
(OPTION)
CN4
X
AMF1
AMF2
T19021
T19022
+24V
+24V
+24V
BULK FEEDER
+24V
N1A050
FIX16 FEEDER
N1A046
CONVEYOR DRIVER A1
See POWER CIRCUIT
See CONTROL BOX
See POWER CIRCUIT
See POWER CIRCUIT
See POWER
CIRCUIT
See POWER CIRCUIT
(OPTION)
F.FEEDER FLOAT SENSOR
See CELL-CONVEYOR
J190
J191
J193
J705
J9
J197
J771
J10
J11
J196 J902
J902
J73
J902
J184
J181
J182
J183
J185
J200
J201
J198
J199
J165
J701
J14
TSF1
(OPTION)
CN4
See CONTROL BOX
J101

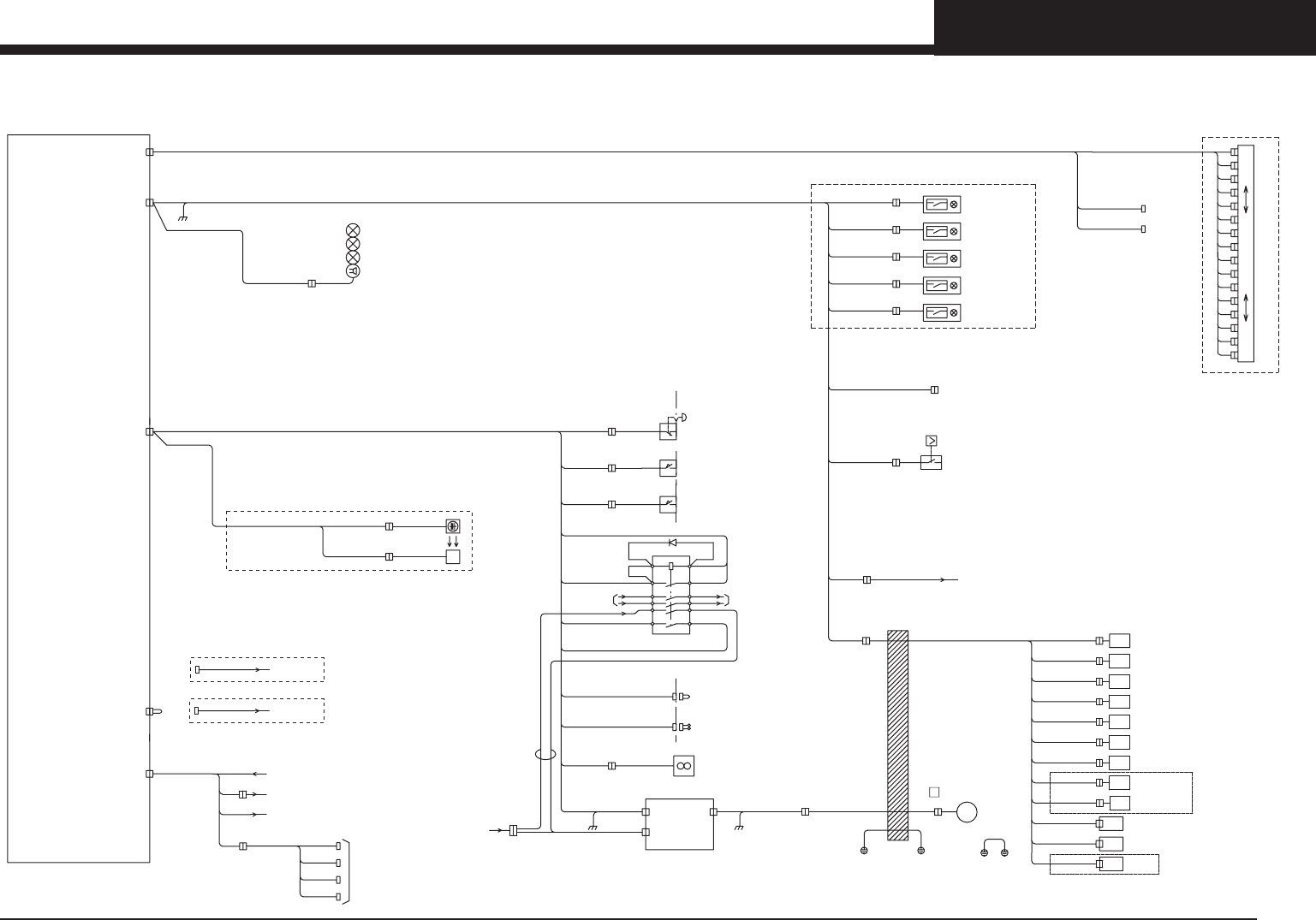
PAGE 4
THREEM II (LC2)
I/O head
CN6
CN7
CN8
CN6
CN2
CN2
ORG
OT
CN1
Y-AXIS
Y-AXIS
CN4
CN3
CN3
CN4
FLEXIBLE
LIGHT
FIDUCIAL
LIGHT
CN11
CN11
1
2
3
4
VACUUM
HEAD1
YV304
VACUUM
VACUUM
VACUUM
HEAD2
HEAD3
HEAD4
1
2
3
4
HEAD1
BLOW
BLOW
BLOW
BLOW
HEAD2
HEAD3
HEAD4
CN5
CN7
T0000
T0001
T0002
T0003
T0004
T0005
T0006
T0007
SQ01
SQ02
CONTROL BOX(CN5)
CONTROL BOX(CN2)
KGN-M4570-00x
IO- HEAD BOARD ASSY P21
YV302
YV303
YV301
YV331
YV332
YV333
YV334
Y
ON
OFF
12
543
ON
OFF
12
543
DIP SW(S5)
DIP SW(S6)
6 87
6 87
See INTERFACE BOARD
See INTERFACE BOARD
J301
J302
J304
J303
J901
J901
J901

PAGE 5
THREEM II (LC2)
Power circuit
QS11
MAX690V/40A
NN
E
1
2
3
4
E
U50
V50
U51
V51
J1
J71
1 50/60Hz
POWER SOURCE
J1
TERMINAL
EARTH
AWG12 (3.3sq)
J20
S2A
MAX690V/40A
QF31 10A
4
21
3
MAX440V/12A
KM10
U51
V51
U52
V52
U52
V52
U53
V53
U51
V51
U54
V54
J4
J5
J3
J2
J12
CONTROL BOX
4
3
2
1
ACIN
5
6
U53
V53
U54
V54
CN5
0V
+24VF
0V
+24VF
0V
+24VF
0V
+24VF
J9
A1
2
1
2
1
+24V
0V
+24VJ
2
1
2
1
+24V
0V
+24VJ
2
1
2
1
+24V
BULK FEEDER
LDC
CN4
TC11
U51
V51
J19
QF32, QF33, J3, J12 become unnecessary
WHEN UPS (OPTION) is selected.
L1 L1 T1 T1
L2 L2 T2 T2
L3 T3
FG
CRT1
J7
RATING 2.8KVA MAX.
:CONTROL
AC200~240V
:MOTOR DRIVER
POWER
AC200~240V
NF11
MAX250V/10A
S11
2T1
4T2
6T3
3L2 S2A
1L1
5L3
R
S
A1
B1
A2
B2
A3
B3
A4
B4
A1
B1
A2
B2
A3
B3
A4
B4
P21
I/O HEAD
1.85A
0V
+24V
2
1
2
1
MAX470V
U54
V54
J901
QF11 Set 13A
J19 are OPTIONAL. (UPS)
AC200~240 (-10%.+6%)
QF32 7A
See UPS
U51
V51
U56
V56
U51
V51
U55
V55
4
3
2
1
4
3
2
1
5
6
5
6
7
CN51
CN53
150W
GS21
5
4
3
2
1
CN1
J6
CN1
J9
0V
CN53
CN51
+24V
KM10,
CONV +24V
CONVEYOR DRIVER (CN1)
QF33 3A
QF34 2A
See Interface Board
5
4
3
2
1
CN1
CN1
100W
4
3
2
1
5
6
7
8
CN2
0V
0V
+24V
+5V
GS22
J8
i-PULSE FEEDER
CONTROL BOX
J13
(OPTION)
J751
J101