TT2Wiring Diagram__N7205A122B.pdf - 第195页
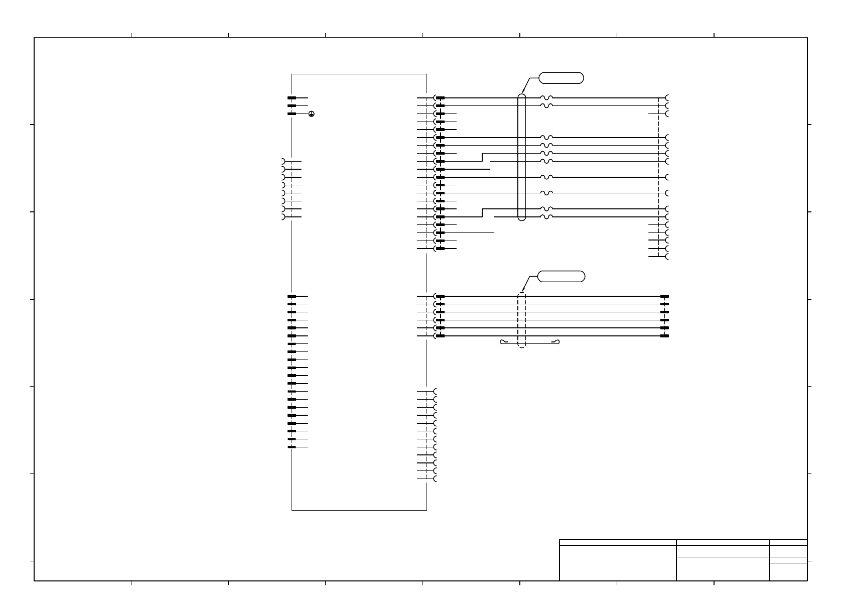
-A02 Support Station Box A1 A2 A3 A4 A5 B1 B2 B3 B4 B5 C1 C2 C3 C4 C5 D1 D2 D3 D4 D5 CART FEEDER 1 2 3 4 5 6 G24 G24 P24-1 P24-1 AC100V ~AC240V INPUT RXD+ RXD- GND TXD+ TXD- GND IN4 24GND +5VOUT GND TXD RXD RTS CTS N.C N…

-A02
Support Station Box
A1
A2
A3
A4
A5
B1
B2
B3
B4
B5
C1
C2
C3
C4
C5
D1
D2
D3
D4
D5
CART
FEEDER
1
2
3
4
5
6
G24
G24
P24-1
P24-1
AC100V
~AC240V
INPUT
RXD+
RXD-
GND
TXD+
TXD-
GND
IN4
24GND
+5VOUT
GND
TXD
RXD
RTS
CTS
N.C
N.C
N.C
N.C
P24
G24
P24-2
IN2
GND
RS485+
RS485-
IN3/OUT2
A1
A2
A3
A4
B1
B2
B3
B4
C1
C2
C3
C4
SCAN
ETHERNET
RFID
+5VOUT
GND
TXD
A1
A2
A3
RTS
CTS
A4
A5
B1
B2
RXD
ACIN
L
N
B3
B4
B5
C1
C2
C3
IN0
24GND
24GND
IN1
C4
C5
OUT0
D1
D2
D3
D4
OUT1
24GND
D5
24GND
HIROSE
FEEDER
HR10A-7R-6S(73)
6
5
4
3
2
1
NODA ELECTRIC
CNFP
NDA-99MD001
6/5
5/3
4/2
3/1
2/6
1/4
VT
BN
GN
YE
OG
BN
RD
UL20276 AWG24×7C
MTKC023293AA
MOLEX
CART
55836-2070
A1
A2
A3
A4
A5
B1
B2
B3
B4
B5
C1
C2
C3
C4
C5
D1
D2
D3
D4
D5
S
S
S
Note1) Connector Pin arrangement is not sequential.
JAE
CART-R
DM1R016PA1
8
14
6
13
5
16
4
3
12
11
15
7
9
10
1
2
Note1)
GY
BN
VT
GN
RD
OG
YE
BU
WH
BK
RMFEV(2517) AWG21(0.5)/10C
N610111706AB
JAE
JR06-6A-6P
3
N610111705AA
1 3
1 2
Panasonic Smart Factory Solutions Co.,Ltd. パナソニック スマートファクトリーソリューションズ株式会社
Name
Drawing No.
Loc. No.
F4K1020-05A
1
2 3 4 5 6 7 8
A
B
C
D
E
F
1 2 3 4 5 6 7 8
A
B
C
D
E
F
Page. No.
NPM:Support Station(H)
(Cart and Feeder wiring)
N610099162+002AD
P002