FX-3RA-Rev07 - 第83页
- 76 - NOTE ( 注記 ) #01....F OR EN EN 用 #02....TY PE XL XL 仕様 *IN STALL ATION PO SIT ION AND DI RECT ION VARY IF T HE PWB TRANS FER REF ERE NCE I S DIFFE RENT . 基板搬送基 準が異な ると取付位置、方 向が変わ ります。 REF. NO NOT E PA RT NO D E S C…

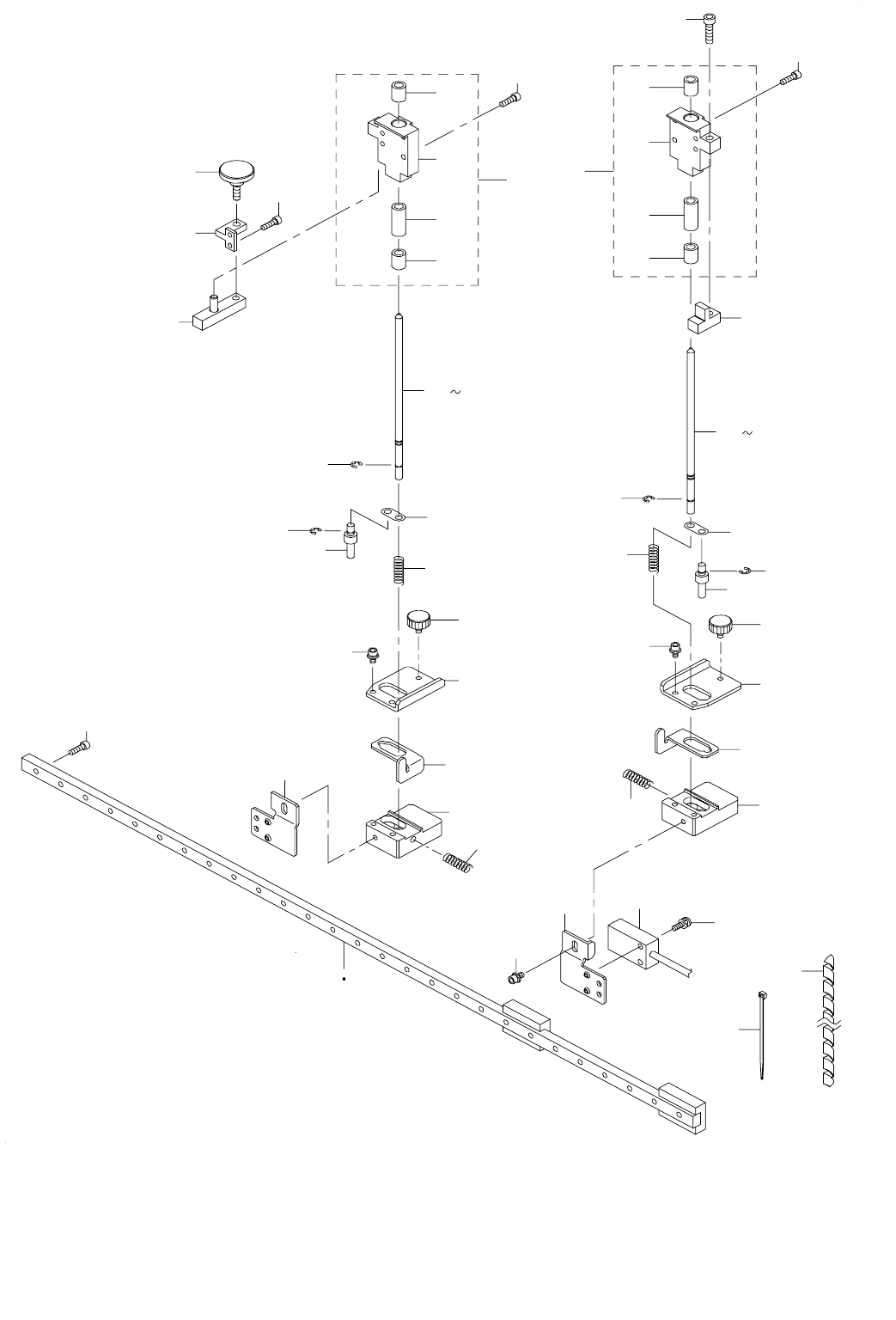
- 75 -
38.PWB CONVEYOR COMPONENTS (12)
基板搬送関係(12)
17
18
19
16
21
20
22
14
15
24
23
4
1
2
3
2
3
1
5
5
6
6
7
25
11
12
9
10
8
13
2627
2627
2627
4
4
4
2627

- 76 -
NOTE( 注記 ) #01....FOR EN EN 用
#02....TYPE XL XL 仕様
*INSTALLATION POSITION AND DIRECTION VARY IF THE PWB TRANSFER
REFERENCE IS DIFFERENT.
基板搬送基準が異なると取付位置、方向が変わります。
REF.NO NOTE PART NO D E S C R I P T I O N
品 名
Qty
1 400-46954 AWC_MOTOR_BRACKET
AWC モータブラケット
2
2 400-48077 AWC MOTOR ASM
幅調モータ組
2
3 SL-6041292-TN SCREW
座金付き六角穴ボルト
8
4 400-46874 AWC_PULLEY_A_ASM
AWC プーリ A 組
4
5 SL-6051292-TN BOLT
座金付き六角穴ボルト
8
6 E4733-729-000 TIMING BELT SC (30E)
幅調タイミングベルト SC(30 E)
2
7 400-46952 AWC_OP_DOG
AWC OP ドグ
2
8 SL-6040892-TN BOLT
座金付き六角穴ボルト
4
9 400-46953 AWC_SENSOR_BRACKET
AWC センサブラケット
2
10 SL-6030892-TN SCREW
座金付き六角穴ボルト
4
11 400-02120 AWC ORG SENS ASM
自動幅調原点センサ組
2
12 SM-4860601-SC SCREW M2.6 L=6
なべ小ねじ M 2.6 L =6
2
13
#01
400-46885 CONVEYOR_BASE(EN)_ASSY
コンベアベース(EN)組
2
14 400-00970 BU STOPER(EN)
BU ストッパ
(1)
15 SM-6051002-TN BOLT
六角穴ボルト
(2)
16 PA-1501011-00 DUAL ROD CYLINDER
デュアルロッドシリンダ
(1)
17 SL-6040892-TN BOLT
座金付き六角穴ボルト
(2)
18 400-00971 BU STOPER BRACKET(EN)
BU ストッパブラケット
(1)
19 SL-6051492-TN BOLT
座金付き六角穴ボルト
(4)
20 BT-0400251-EA URETHANE TUBE BLUE 4X2.5
ポリウレタン チューブ 青 4 X 2.5
(2)
21 PC-0105080-00 SPEED CONTROLLER
スピードコントローラ
(2)
22 400-02241 BU LOCK SENS ASM
BU ロックセンサ組
(1)
23 HX-0029400-00 FIXED BASE
固定ベース
(1)
24 SM-4040801-SC SCREW M4X0.7 L=8
なべ小ねじ M4X0.7 L =8
(1)
25
#02
400-92072 AWC_DOG_XL
AWC ドグ XL
2
26
#02
SM-8040602-TP SCREW M4X0.7 L=6
止めねじ
16
27
#02
E4561-729-000 TIMING PULLEY A (30)
幅調タイミングプーリ A(30)
2

- 77 -
39.PWB CONVEYOR COMPONENTS (13)
基板搬送関係(13)
50
54
54
21
22
23
16
17
18
19
20
20
18
51
53
55
25
26
27
28
29
30
48
52
30
48
25
55
27
26
8
12
56
9
10
10
11
13
14
14
15
49
2
3
4
1
1
5
5
7
6
24
58
57