E By DEK Tech Spec - 第12页
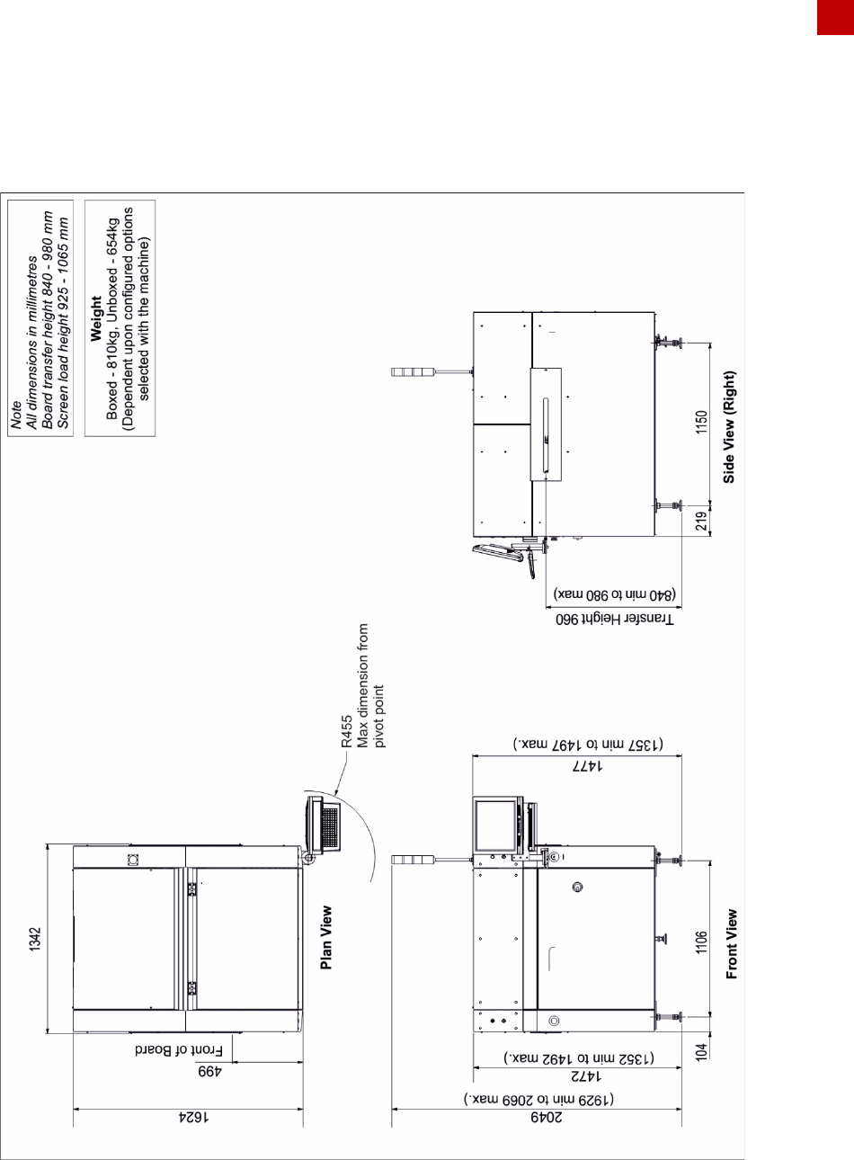
12 E by DEK Machine Foot print

11
E by DEK
Machine Productivity Options
Transport
Specification
Substrate Support
Vacuum tooling capability
Vacuum cups
Vacuum sense
Grid-Lok® tooling
Substrate Transport
Single piece conveyor with flat belts (heavy boards) up
to 6kg
Remote board stop (for use with heavy board option)
Substrate Fixture
Snuggers (edge clamping)
Foil-less clamps
Vision & Verification
Specification
HawkEye®
Paste on pad verification
Data Capture
Specification
Product Data Capture
Verification & Traceability (only with E by SIPLACE)

12
E by DEK
Machine Footprint

13
Disclaimer
In line with ASMAS Group Policy of continual improvement, this specification is periodically up-
issued to reflect the latest product enhancements and it is provided with an issue state, which
is displayed at the bottom of the rear page.
Please note the following:
• This information is provided in good faith; it is believed to be accurate and sufficient for the
intended purpose
• This information remains the property of ASMAS Group
• ASMAS Group are not liable for the consequences of applying this information
• ASMAS Group are free to alter this information without notice
The legal form of this notice can be read at http://www.asm-smt.com/disclaimer