00190970-02 - 第465页
9 Instandhaltung/Wartung Betriebsanleitung SIPLACE 80S-20/F4/F4-6 9.4 Portale Aus gabe 07/97 ab Softwareversion SR.403.xx 9 - 42 Vor Box HINWEIS: Die Reibfl ächen für die Reibk lötze mü ssen fett- und öl frei ble iben, d…

Betriebsanleitung SIPLACE 80S-20/F4/F4-6 9 Instandhaltung/Wartung
Ausgabe 07/97 ab Softwareversion SR.403.xx 9.4 Portale
9 - 41
9.4 Portale
HINWEIS
Führen Sie alle Wartungsarbeiten an den Portalen für den Automaten SIPLACE 80S-20, 80F
4
und 80F
4
-6 in
gleicher Weise aus. Verwenden Sie grundsätzlich kein Öl in Sprühdosen und bringen Sie einen Ölfilm nur auf
die bezeichneten Stellen auf (siehe Abb. 9.4.1).
Der SIPLACE 80F
4
/F
4
-6 Automat ist eine Einportalmaschine. Sein X-/Y-Portal wird als Portal 1 bezeichnet.
Die Y- Führungsschiene und der Y-Maßstab sind an diesem Automaten an der Ausgabeseite angeordnet, die
Schiene mit der Reibfläche und der Reibklotz mit dem Kugellager an der Eingabeseite.
9.4.1 Reibflächen
HINWEIS
Falsch, bzw. nicht gewartete Reibflächen können zu Störungen bei der Verfahrbewegung des Portals führen.
GEFAHR OOO
Führen Sie keine Reinigungsarbeiten mit Alkohol bei offenem Licht oder Feuer durch!
9.4.1.1 Führungsschienen der Y-Portalachsen, Reibflächen und Kugellager
im Reibklotz reinigen
Schalten Sie den Automaten am Hauptschalter aus und öffnen Sie die Schutzhauben.
● Reinigen Sie am Automaten 80S-20 die Y-Führungsschiene der Portale 1 und 2 (siehe Abb. 9.4.2) bzw.
am Automaten 80F
4
/F
4
-6 die Y-Führungsschiene des Portals 1 (Schiene an der Ausgabeseite) und die
Schiene mit der Reibfläche (Schiene an der Eingabeseite).
● Reiben Sie die gesamte Länge und den gesamten Umfang der Schienen gründlich mit einem mit Alkohol
befeuchteten Tuch ab.
● Verschieben Sie dabei das Portal bzw. die Portale so von Hand, daß Sie alle Stellen der Führungs-
schiene(n) und der Schiene mit der Reibfläche erreichen.
● Reinigen Sie in gleicher Weise den gesamten Umfang des Kugellagers im Reibklotz.
● Nehmen Sie ein trockenes, flusenfreies Tuch und geben Sie einen Tropfen Taschenuhrenöl darauf.
Wischen Sie damit über die Schienenoberflächen.
● Träufeln sie einige Tropfen Taschenuhrenöl auf ein sauberes Tuch und tragen Sie damit an den seitlichen
Kugellaufflächen der Y-Führungsschiene einen feinen Ölfilm auf (siehe Abb. 9.4.1).
● Tragen Sie darüber hinaus einen feinen Ölfilm auf die Oberflächen außerhalb des Verfahrbereichs des
Portals auf (siehe Abb. 9.4.1).

9 Instandhaltung/Wartung Betriebsanleitung SIPLACE 80S-20/F4/F4-6
9.4 Portale Ausgabe 07/97 ab Softwareversion SR.403.xx
9 - 42
Vor Box
HINWEIS:
Die Reibflächen für die Reibklötze müssen fett- und ölfrei bleiben, da sonst das spezifizierte dynamische Ver-
halten der Achsen nicht mehr erreicht wird.
Abb. 9.4.1 Fetten bzw. Ölen der Y-Führungsschiene
● Verschieben Sie die X-Achse der Portale 1 und 2 mehrmals und wischen Sie überschüssiges Öl von den
Y-Führungsschienen ab.
HINWEIS
Die Y-Maßstäbe, die Reibflächen für die Reibklötze und der Umfang der Kugellager in den Reibklötzen
müssen absolut fettfrei sein.
● Schieben Sie am Automaten SIPLACE 80S-20 abschließend die Portale so auseinander, daß keine der
Achsen im Ansprechbereich der Lichtschranke des Anticrash-Schalters steht.
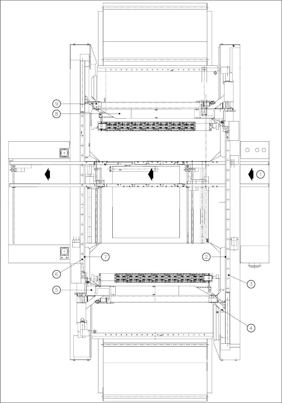
- Legende zu Abb. 9.4.2 (SIPLACE 80S-20)
1 LP-Transportrichtung 2 Maßstab der Y-Achse, Portal 1
3 Führungsschiene, Y-Achse, Portal 1 4 Reibklotz mit Kugellager
5 X-Achse, Portal 1 6 Führungsschiene, Y-Achse, Portal 2
7 Maßstab der Y-Achse, Portal 2 8 Lichtschranke (Anticrash-Schalter)
9 X-Achse, Portal 2
Diese Flächen der
Y-Führungsschiene
sparsam ölen
Die Reibfläche der Y-Führungsschiene
entspricht dem Verfahrbereich des Portals.
Sie muß öl- und fettfrei sein.
Tragen Sie auf die Kugel-
laufbahnen Staburags
N12 Schmierfett auf
Diese Flächen der
Y-Führungsschiene
sparsam ölen

Betriebsanleitung SIPLACE 80S-20/F4/F4-6 9 Instandhaltung/Wartung
Ausgabe 07/97 ab Softwareversion SR.403.xx 9.4 Portale
9 - 43
Abb. 9.4.2 Portale 1 und 2 warten (Draufsicht Automat SIPLACE 80S-20)