00190970-02 - 第524页
Betriebsanleitung SIPLACE 80S-20/F4/F4-6 9 Instandhaltung/Wartung Ausgabe 07/97 ab Soft wareversion SR.403.xx 9.9 Kamerasysteme un d Koplanaritäts-Lasermodul 9 - 101 Abb. 9.9.2 Glasfläche des Koplanaritäts-Lasermodul rei…

9 Instandhaltung/Wartung Betriebsanleitung SIPLACE 80S-20/F4/F4-6
9.9 Kamerasysteme und Koplanaritäts-Lasermodul Ausgabe 07/97 ab Softwareversion SR.403.xx
9 - 100
- Arbeitsfolge zu Abb. 9.9.1
A Reinigen Sie diese Flächen an allen Seiten. (Nur bei IC-Kamera)
Nur, wenn die Glasplatte verschmutzt ist.
B Lösen Sie die Innensechskantschrauben
C Ziehen Sie den Glashalter schräg nach unten ab.
D Reinigen Sie diese Fläche.
9.9.5 Koplanaritäts-Lasermodul (SIPLACE 80F
4
und 80F
4
-6)
9.9.5.3 Sicherheitshinweise
GEFAHR OOO
Das Koplanaritäts-Lasermodul entspricht ohne
Schutzvorrichtungen der Laserklasse 3B:
der Laser arbeitet in einem Wellen- und Lei-
stungsbereich, der für Haut und Augen gefährlich
ist.
Nur mit unveränderten Sicherheitseinrichtungen
entspricht das Modul der Laserklasse 1 und kann
ohne Gefährdung für andere betrieben werden.
Unterlassen Sie deshalb jegliche Manipulation an
den Sicherheitseinrichtungen.
HINWEIS
Sicherheitseinrichtungen für den Betrieb des Lasermoduls in der Laserklasse 1:
Der Sicherheitsstecker am Lasermodul verhindert den Betrieb des Lasers außerhalb der Maschine.
Beim Öffnen einer der Schutzhauben wird die Betriebsspannung unterbrochen, und die LED für die Betriebs-
spannung am Lasermodul erlischt.
Diese Schutzfunktion bleibt auch bei betätigtem (entriegeltem) Schlüsselschalter in Kraft.
Schalten Sie vor Wartungsarbeiten den Automaten am Hauptschalter aus.
9.9.5.4 Glasscheibe reinigen
● Schalten Sie den Automaten am Hauptschalter aus. Öffnen Sie die Schutzhauben.
● Reinigen Sie die Glasscheibe am Koplanaritäts-Lasermodul (siehe Abb. 9.9.2) mit einem trockenen, fett-
freien Pinsel. Verwenden Sie ein spezielles Optiktuch (z. B. der Fa. Kodak) oder Linsenreinigungspapier
(z.B. Kodak "Lens cleaning tissue"), um Fingerabdrücke zu entfernen.
● Schließen Sie die Schutzhauben und schalten Sie den Automaten am Hauptschalter ein.
Unsichtbare Laserstrahlung
Nicht dem Strahl aussetzen
Laserklasse 3 B
1mW max., 670nm; n. IEC 825-

Betriebsanleitung SIPLACE 80S-20/F4/F4-6 9 Instandhaltung/Wartung
Ausgabe 07/97 ab Softwareversion SR.403.xx 9.9 Kamerasysteme und Koplanaritäts-Lasermodul
9 - 101
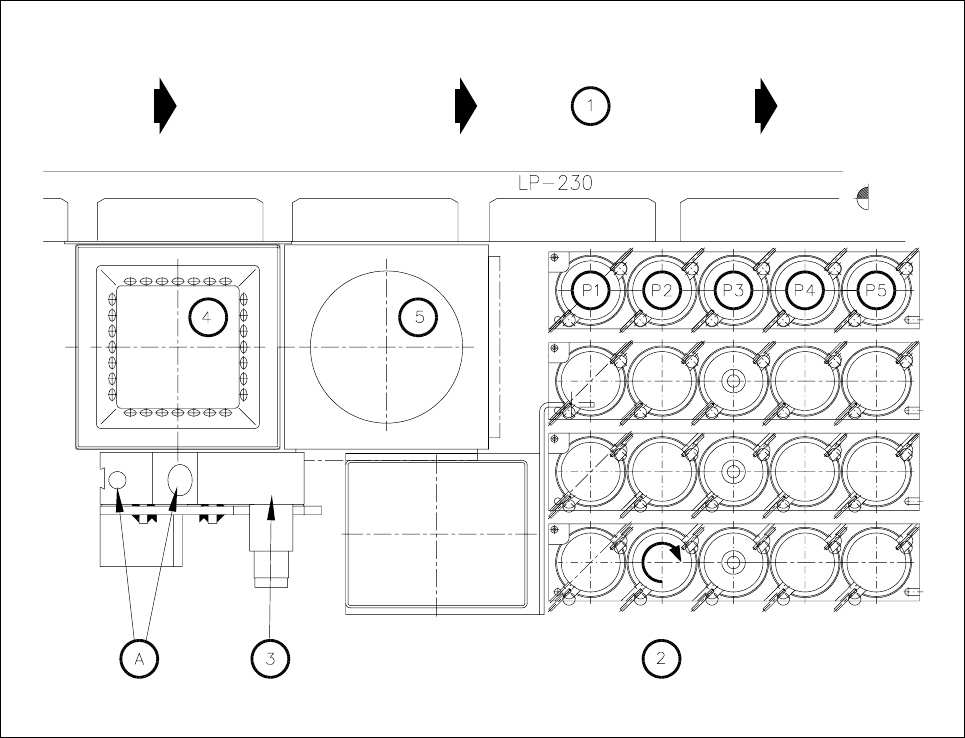
Abb. 9.9.2 Glasfläche des Koplanaritäts-Lasermodul reinigen
- Legende zu Abb. 9.9.2
1 Leiterplattentransportrichtung
2 Pipettenwechsler
3 Koplanaritäts-Lasermodul
4 IC-Kamera
5 FC-Kamera
- Arbeitsfolge zu Abb. 9.9.2
A Reinigen Sie die Glasfläche mit einem Optiktuch.
r
9 Instandhaltung/Wartung Betriebsanleitung SIPLACE 80S-20/F4/F4-6
9.9 Kamerasysteme und Koplanaritäts-Lasermodul Ausgabe 07/97 ab Softwareversion SR.403.xx
9 - 102