FX-3_Maintenance_Rev2_C - 第140页
Rev 2.00 维修调整要领书 13-5 ( EN 規格) 图 13-3-1-2-2 电源装置( EN ) _R 构成图 ※ 在上图中把 PSU 前面保护罩朝左偏 ※ 电源装置( EN ) _L 在内部构成上有若干不同之处,但由于在外观图上与 13-3-1-1 的电源装置基 本相同,所以在此就不再详细说明。 【正视所见】 PSU 前面保护罩 【顶视所见】 PS2 PS1 PS4 PS3

Rev 2.00
维修调整要领书
13-4
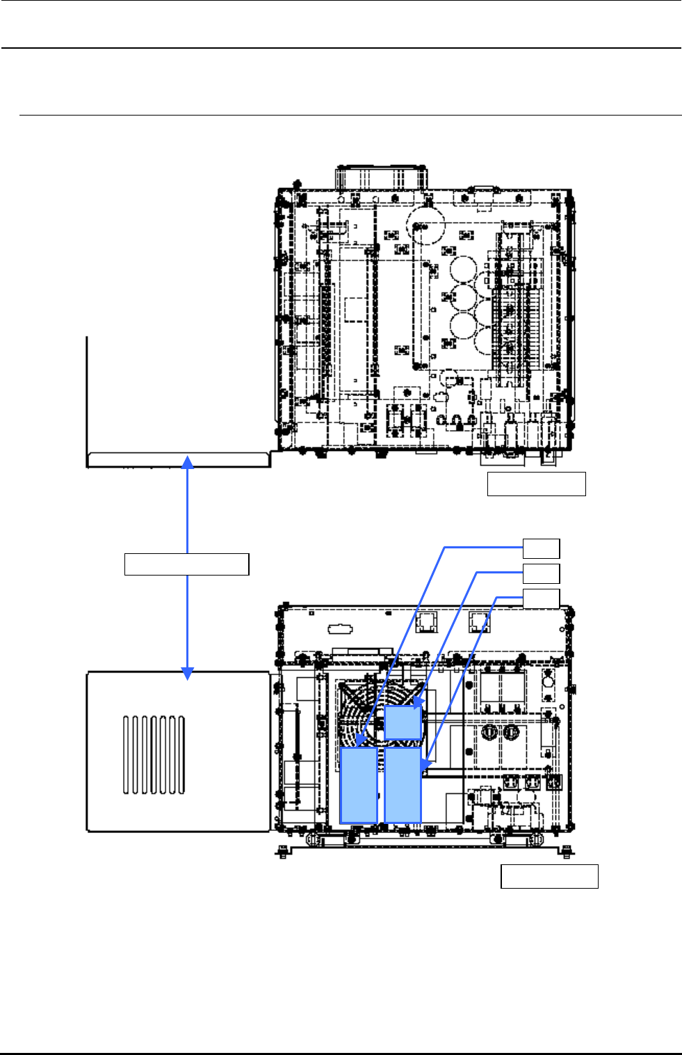
13-3-1-2. 电源装置构成图
(STD 規格)
图 13-3-1-2-1 电源装置构成图
※ 在上图中把 PSU 前面保护罩朝左偏
【正视所见】
PSU前面保护罩
PS2
PS1
PS3
【顶视所见】

Rev 2.00
维修调整要领书
13-5
(EN 規格)
图 13-3-1-2-2 电源装置(EN)_R 构成图
※ 在上图中把 PSU 前面保护罩朝左偏
※ 电源装置(EN)_L 在内部构成上有若干不同之处,但由于在外观图上与 13-3-1-1 的电源装置基
本相同,所以在此就不再详细说明。
【正视所见】
PSU前面保护罩
【顶视所见】
PS2
PS1
PS4
PS3

Rev 2.00
维修调整要领书
13-6
表 13-3-1-2-1 电源装置(零件清单)
【更换零件一览表】
No. 货号 品名 数量 备考
1 HA00524000E 电路保护器(12A) 1 CP7
2 HA00524000F 电路保护器(4A) 1 CP8
3 HA00524000G 电路保护器(20A) 1 CP6
4 HA00527000A 电路保护器(40A) 1 CP4
5 HA00542000C 电路保护器(10A) 1 CP2
6 HA00542000D 电路保护器(15A) 1 CP3
7 HA005570000 电路保护器(10A) 1 CP5
8 HA005600000 电路保护器(40A) 1 CP1
9 HB001100000 继电器 1 RL4
10 HB00128000C 继电器 1 RL1(仅 ST 规格)
11 HB001740000 继电器 1 RL1(仅 EN 规格)
12 HB001540000 继电器 2 RL2, 3
13 HB001540010 继电器插座 2 RL2, 3用
14 HM00033000A AC FAN 1
15 HX004820000 电源 +24V/500W 1 PS2
16 HX00542000B 电源 +24V/100W 1 PS4(仅 EN 规格)
17 HX00543000A 电源 +24V/300W 1 PS3
18 KX000000150 电源 +6V/75W 1 PS1
19 40047522 POWER PCB ASM 1
20 40047524 Zθ POWER PCB ASM 1
21 HA005300000 接触器 2 K1, 2(仅 EN 规格)
22 HA005300020 端子保护罩 2 K1, 2用( 仅 EN 规格)